Ottawa Development Projects

6001-6005 Renaud Rd.#

Last updated: 2025-06-26 · ID: D07-12-21-0239

Summary#

Proposed 36 unit stacked townhouse development

Status
Post Approval (Request for Agreement Received)

Building Scale (Max.) Based on elevation drawings. Values may be approximate. See sources for exact figures.
Low-rise · 2 storeys · 5.02 m

Renders#

Location#

Select a marker to view the address.

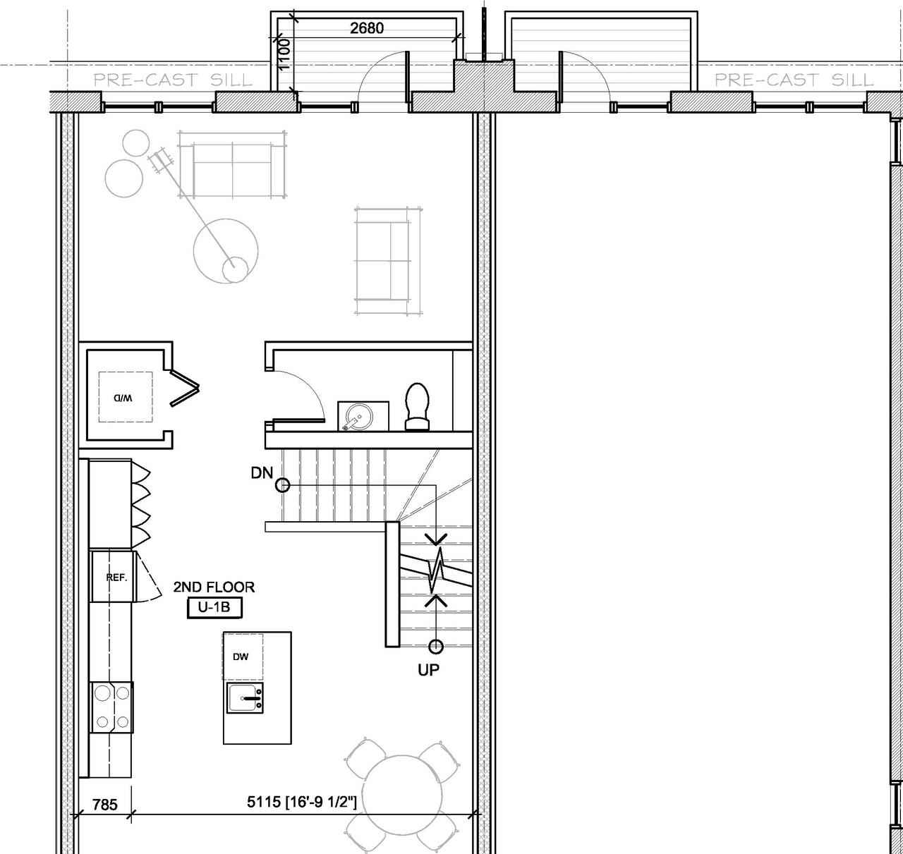
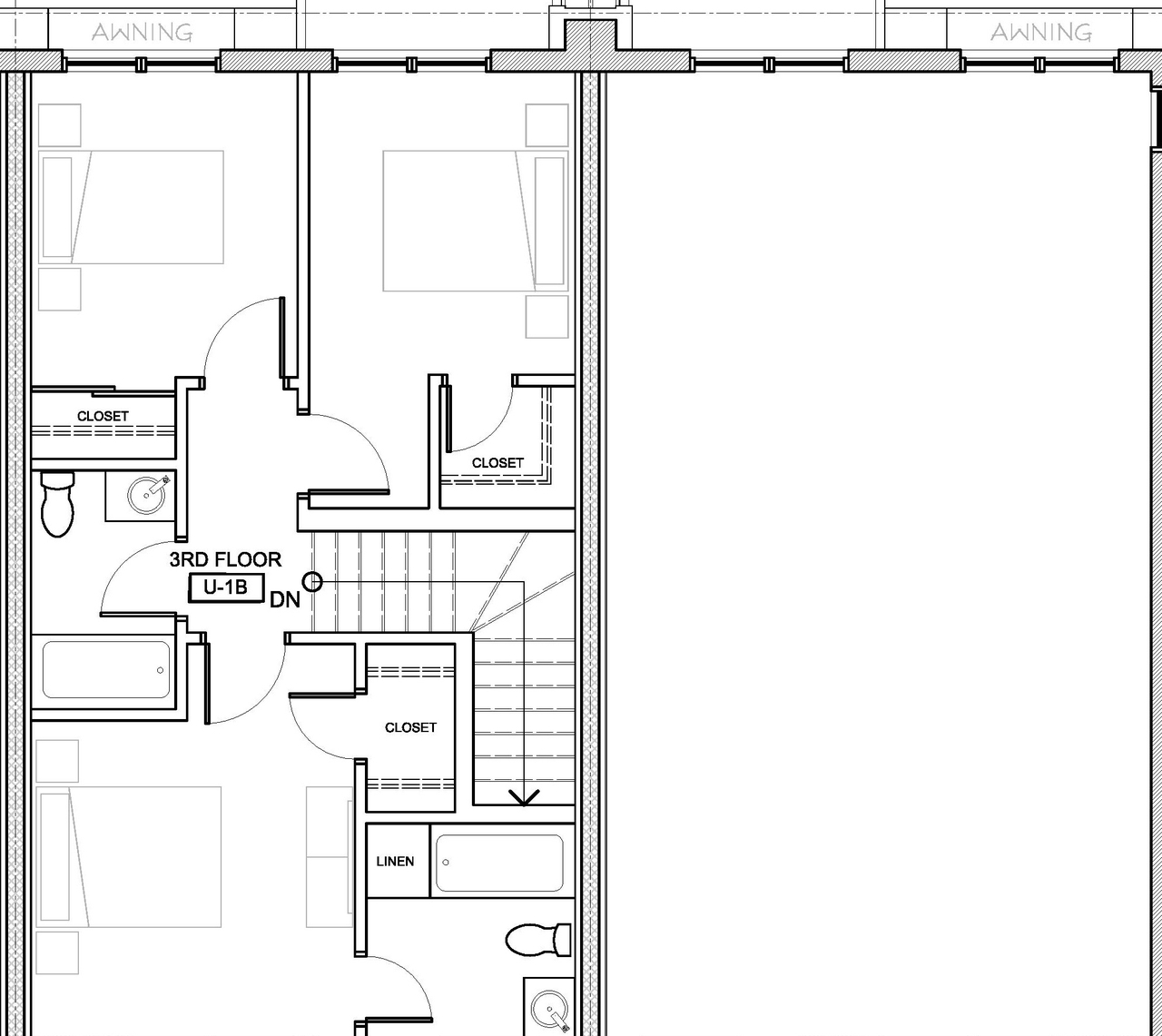
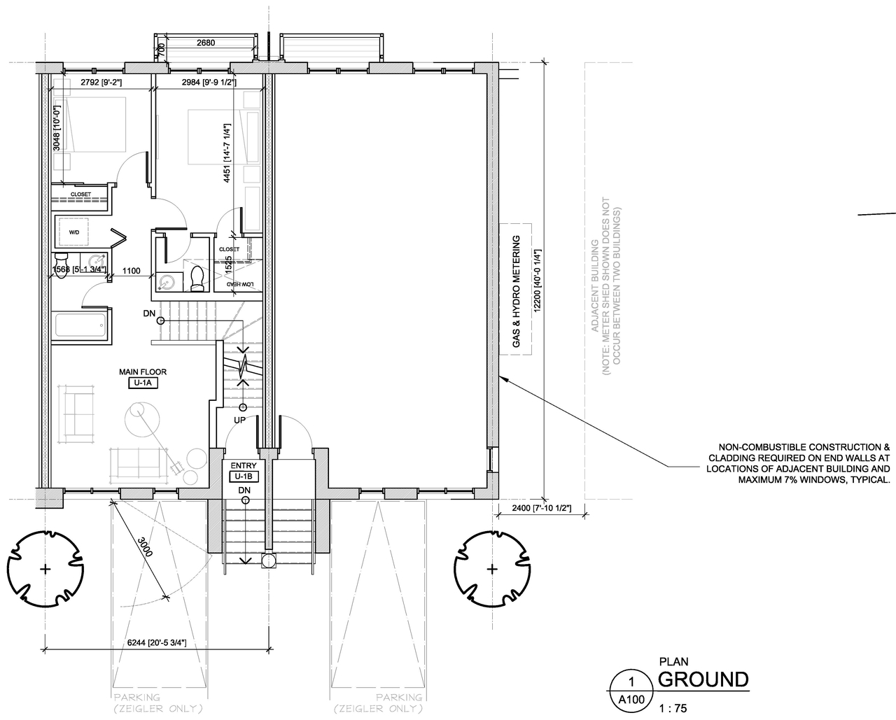
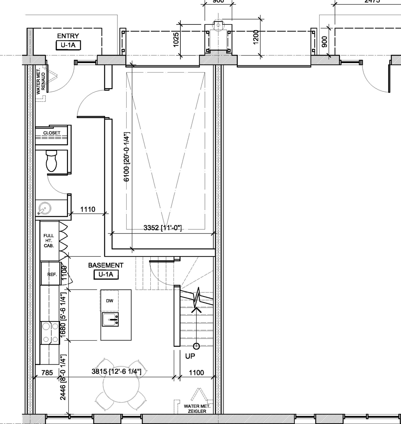
Site Plans, Elevations and Floor Plans#

Additional Information#

Date Initiated2021-12-31
WardWard 19 - Catherine Kitts
All Addresses6001 Renaud Rd.
6005 Renaud Rd.

Documents#

TypeDocument
Application Summary2022-02-11 - Application Summary - D02-02-21-0164 & D07-12-21-0239
Architectural Plans2024-08-15 - Site Plan - D07-12-21-0239
Architectural Plans2024-08-15 - Draft 4R Plan - D07-12-21-0239
Architectural Plans2024-04-25 - Site Plan - D07-12-21-0239
Architectural Plans2024-04-25 - Architectural Drawings - D07-12-21-0239
Architectural Plans2024-01-12 - Site Plan - D07-12-21-0239
Architectural Plans2024-01-12 - Pre Development Watershed Plan - D07-12-21-0239
Architectural Plans2024-01-12 - Post Development Watershed Plan - D07-12-21-0239
Architectural Plans2024-01-12 - Construction Details and Plan and Profile Plans - D07-12-21-0239
Architectural Plans2024-01-12 - Construction Detail Plan - D07-12-21-0239 (2)
Architectural Plans2024-01-12 - Construction Detail Plan - D07-12-21-0239
Architectural Plans2024-01-12 - Demolition Plan - D07-12-21-0239
Architectural Plans2023-06-29 - Site, Elevation, Cross Section, Plans - D07-12-21-0239
Architectural Plans2021-12-31 - Site Plan and Elevations - D07-12-21-0239
Architectural Plans2021-12-31 - Planting Plan and Details - D07-12-21-0239
Architectural Plans2025-01-22 - Site Plan signed - D07-12-21-0239
Architectural Plans2025-01-22 - Architectural Elevations signed - D07-12-21-0239
Civil Engineering Report2024-08-15 - Civil Plans - D07-12-21-0239
Civil Engineering Report2024-04-25 - Civil Plans - D07-12-21-0239
Civil Engineering Report2024-01-12 - Civil Plans Full Set - D07-12-21-0239
Civil Engineering Report2024-01-12 - Civil Plans Cover Page - D07-12-21-0239
Civil Engineering Report2024-01-12 - Civil Plans - D07-12-21-0239
Civil Engineering Report2024-01-12 - Civil General Notes - D07-12-21-0239
Civil Engineering Report2023-06-29 - Civil Plans - D07-12-21-0239
Civil Engineering Report2021-12-31 - Civil Plans - D07-12-21-0239
Civil Engineering Report2025-01-22 - Civil signed - D07-12-21-0239
Design Brief2021-12-31 - Urban Design Brief - D07-12-21-0239
Environmental2021-12-31 - Phase 1 Environmental Site Assessment - D07-12-21-0239
Erosion And Sediment Control Plan2024-01-12 - Erosion Sediment Control Plan - D07-12-21-0239
Floor Plan2021-12-31 - Floor Plans - D07-12-21-0239
Geotechnical Report2024-01-12 - Grading and Drainage Plan - D07-12-21-0239
Geotechnical Report2021-12-31 - Geotechnical Investigation - D07-12-21-0239
Landscape Plan2024-04-25 - Landscape Plans - D07-12-21-0239
Landscape Plan2024-01-12 - Landscape Plans - D07-12-21-0239
Landscape Plan2023-06-29 - Landscape Plans - D07-12-21-0239
Landscape Plan2025-01-22 - Landscape Plan signed - D07-12-21-0239
Noise Study2024-01-12 - Roadway Traffic Noise Assessment - D07-12-21-0239
Noise Study2021-12-31 - Traffic Noise Assessment - D07-12-21-0239
Planning2021-12-31 - Planning Rationale - D07-12-21-0239
Rendering2021-12-31 - Renderings - D07-12-21-0239
Site Servicing2024-08-15 - Servicing Study Appendix F - D07-12-21-0239
Site Servicing2024-04-25 - Servicing & SWM Report - D07-12-21-0239
Site Servicing2024-01-12 - Servicing Plan - D07-12-21-0239
Stormwater Management2024-08-15 - Appendix D Stormwater Calculations - D07-12-21-0239
Stormwater Management2024-04-25 - SWM Report Appendix F - D07-12-21-0239
Stormwater Management2024-04-25 - SWM Report Appendix E - D07-12-21-0239
Stormwater Management2024-04-25 - SWM Report Appendix D - D07-12-21-0239
Stormwater Management2024-04-25 - SWM Report Appendix C - D07-12-21-0239
Stormwater Management2024-04-25 - SWM Report Appendix B - D07-12-21-0239
Stormwater Management2024-01-12 - Stormwater Managment Report with all appendices and drawings - D07-12-21-0239
Stormwater Management2024-01-12 - Stormwater Management Plan - D07-12-21-0239
Stormwater Management2023-06-29 - Stormwater Management and Servicing Report - D07-12-21-0239
Stormwater Management2021-12-31 - Stormwater Management and Servicing Report - D07-12-21-0239
Stormwater Management024-08-15 - SWM and Servicing Report - D07-12-21-0239
Surveying2024-01-12 - Topographical and Plan and Profile Plans - D07-12-21-0239
Surveying2024-01-12 - Topographical and Plan and Profile Plans - D07-12-21-0239
Surveying2024-01-12 - Topograohical Survey Drawing - D07-12-21-0239
Surveying2024-01-12 - Topograohical Survey Drawing - D07-12-21-0239
Surveying2021-12-31 - Topographic Survey - D07-12-21-0239
Transportation Analysis2021-12-31 - Transportation Impact Assessment Screening Form - D07-12-21-0239
Tree Information and Conservation2024-08-15 - Tree Conservation Report - D07-12-21-0239
Tree Information and Conservation2024-04-25 - Tree Conservation Report - D07-12-21-0239
Tree Information and Conservation2023-06-29 - Tree Conservation Report - D07-12-21-0239
Tree Information and Conservation2021-12-31 - Tree Conservation Report - D07-12-21-0239
2024-08-15 - Appendix C Sanitary Calculations - D07-12-21-0239
2024-08-15 - Appendix B Water Supply Calculations - D07-12-21-0239
2021-12-31 - Slope Stability Analysis - D07-12-21-0239
2021-12-31 - Seismic Shear Wave Analysis Report - D07-12-21-0239
2024-09-27 - SWMReport - D07-12-21-0239
2025-01-23 - Delegated Authority Report - D07-12-21-0239