4497 O’Keefe Ct.#
Last updated: 2026-01-24 · ID: D02-02-25-0061
Summary#
A new urban subdivision is proposed that would result in 1493 new residential units and approximately 3657 square metres of commercial space. The proposed subdivision will also include new parks, streets, and will conserve existing environmental areas. The proposed development is intended to be serviced on full municipal services.
Status
Active (OMB Package Sent)
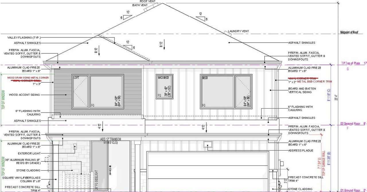
Building Scale (Max.)
Based on elevation drawings. Values may be approximate. See sources for exact figures.
Low-rise · 3 storeys
· 10.4 m
Data Quality Note
Height was partially estimated using visual scale. This may be approximate.
Data Quality Note
Text was extracted using optical character recognition. This may introduce artifacts or misreads.
Renders#
Location#
Select a marker to view the address.
Site Plans, Elevations and Floor Plans#
Additional Information#
| Date Initiated | 2025-08-22 |
| Ward | Ward 3 - David Hill |
| Other IDs | D07-16-25-0015 |





























