261 Buena Vista Rd.#
Last updated: 2025-12-31 · ID: D09-04-25-0063
Summary#
The City has received an application to alter 231 Buena Vista Road, the Elmwood School, a property designated under Part V of the Ontario Heritage Act as part of the Rockcliffe Park Heritage Conservation District.
Status
Active (Report Completed)
Building Scale (Max.)
Based on elevation drawings. Values may be approximate. See sources for exact figures.
Low-rise · 3 storeys
· 9.5 m
Location#
Select a marker to view the address.
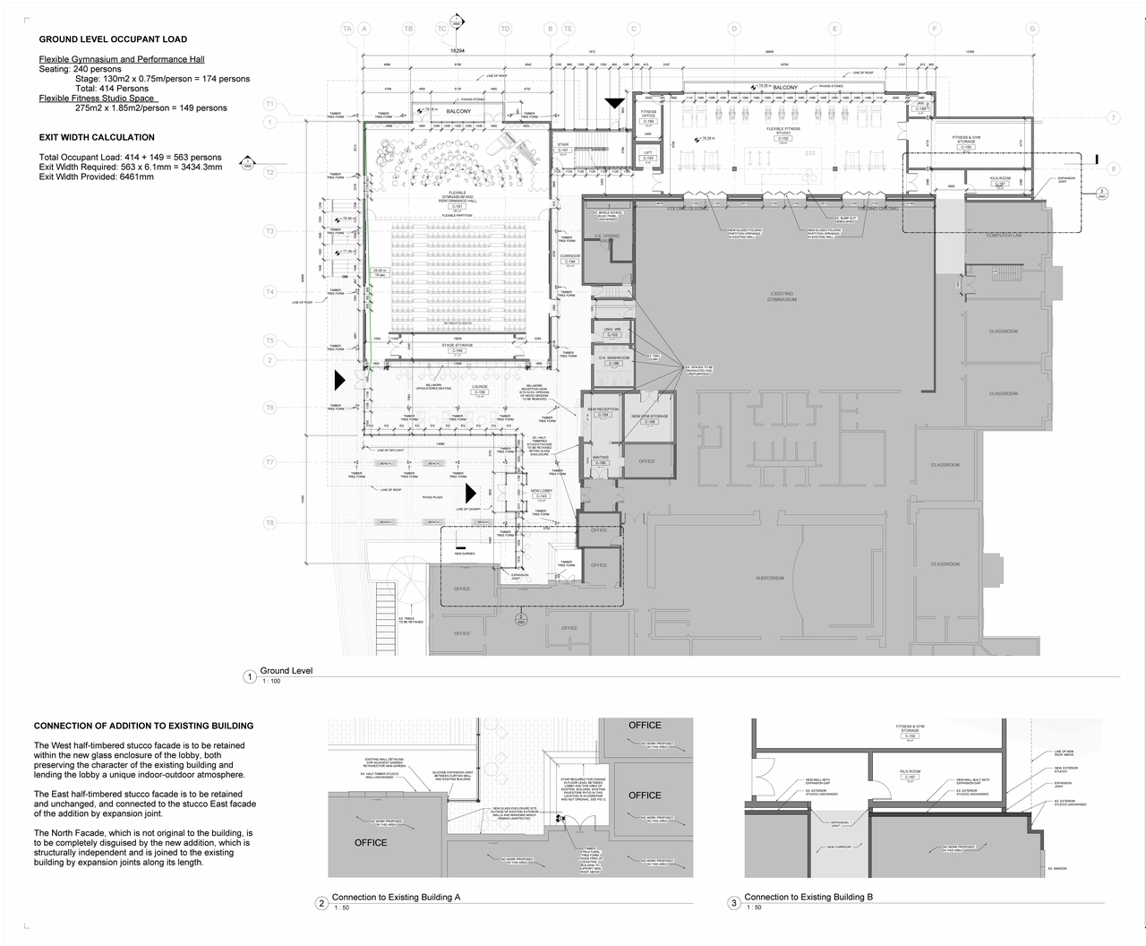
Site Plans, Elevations and Floor Plans#
Additional Information#
| Date Initiated | 2025-11-24 |
| Ward | Ward 13 - Rawlson King |
Documents#
| Type | Document |
|---|---|
| Architectural Plans | 2025-12-31 - Architectural Package - D09-04-25-0063 |
| Architectural Plans | 2025-12-31 - Architectural Package - D09-04-25-0063 |
| Floor Plan | 2025-12-31 - Ground Floor Plan - D09-04-25-0063 |
| 2025-12-31 - Project Description - D09-04-25-0063 |
