315 Chapel St.#
Last updated: 2024-12-20 · ID: D09-04-24-0003
Summary#
Application for new construction at 315 Chapel Street, a property designated under Part IV of the Ontario Heritage Act
Status
Inactive (Heritage Permit Issued)
Building Scale (Max.)
Based on elevation drawings. Values may be approximate. See sources for exact figures.
Mid-rise · 9 storeys
Data Quality Note
Text was extracted using optical character recognition. This may introduce artifacts or misreads.
· 33 m
Data Quality Note
Height was partially estimated using visual scale. This may be approximate.
Renders#
Location#
Select a marker to view the address.
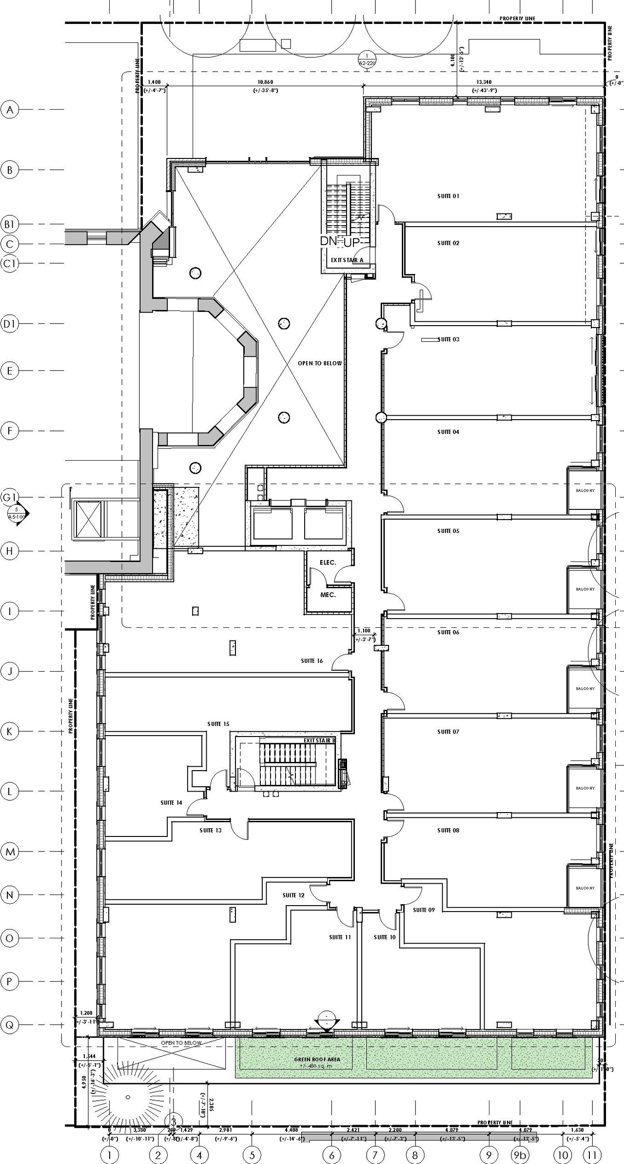
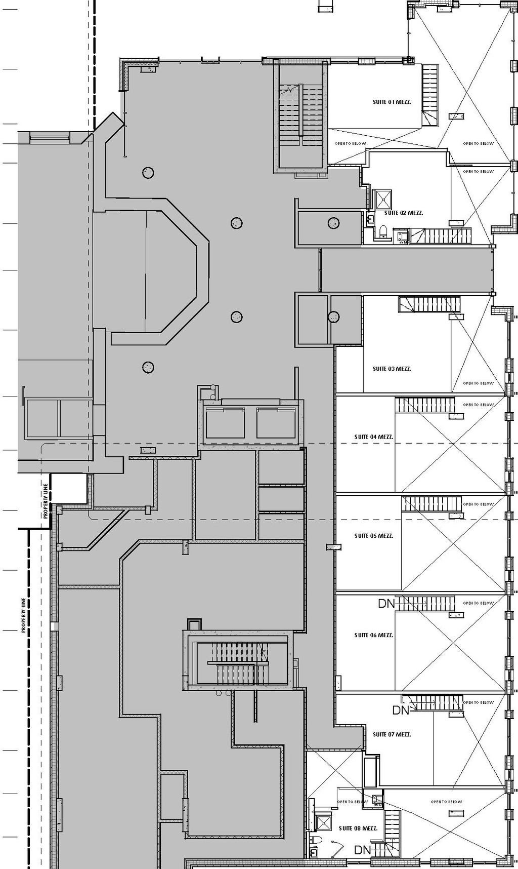
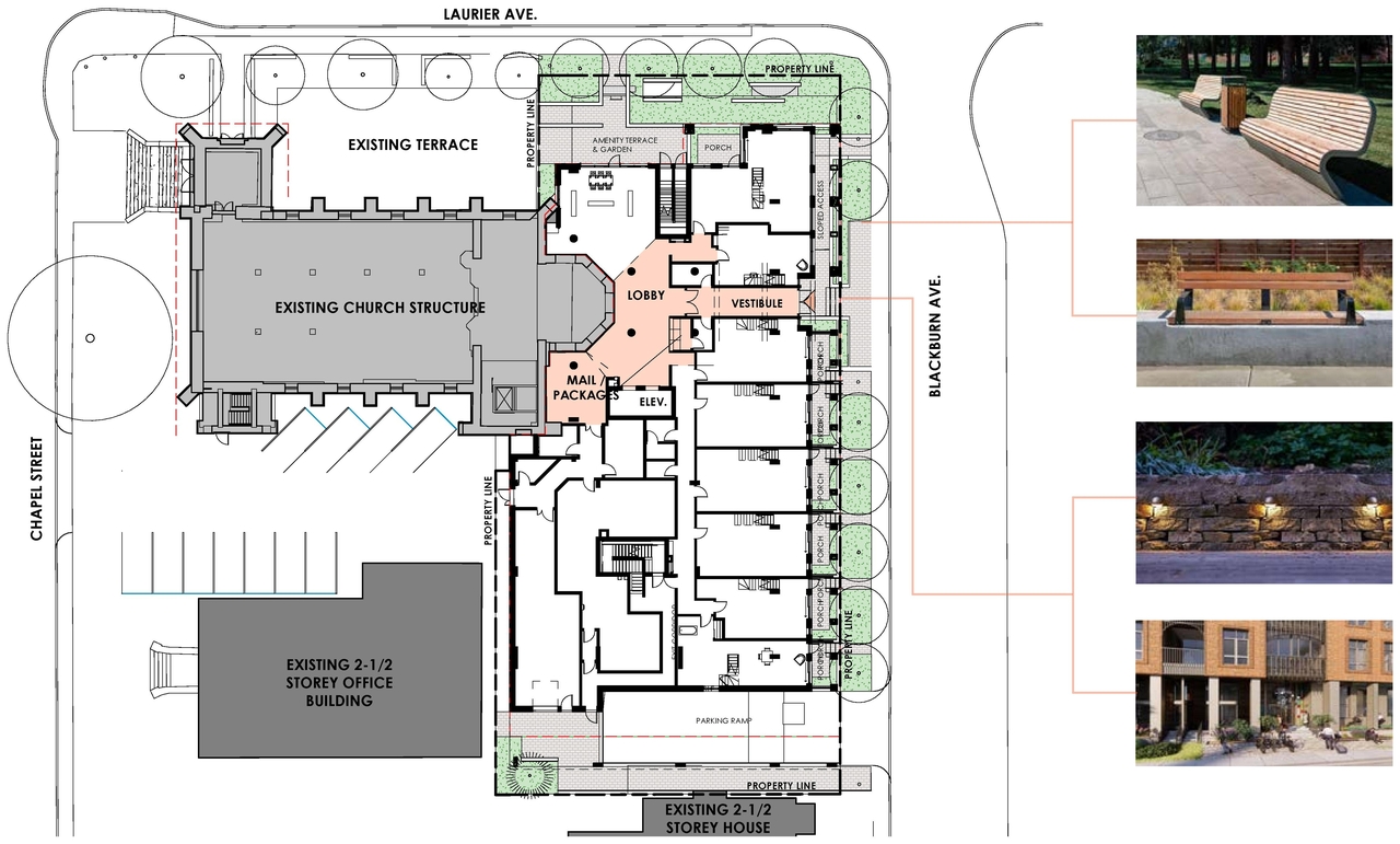
Site Plans, Elevations and Floor Plans#
Additional Information#
| Date Initiated | 2024-02-15 |
| Ward | Ward 12 - Stéphanie Plante |
Documents#
| Type | Document |
|---|---|
| Architectural Plans | 315 Chapel Street - Site Plan and Elevations |
| Design Brief | 315 Chapel Street - Design Brief |
| 315 Chapel Street - Heritage Impact Assessment |
















































