114 Richmond Rd.#
Last updated: 2023-08-22 · ID: D09-04-23-0042
Summary#
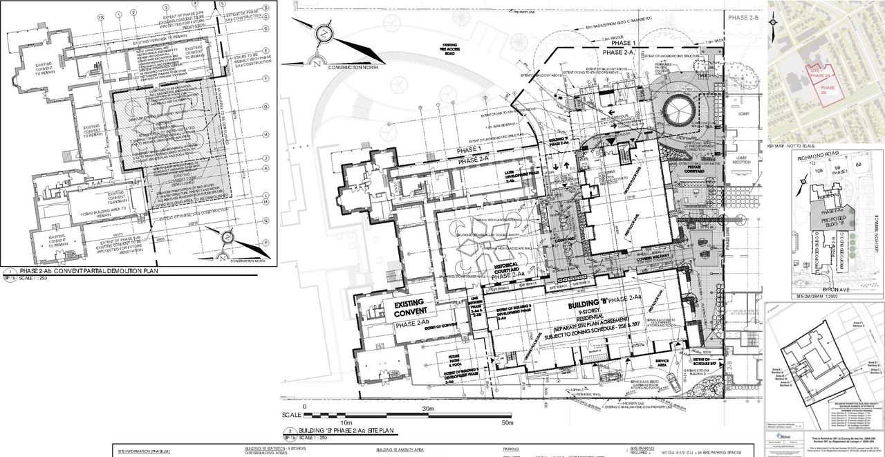
An application to alter the former Sisters of the Visitation Monestary at 114 Richmond Road, a property designated under Part IV of the Ontario Heritage Act
Status
Active (Report in Progress)
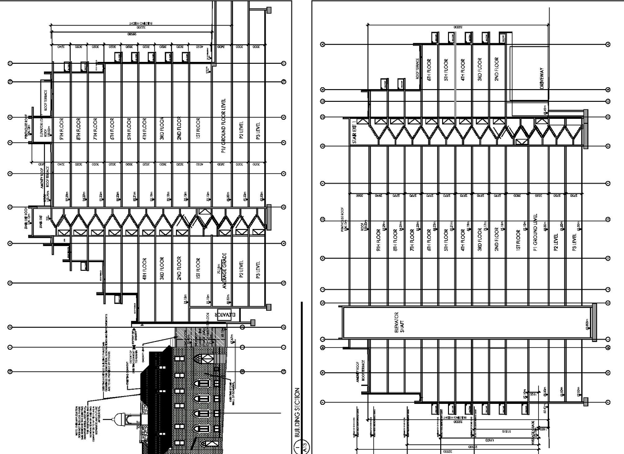
Building Scale (Max.)
Based on elevation drawings. Values may be approximate. See sources for exact figures.
Mid-rise · 9 storeys
Data Quality Note
Text was extracted using optical character recognition. This may introduce artifacts or misreads.
· 35.68 m
Data Quality Note
Text was extracted using optical character recognition. This may introduce artifacts or misreads.
Renders#
Location#
Select a marker to view the address.
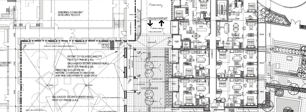
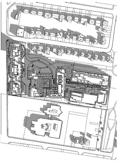
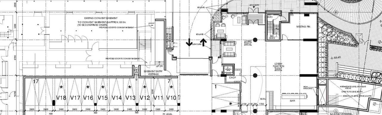
Site Plans, Elevations and Floor Plans#
Additional Information#
| Date Initiated | 2023-08-22 |
| Ward | Ward 15 - Jeff Leiper |
Documents#
| Type | Document |
|---|---|
| Architectural Plans | 2023-08-22 Site Plan |
| Architectural Plans | 2023-08-22 Elevations & Materials |
| Architectural Plans | 2023-08-22 Conservation Plan |
| Design Brief | 2023-08-22 Design Brief |
| 2023-08-22 Heritage Imapct Assessment |






















