514 Manor Ave.#
Last updated: 2023-05-10 ยท ID: D09-04-22-0039
Summary#
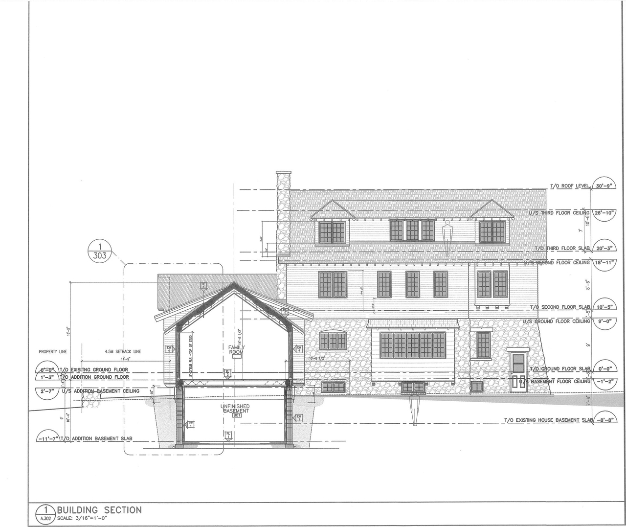
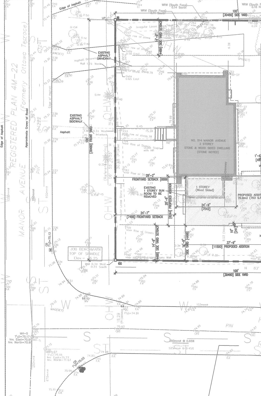
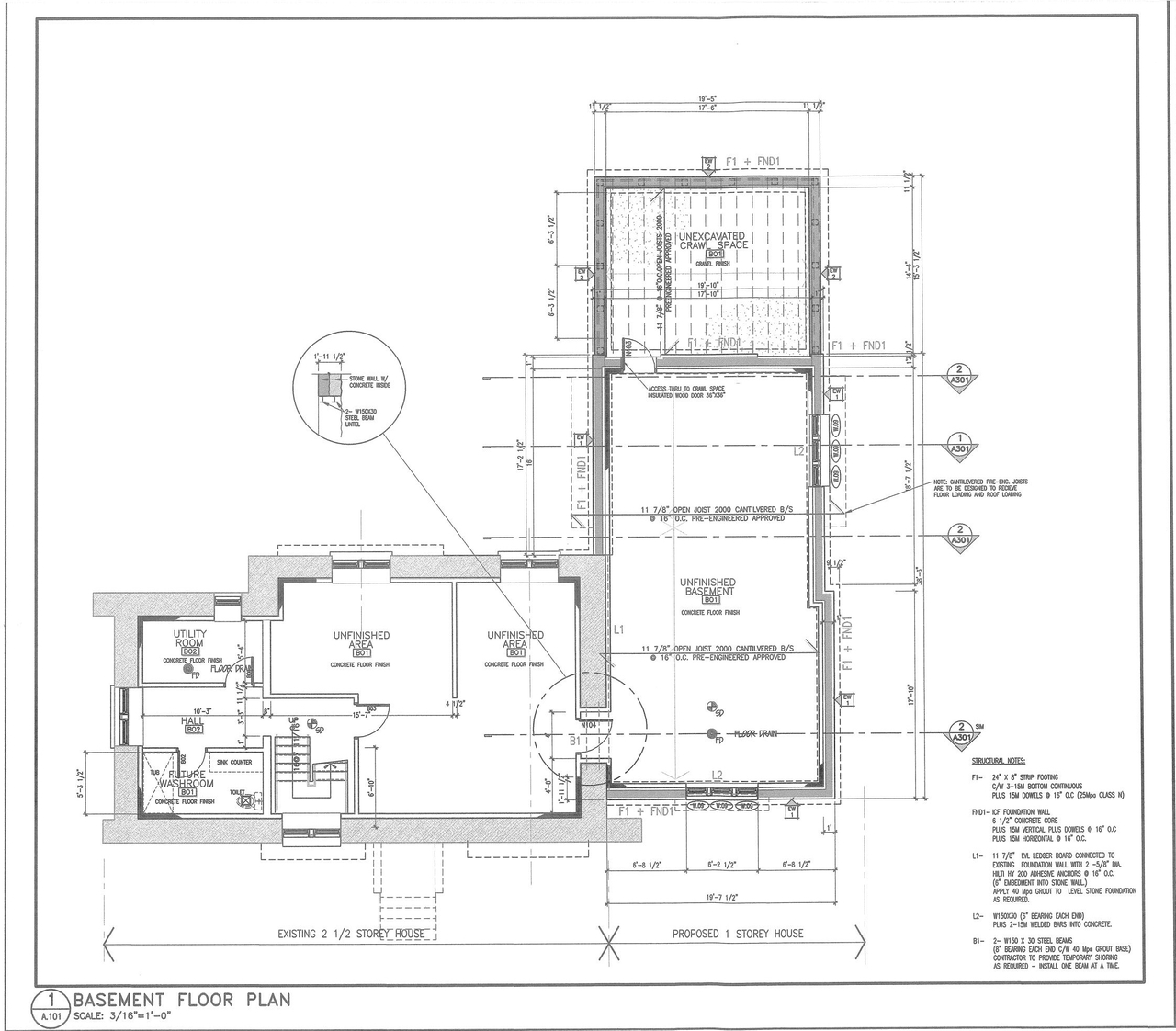
An application to alter 514 Manor Avenue, a property designated under Part V of the Ontario Heritage Act
Status
Inactive (Heritage Permit Issued)
Location#
Select a marker to view the address.
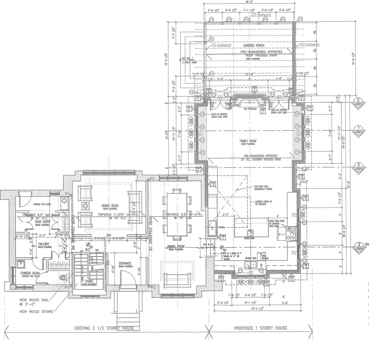
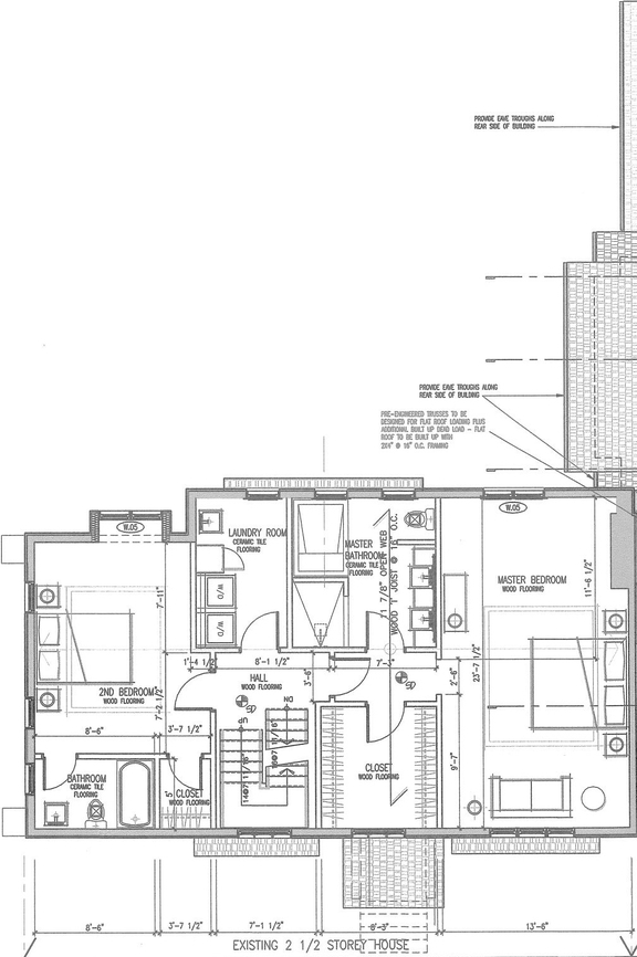
Site Plans, Elevations and Floor Plans#
Additional Information#
| Date Initiated | 2022-08-02 |
| Ward | Ward 13 - Rawlson King |
Documents#
| Type | Document |
|---|---|
| Architectural Plans | 2023-03 Site Plan |
| Rendering | 2023-03 Elevations and Renderings |
| Surveying | 2023-03 Survey |
| 2023-03 Cultural Heritage Impact Statement |














