4624 Spratt Rd.#
Last updated: 2026-04-11 · ID: D07-12-26-0026
Summary#
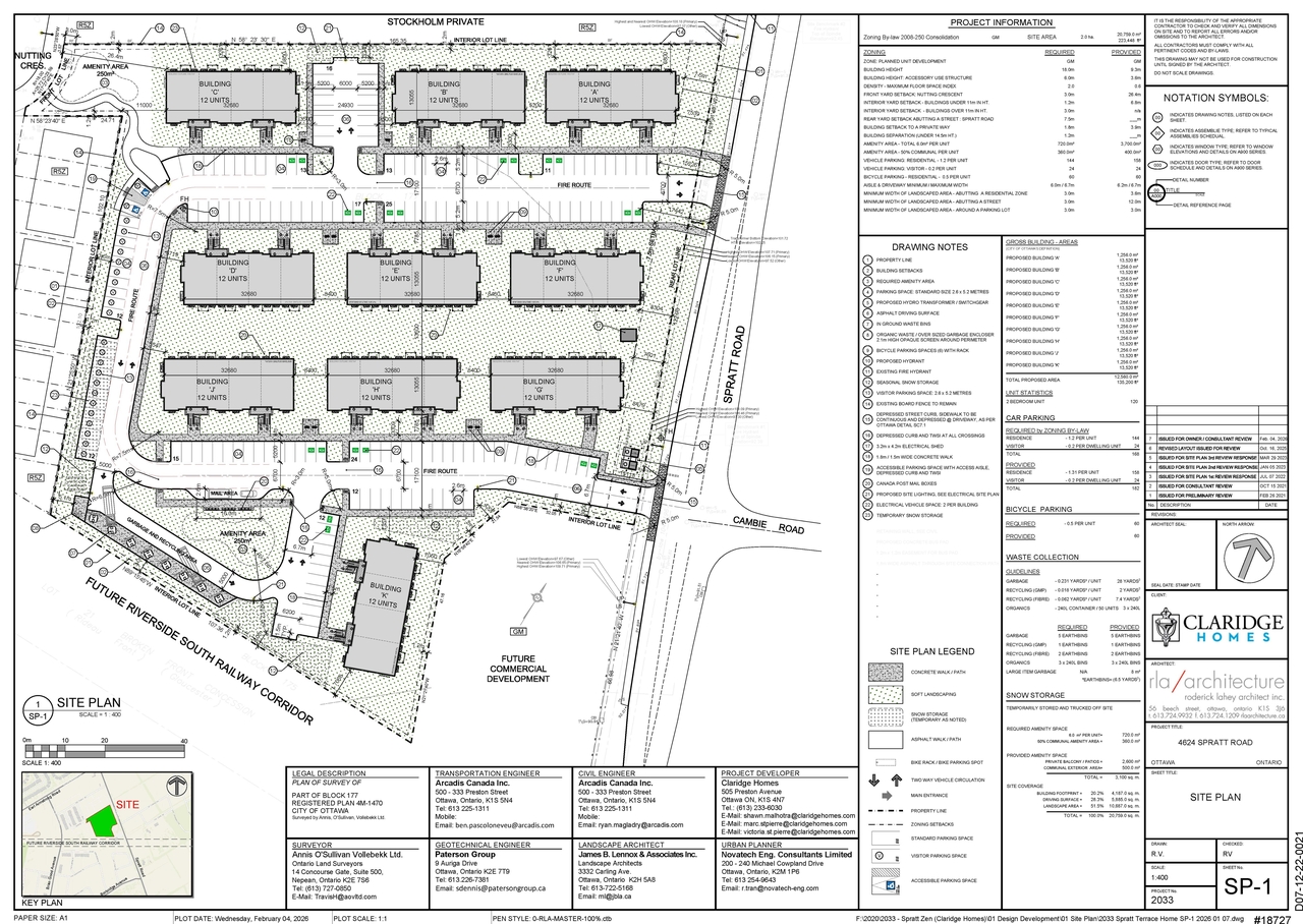
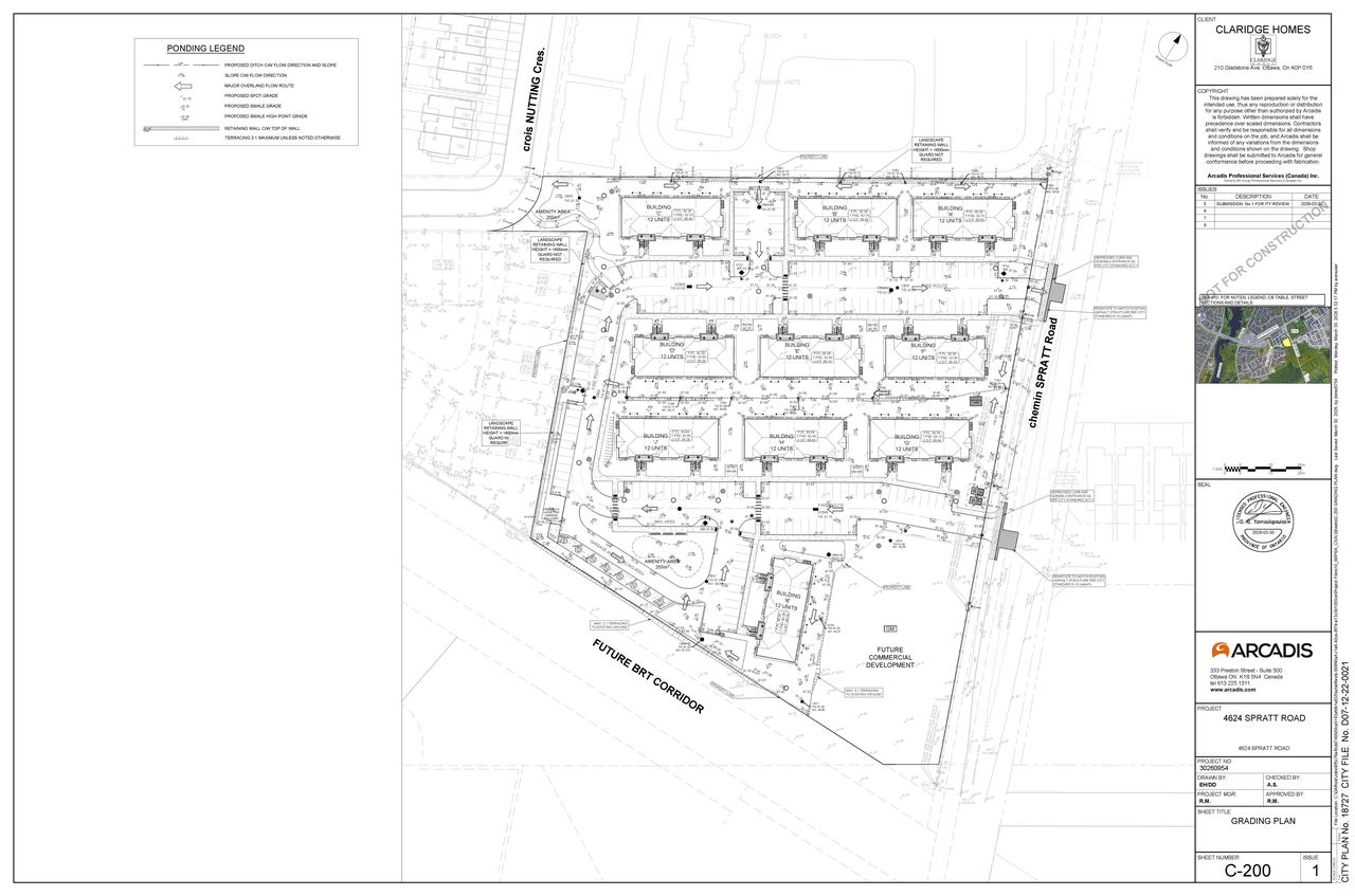
The City of Ottawa has received a Site Plan Control Revision application to amend the previous Site Plan Control approval on the site. The proposal includes 120 residential units within 10 two-and-a-half-storey stacked dwelling buildings, a private road, amenity area, and parking.
Status
Active (On Circulation; Initial Submission Review)
Active (On Circulation; Initial Submission Review)
Type
Site Plan Control
Site Plan Control
Building Scale (Max.)
Based on elevation drawings. Values may be approximate. See sources for exact figures.
Low-rise · 2 storeys
· 7.6 m
Data Quality Note
Height was partially estimated using visual scale. This may be approximate.
Location#
Select a marker to view the address.
Project Updates#
Status Updated
- Status: Active (On Circulation; Initial Submission Review)
Added 1 document
Added description, height, 13 images and 1 document
- Status: Active (Community Heads Up - supporting documents to be posted later during circulation period)
- The City of Ottawa has received a Site Plan Control Revision application to amend the previous Site Plan Control approval on the site. The …
- Height: 7.6 m
- Storeys: 2 storeys
- 13 site plans
Site Plans, Elevations and Floor Plans#
Additional Information#
| Date Initiated | 2026-03-13 |
| Ward | Ward 22 - Steve Desroches |












