131-139 Parkdale Ave./122 Forward Ave.#
Last updated: 2026-03-25 · ID: D07-12-26-0023
Summary#
The City of Ottawa has received Official Plan Amendment, Zoning By-law Amendment and Site Plan Control applications to construct a 40-storey high-rise and a six-storey mid-rise building with a combined 429 dwelling units, four units of ground-floor commercial, 207 vehicular parking spaces, and 472 bicycle parking spaces.
Status
Active (On Circulation; Initial Submission Review)
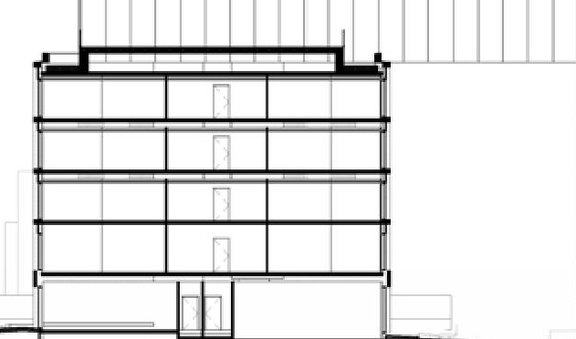
Building Scale (Max.)
Based on elevation drawings. Values may be approximate. See sources for exact figures.
High-rise · 40 storeys
· 140.9 m
Renders#
Location#
Select a marker to view the address.
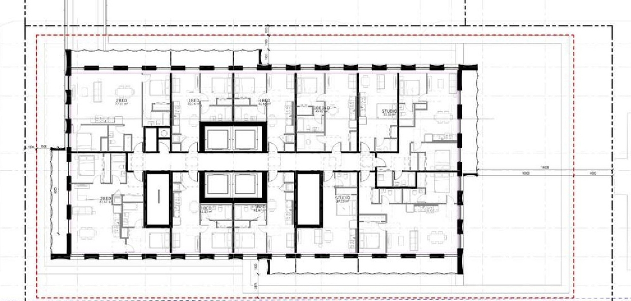
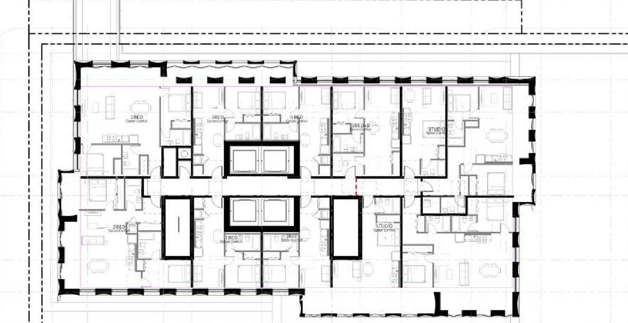
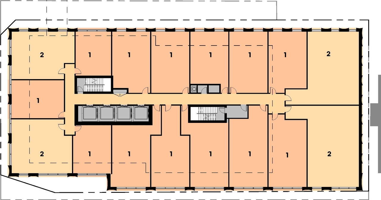
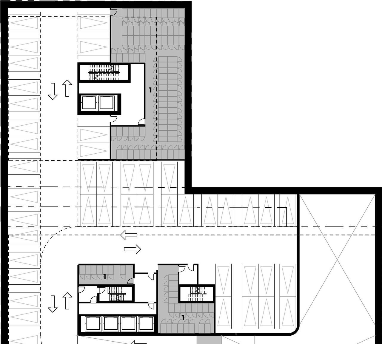
Site Plans, Elevations and Floor Plans#
Additional Information#
| Date Initiated | 2026-03-09 |
| Ward | Ward 15 - Jeff Leiper |
| All Addresses | 131 Parkdale Ave. 139 Parkdale Ave. 122 Forward Ave. |











































