100 Bareille-Snow St.#
Last updated: 2026-04-03 · ID: D07-12-26-0020
Summary#
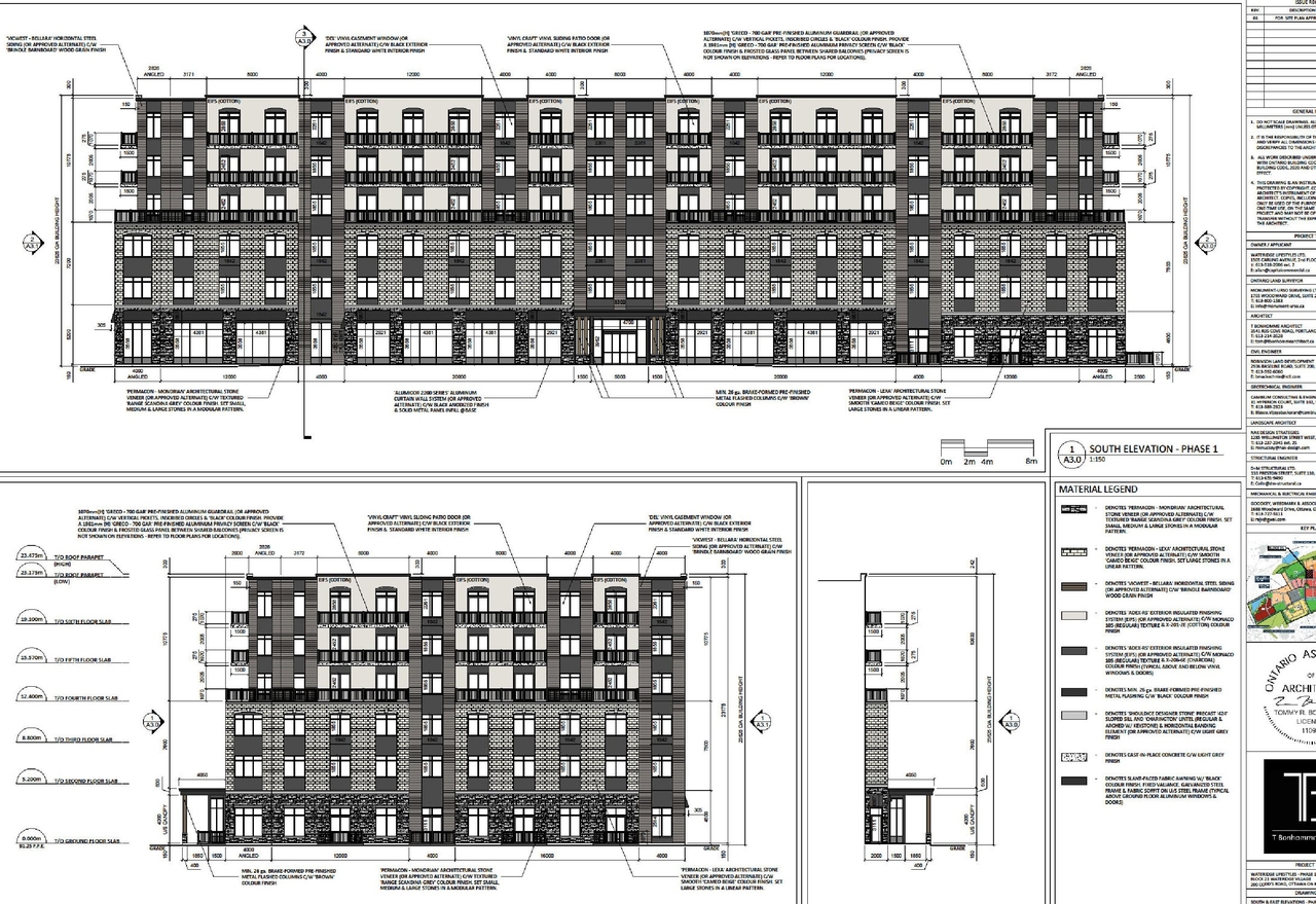
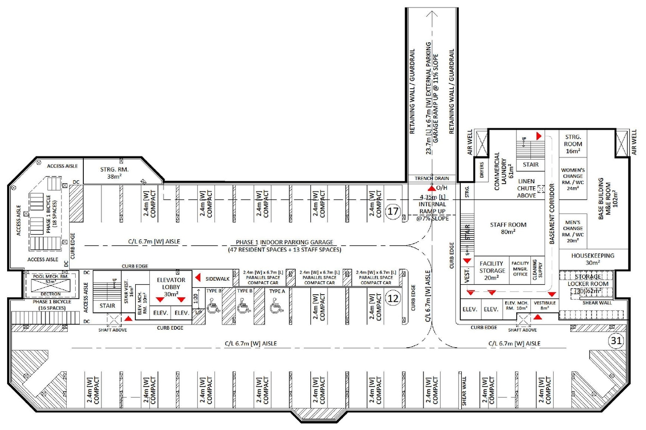
New 6-storeys retirement dwelling with 188 units and 1 level of underground parking
Status
Active (Community Heads Up - supporting documents to be posted later during circulation period)
Building Scale (Max.)
Based on elevation drawings. Values may be approximate. See sources for exact figures.
Mid-rise · 6 storeys
· 23.48 m
Renders#
Location#
Select a marker to view the address.
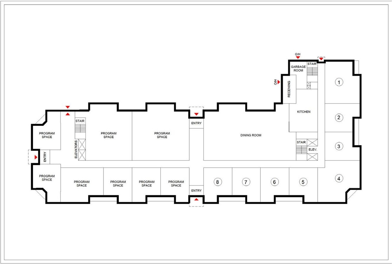
Site Plans, Elevations and Floor Plans#
Additional Information#
| Date Initiated | 2026-03-06 |
| Ward | Ward 13 - Rawlson King |



















