1600 James Naismith Dr.#
Last updated: 2026-03-07 · ID: D07-12-26-0016
Summary#
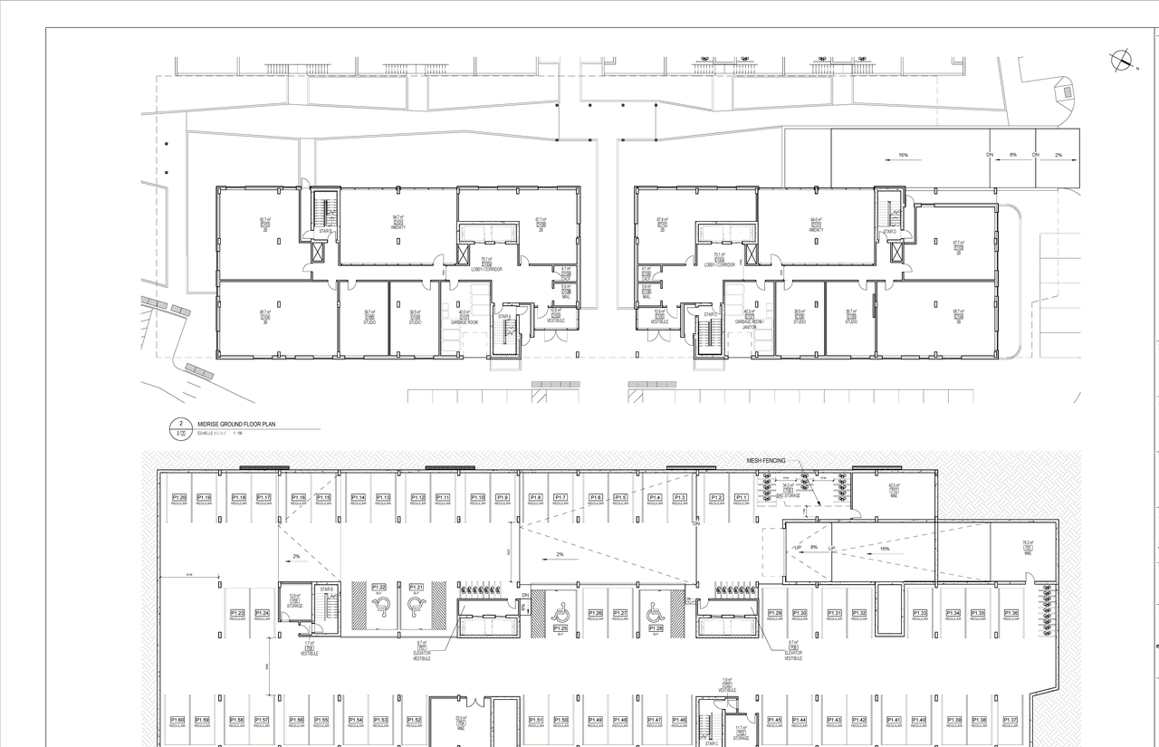
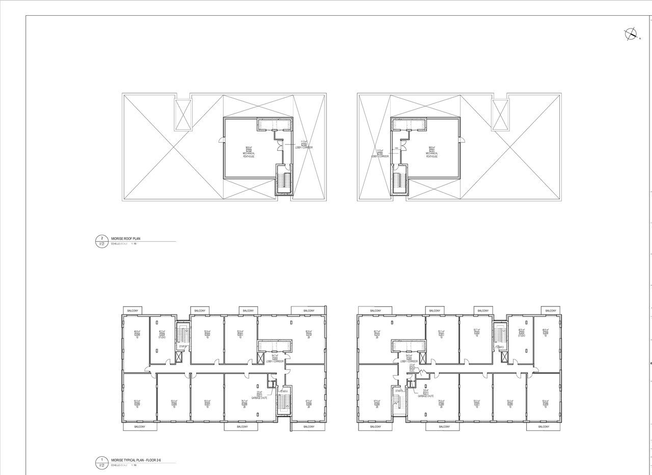
A Site Plan Control application to construct three townhouse blocks and two six-storey mid-rise apartment buildings, for a total of 12,177.2 square metres of ground floor area and 194 dwelling units in Phase 2 of the redevelopment of the subject property.
Status
Active (On Circulation; Initial Submission Review)
Building Scale (Max.)
Based on elevation drawings. Values may be approximate. See sources for exact figures.
Mid-rise · 6 storeys
· 23 m
Location#
Select a marker to view the address.
Site Plans, Elevations and Floor Plans#
Additional Information#
| Date Initiated | 2026-02-20 |
| Ward | Ward 11 - Tim Tierney |



