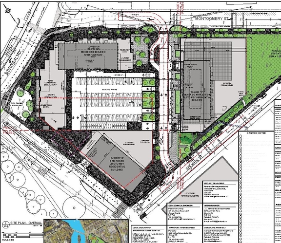
3 Selkirk St.#
Last updated: 2026-03-26 · ID: D07-12-26-0015
Summary#
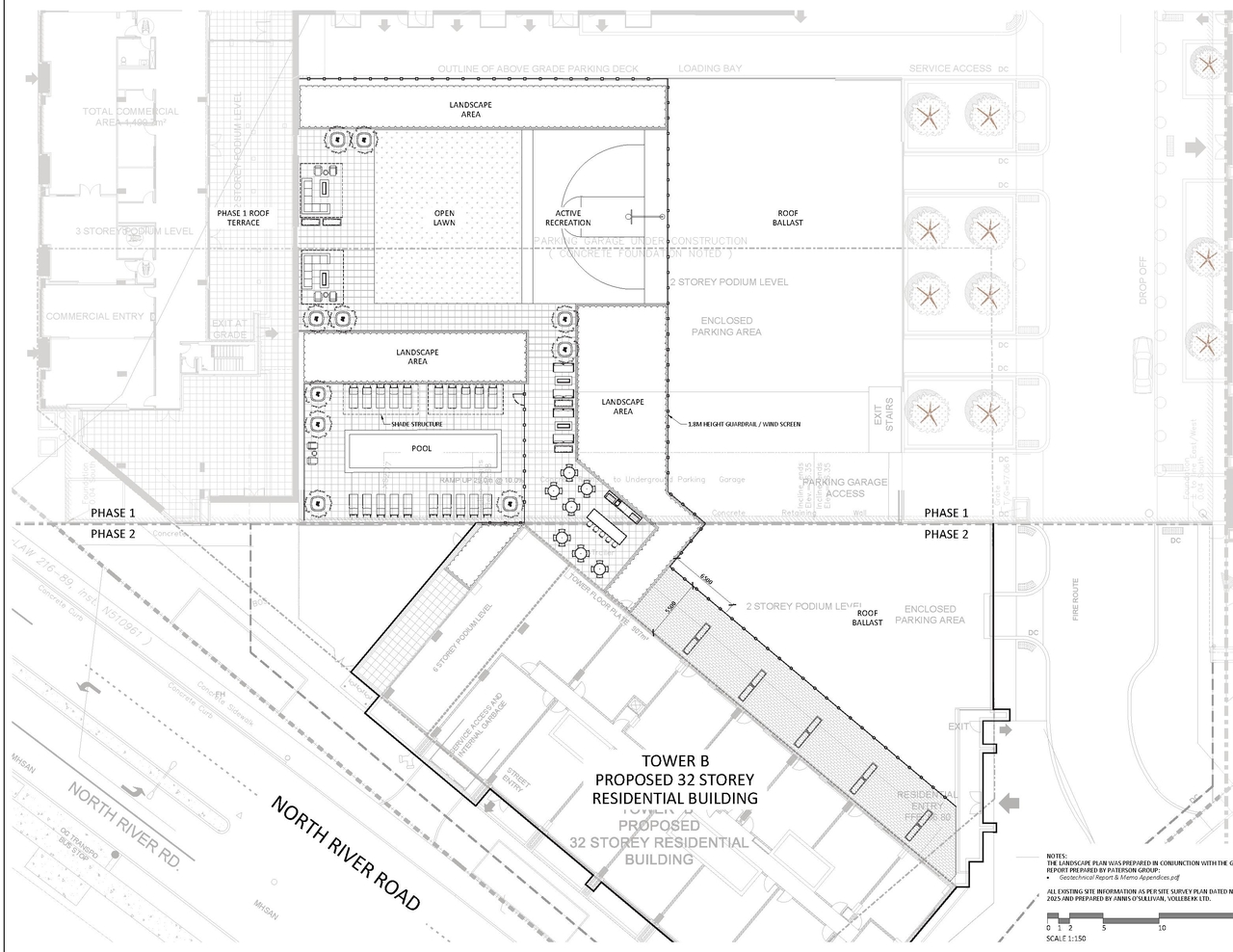
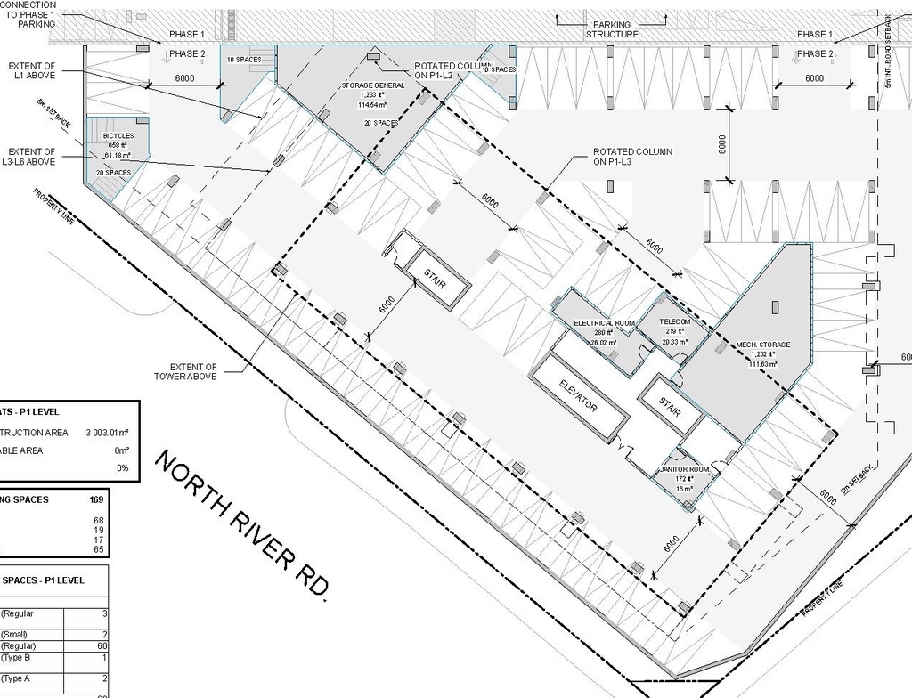
Phase 2 of a multi-phase development site. Building B and associated above-grade parkade totaling 366,931 sq.ft (34,089 sq.m). Building height proposed at 32 storeys, which will include 445 rental residential units and 10,534 sq.ft (979 sq.m) of above-grade parking. 169 parking spaces will be located underground and in the above-grade parking structure. 234 bike parking stalls will be provided.
Status
Active (On Circulation; Initial Submission Review)
Building Scale (Max.)
Based on elevation drawings. Values may be approximate. See sources for exact figures.
High-rise · 34 storeys
Renders#
Location#
Select a marker to view the address.
Site Plans, Elevations and Floor Plans#
Additional Information#
| Date Initiated | 2026-02-19 |
| Ward | Ward 12 - Stéphanie Plante |





























