71 Russell Ave.#
Summary#
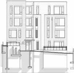
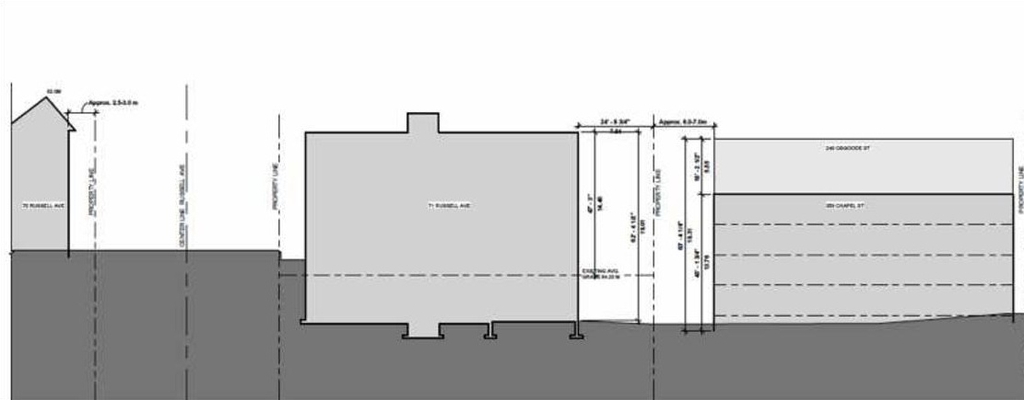
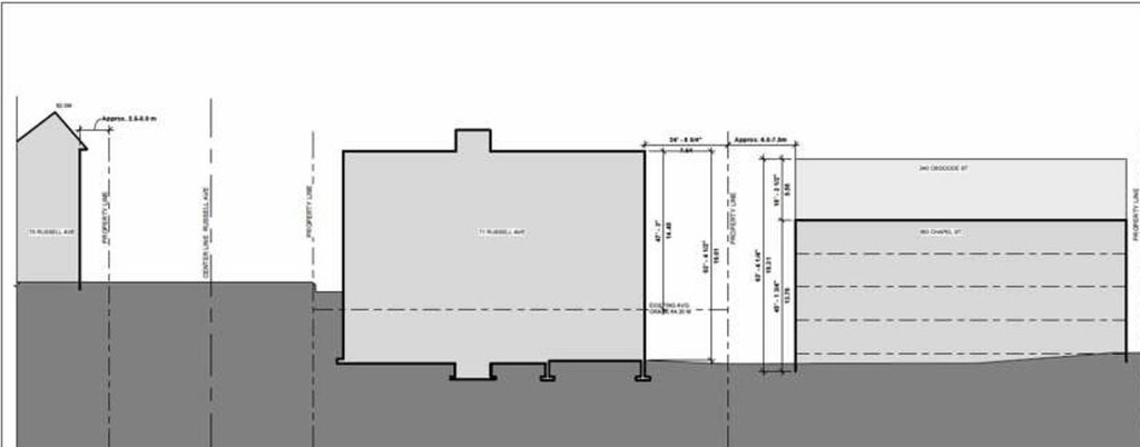
The proposed development is to demolish the existing 1-storey dwelling along with the existing 2 accessory structures in the rear and construct a 4-storey, 28-unit low-rise apartment dwelling. The proposed development proposes 28 bicycle parking spaces, zero vehicular parking spaces, a 1.8 m walkway from the sidewalk directly to the front door.
Status
Active (On Circulation; Initial Submission Review)
Building Scale (Max.)
Based on elevation drawings. Values may be approximate. See sources for exact figures.
Mid-rise · 4 storeys
Data Quality Note
Text was extracted using optical character recognition. This may introduce artifacts or misreads.
· 14.4 m
Data Quality Note
Text was extracted using optical character recognition. This may introduce artifacts or misreads.
Renders#
Location#
Site Plans, Elevations and Floor Plans#
Additional Information#
| Date Initiated | 2026-02-11 |
| Ward | Ward 12 - Stéphanie Plante |





















