1746 Carling Ave.#
Last updated: 2026-03-07 · ID: D07-12-26-0013
Summary#
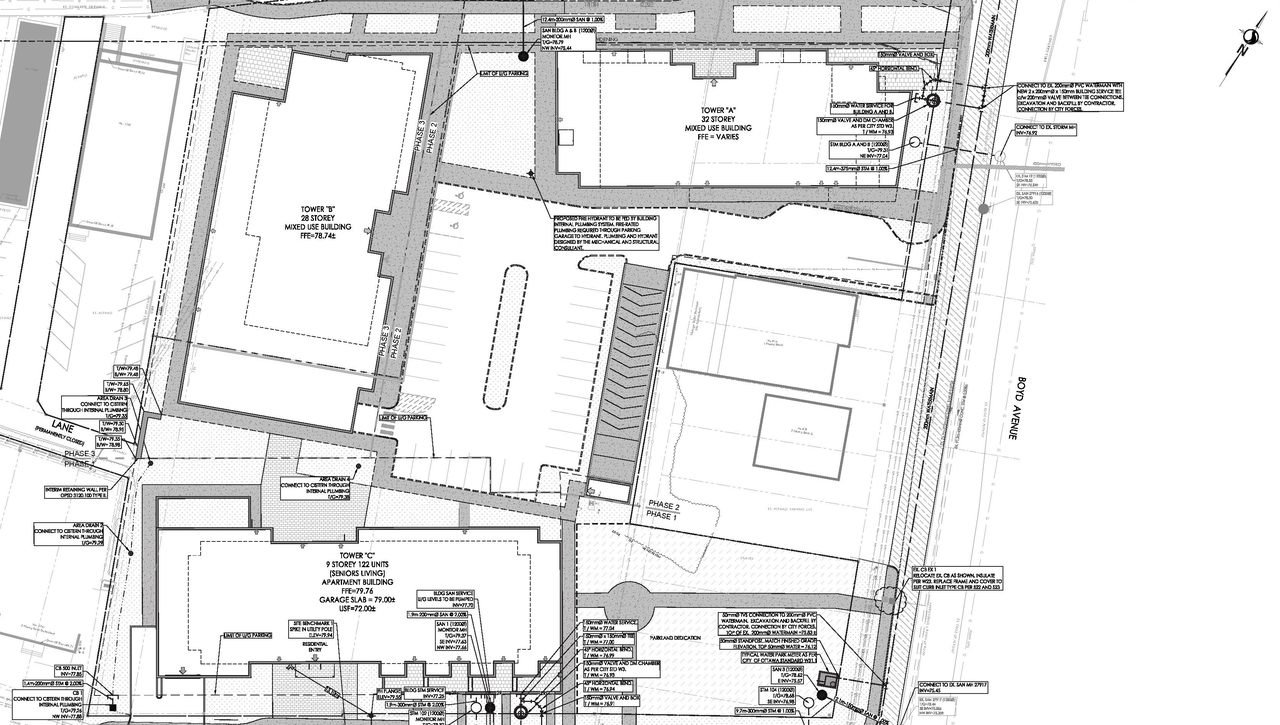
The City of Ottawa has received Zoning By-law Amendment and Site Plan Control applications to permit two high-rise buildings along Carling Avenue, a mid-rise building along Kerr Avenue and a park at the northwest corner of Boyd and Kerr Avenue.
Status
Active (On Circulation; Initial Submission Review)
Building Scale (Max.)
Based on elevation drawings. Values may be approximate. See sources for exact figures.
High-rise · 32 storeys
· 96.5 m
Renders#
Location#
Select a marker to view the address.
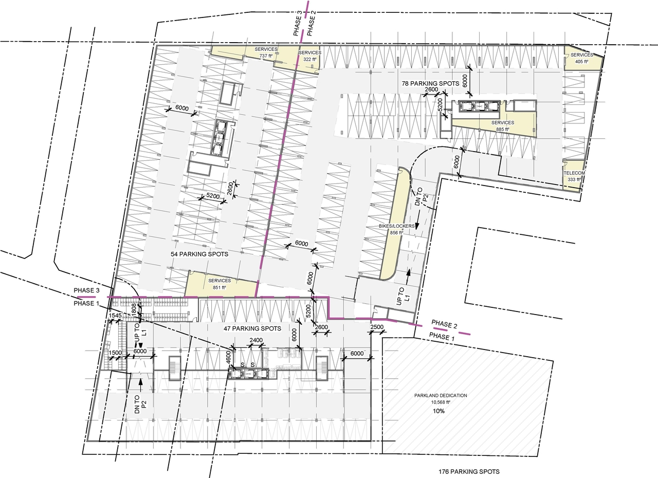
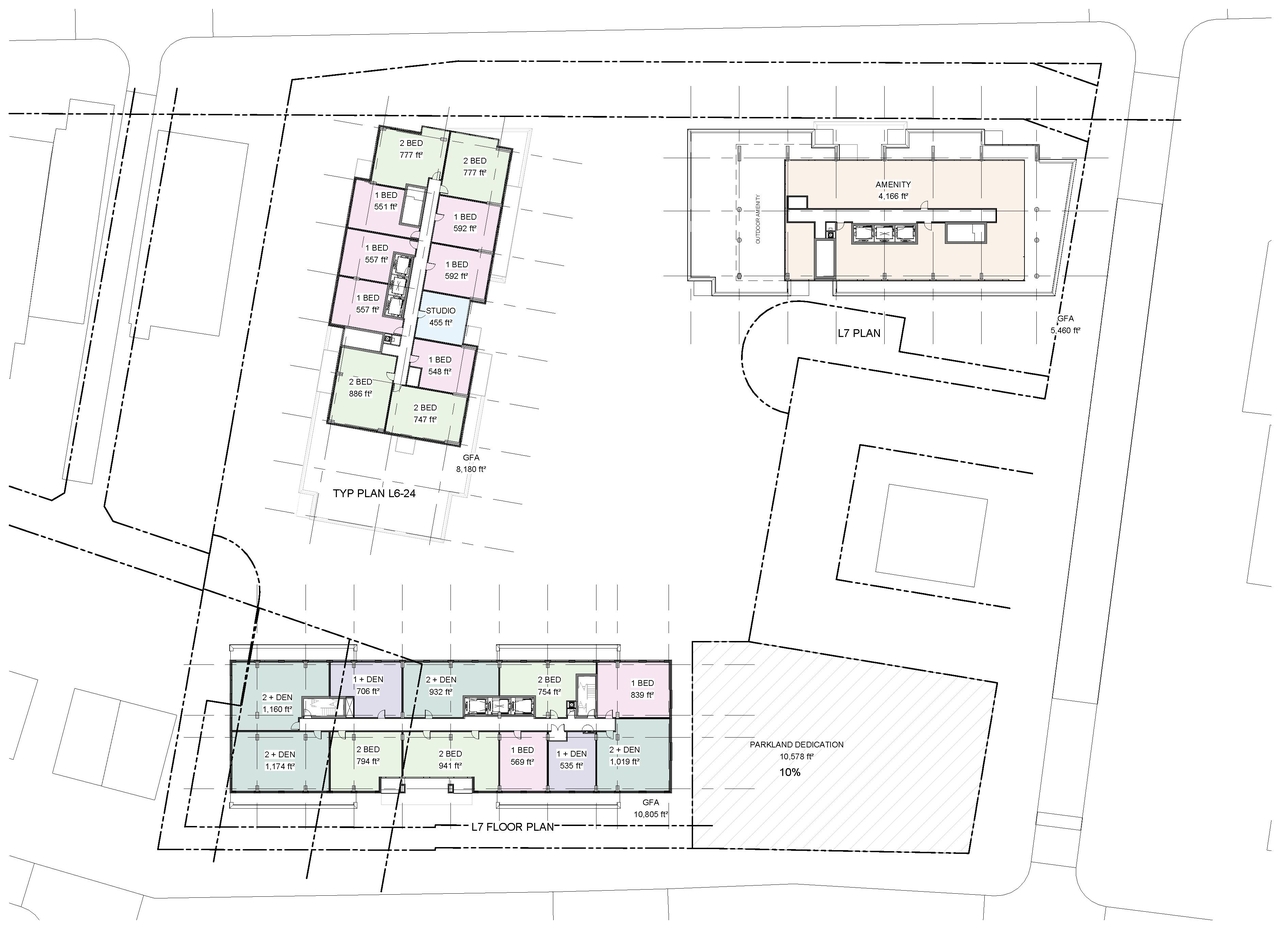
Site Plans, Elevations and Floor Plans#
Additional Information#
| Date Initiated | 2026-02-10 |
| Ward | Ward 7 - Theresa Kavanagh |




















