1767-1773 Baseline Rd.#
Last updated: 2026-03-03 · ID: D07-12-25-0169
Summary#
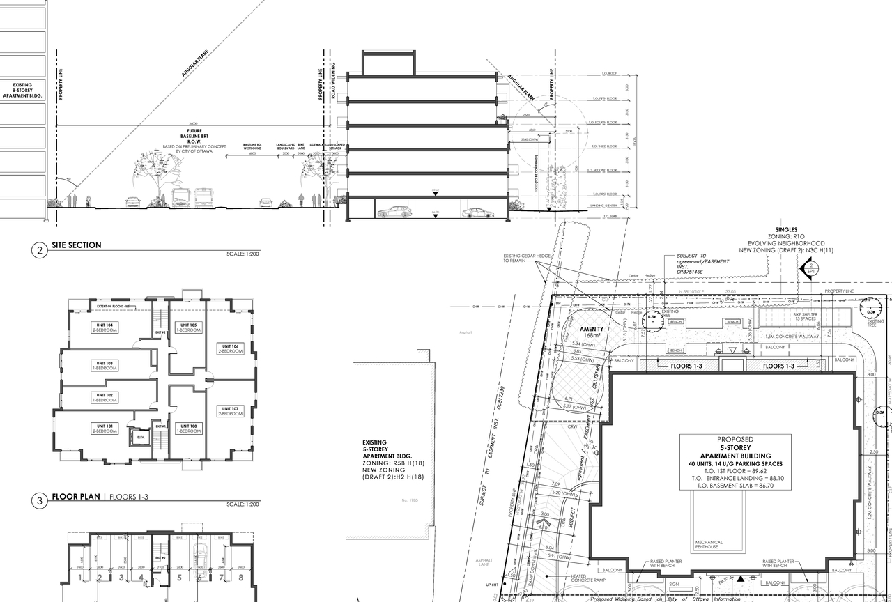
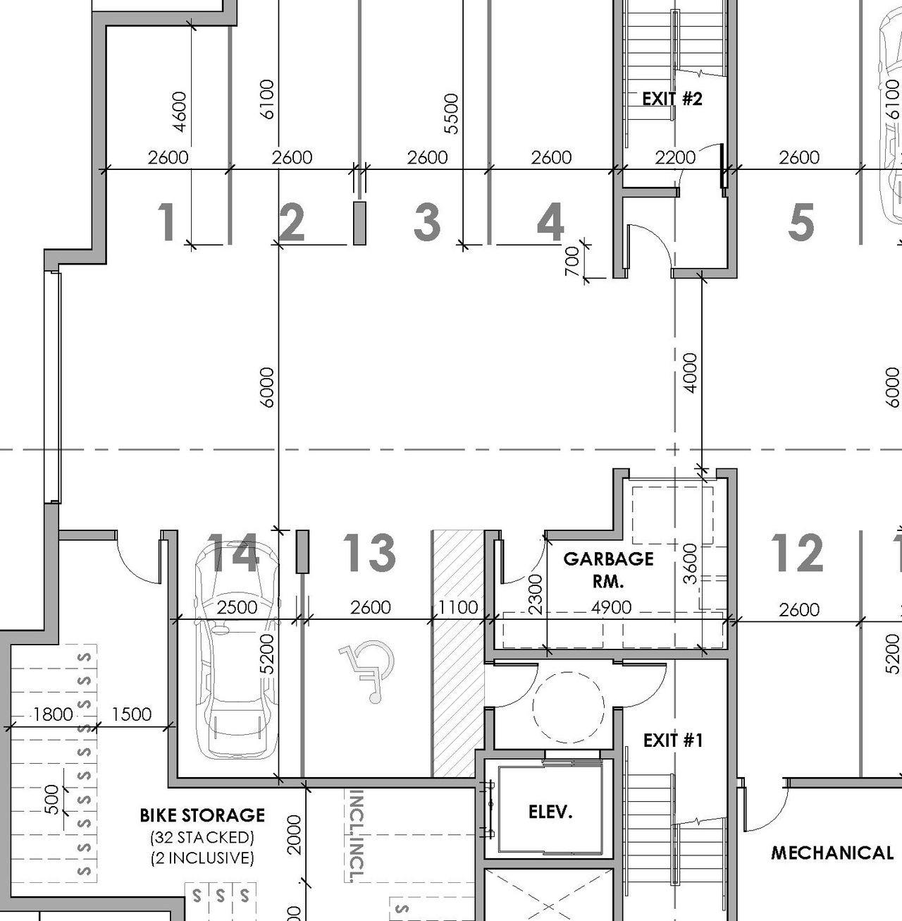
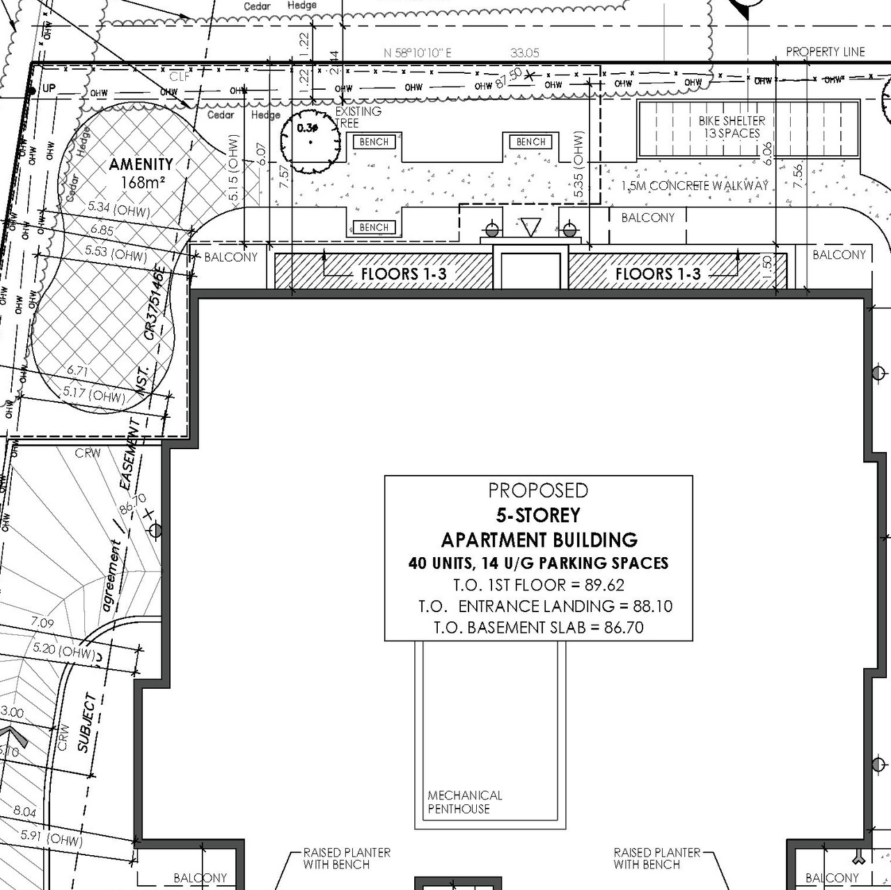
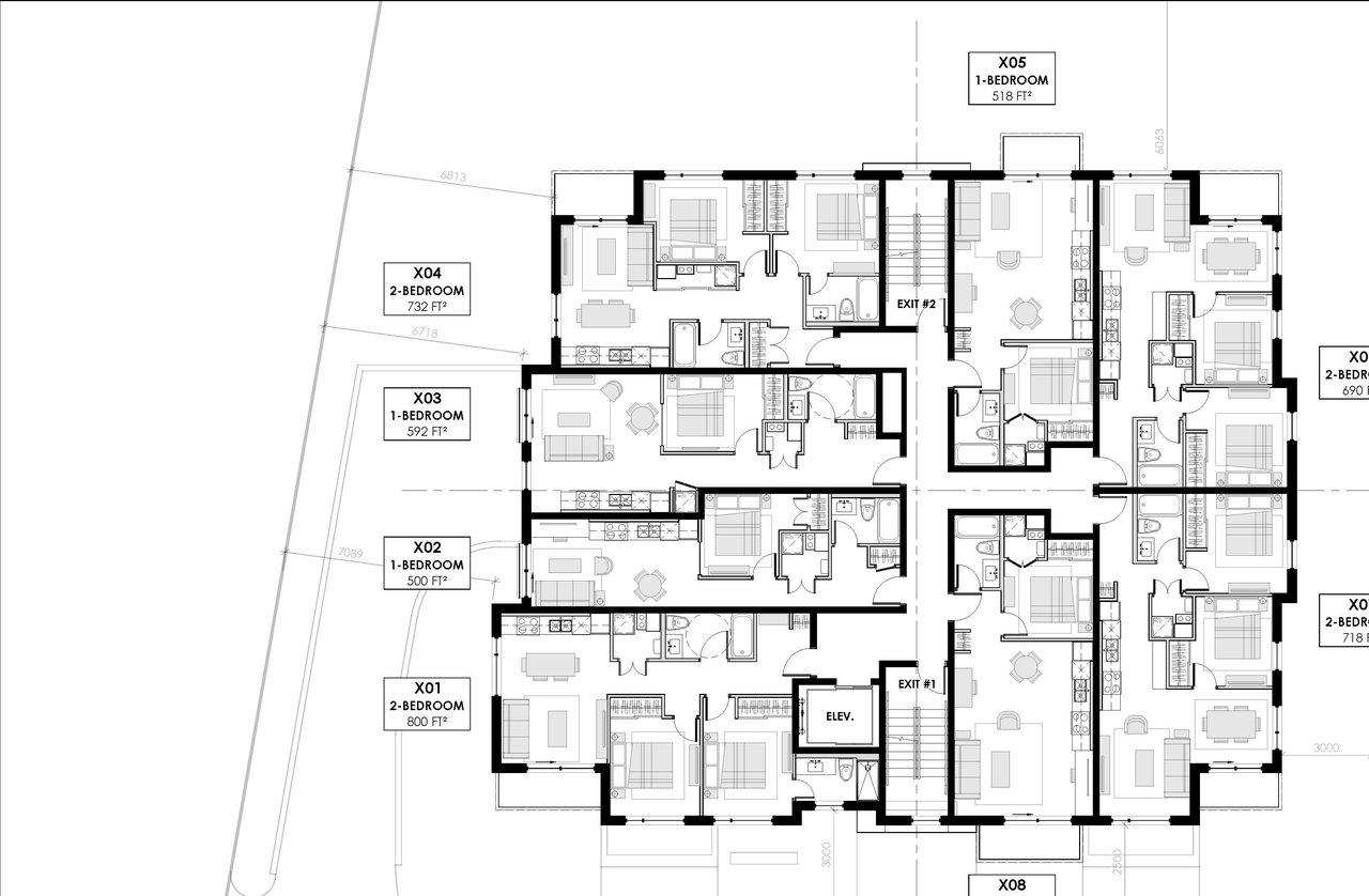
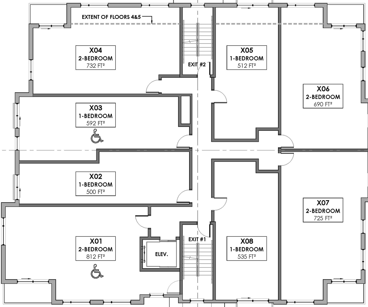
new 5-storey residential apartment building with 40 units and 14 u/g parking spaces
Status
Active (On Circulation; Initial Submission Review)
Building Scale (Max.)
Based on elevation drawings. Values may be approximate. See sources for exact figures.
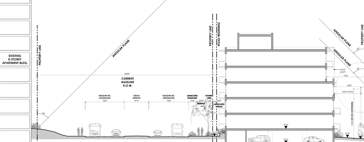
Mid-rise · 5 storeys
· 20.7 m
Data Quality Note
Height was partially estimated using visual scale. This may be approximate.
Renders#
Location#
Select a marker to view the address.
Site Plans, Elevations and Floor Plans#
Additional Information#
| Date Initiated | 2025-12-16 |
| Ward | Ward 8 - Laine Johnson |
| All Addresses | 1767 Baseline Rd. 1773 Baseline Rd. |





















