770-774 Bronson Ave./557 Cambridge St.#
Last updated: 2026-03-18 · ID: D07-12-25-0162
Summary#
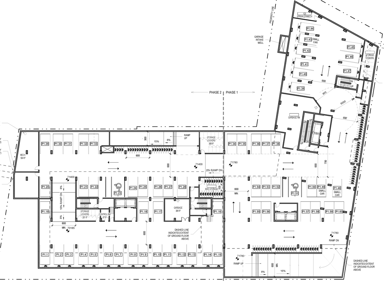
The proposed site plan revision modifies the interior of the previously approved high-rise mixed-use building but does not propose any changes to the exterior envelope (beyond additional parking below grade to meet the zoning requirements).
Status
Active (Initial Circulation Period Completed)
Building Scale (Max.)
Based on elevation drawings. Values may be approximate. See sources for exact figures.
High-rise · 22 storeys
· 74.4 m
Location#
Select a marker to view the address.
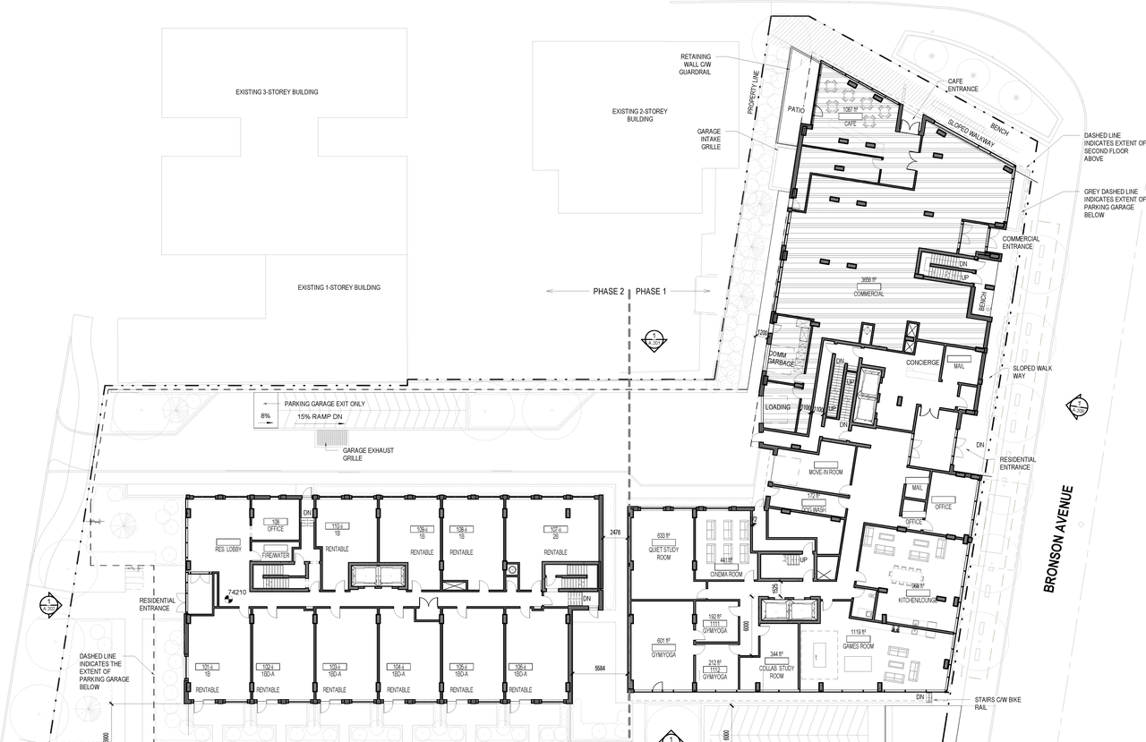
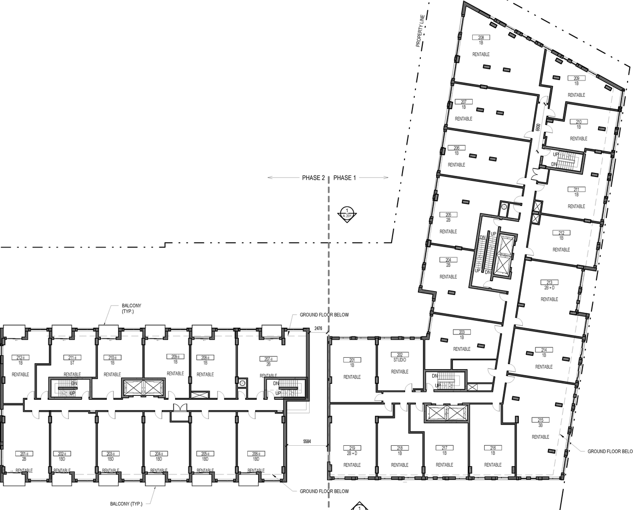
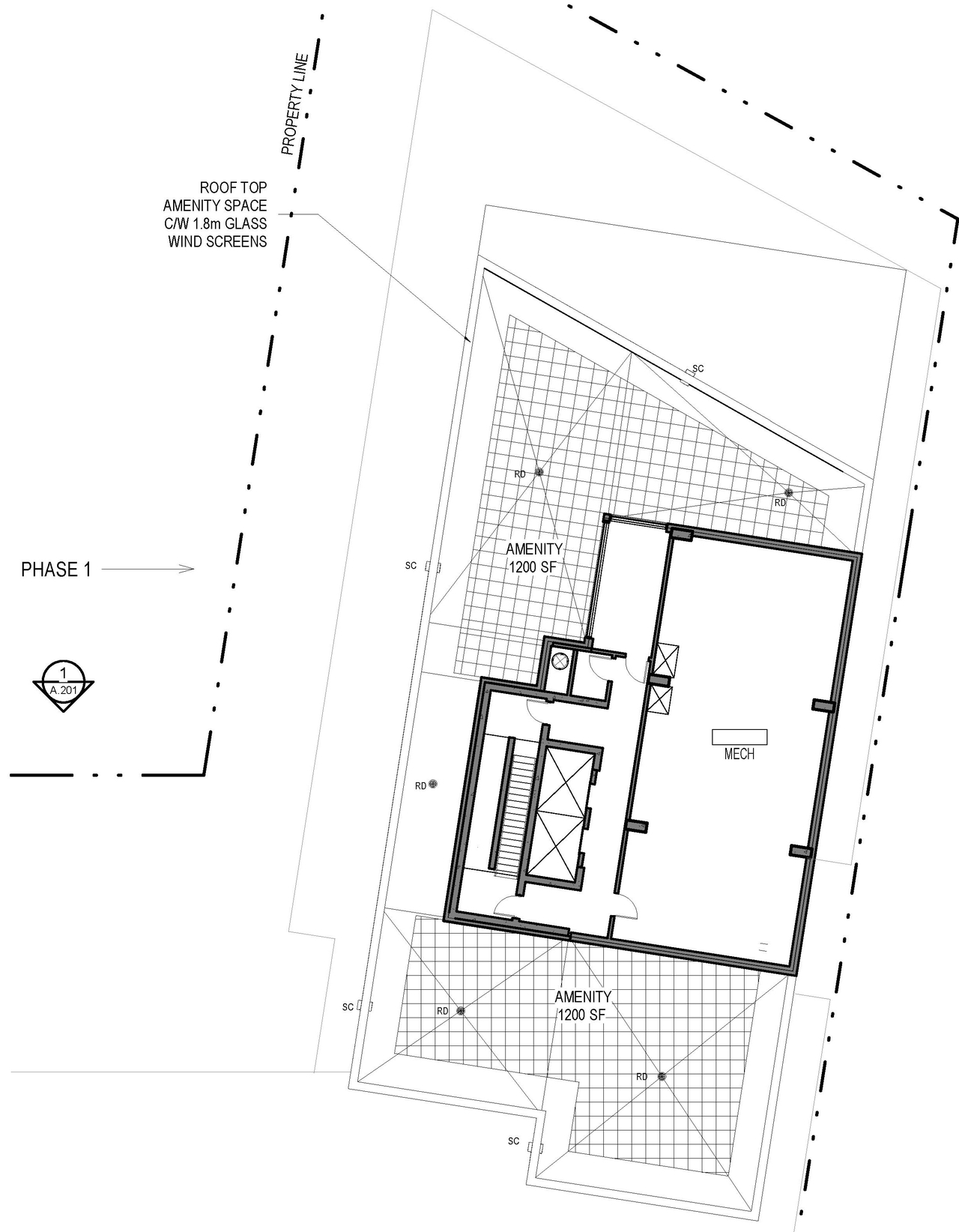
Site Plans, Elevations and Floor Plans#
Additional Information#
| Date Initiated | 2025-12-08 |
| Ward | Ward 17 - Shawn Menard |
| All Addresses | 770 Bronson Ave. 774 Bronson Ave. 557 Cambridge St. |










