1984 Baseline Rd.#
Last updated: 2026-03-19 · ID: D07-12-25-0159
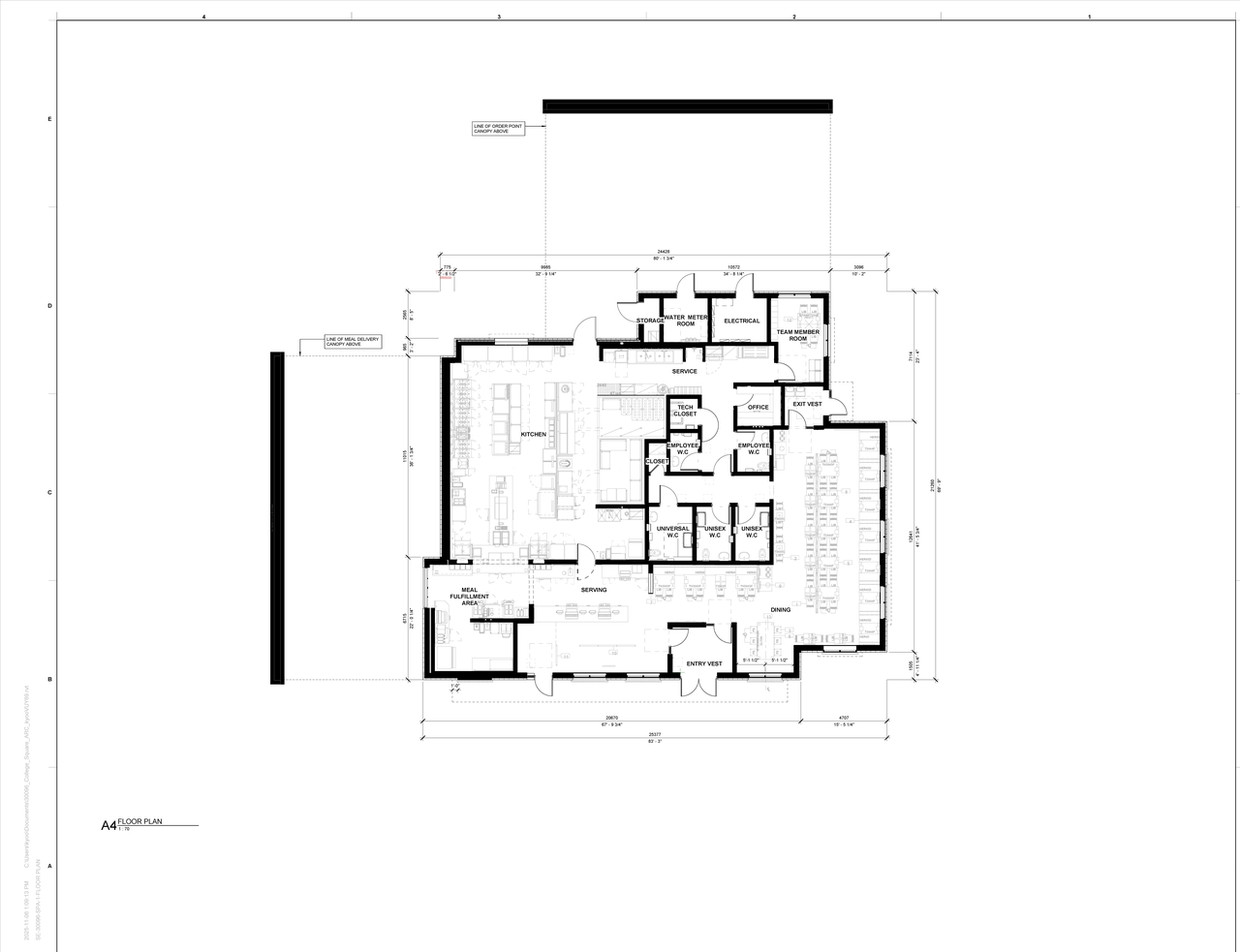
Summary#
A Site Plan Control application has been submitted to construct a single-storey fast food restaurant with a total gross floor area of 464.97 m². The development will include a double-lane drive-through and will replace the existing building at the northwest corner of the College Square shopping centre.
Status
Active (On Circulation; Initial Submission Review)
Building Scale (Max.)
Based on elevation drawings. Values may be approximate. See sources for exact figures.
Low-rise · 1 storey
Data Quality Note
Text was extracted using optical character recognition. This may introduce artifacts or misreads.
Renders#
Location#
Select a marker to view the address.
Site Plans, Elevations and Floor Plans#
Additional Information#
| Date Initiated | 2025-12-04 |
| Ward | Ward 8 - Laine Johnson |





