3400-3428 Woodroffe Ave.#
Last updated: 2026-01-30 · ID: D07-12-25-0158
Summary#
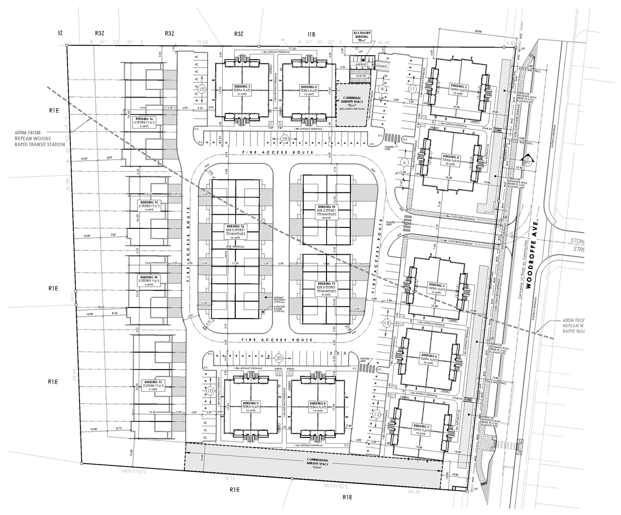
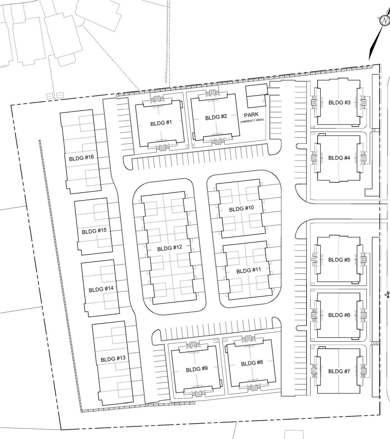
A Zoning By-law Amendment and Site Plan Control application to rezone the site to Residential Fourth Density, Subzone Z, with an exception (R4Z[XXXX]) to construct a planned unit development (PUD). The proposal consists of a private road and 16 buildings ranging from 2 to 3 storeys, for a total of 160 units.
Status
Active (On Circulation; Initial Submission Review)
Building Scale (Max.)
Based on elevation drawings. Values may be approximate. See sources for exact figures.
Low-rise · 2 storeys
· 5.5 m
Data Quality Note
Height was partially estimated using visual scale. This may be approximate.
Renders#
Location#
Select a marker to view the address.
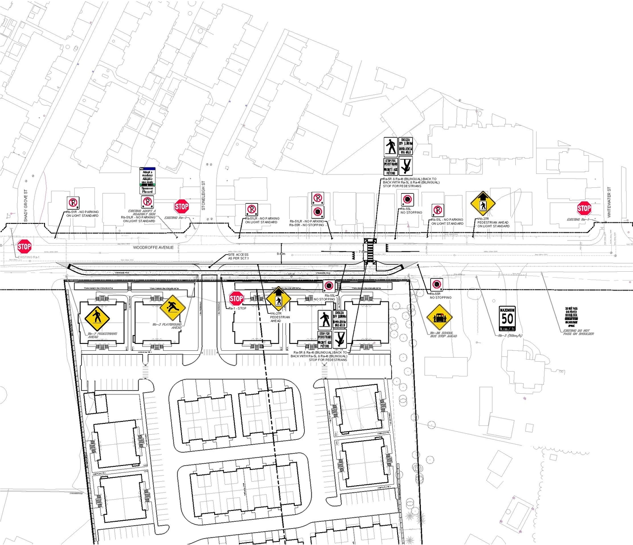
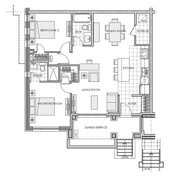
Site Plans, Elevations and Floor Plans#
Additional Information#
| Date Initiated | 2025-12-03 |
| Ward | Ward 24 - Wilson Lo |
| All Addresses | 3400 Woodroffe Ave. 3428 Woodroffe Ave. |





























