391 Hilversum#
Last updated: 2026-02-26 ยท ID: D07-12-25-0155
Summary#
39 Unit Residential Apartment
Status
Active (On Circulation; Initial Submission Review)
Renders#
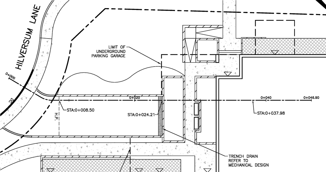
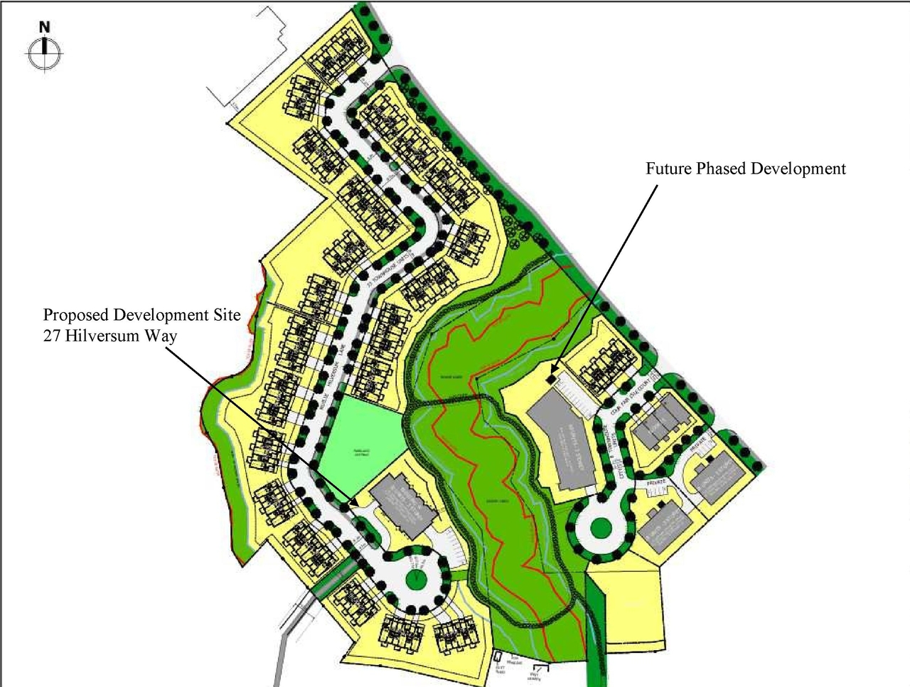
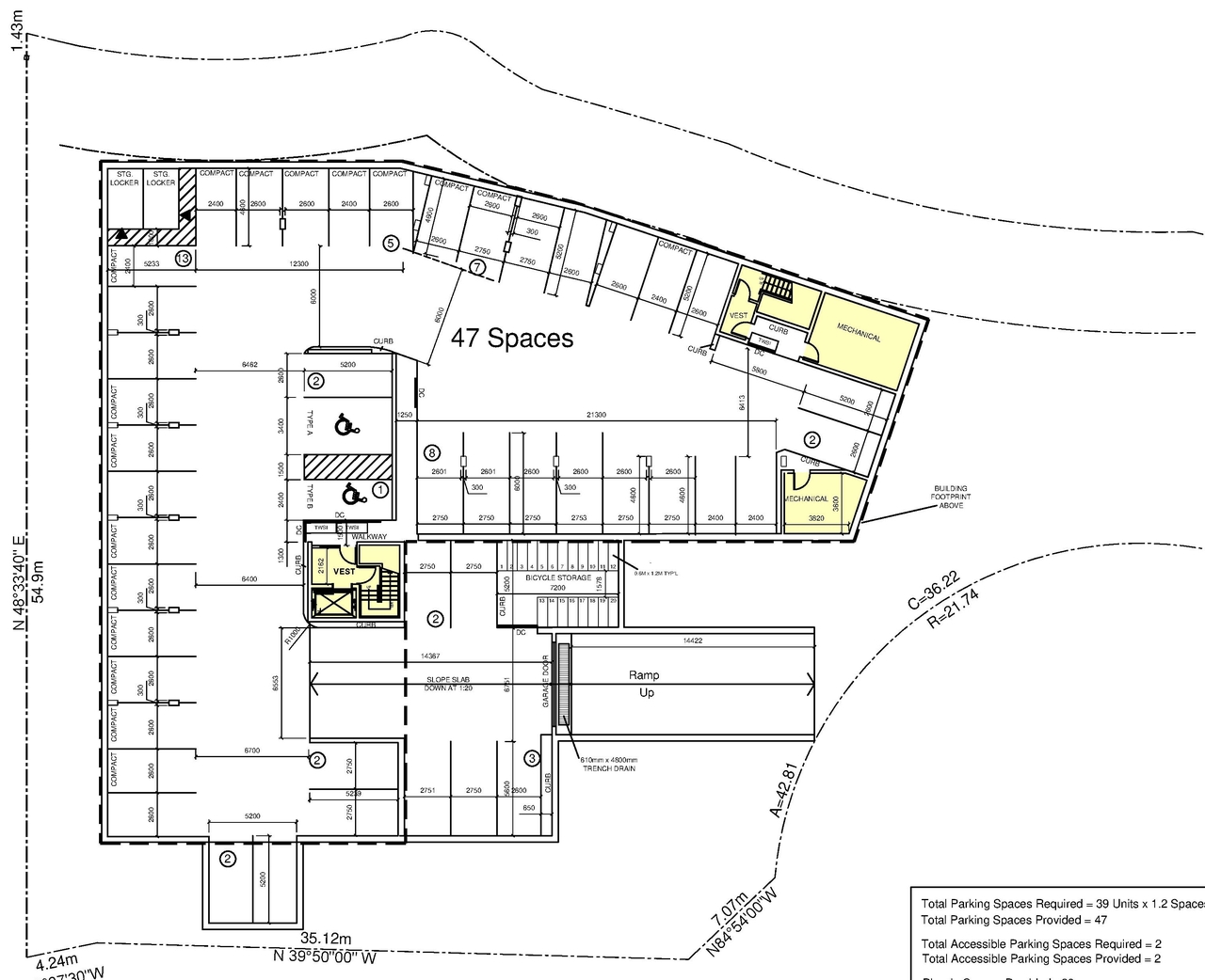
Site Plans, Elevations and Floor Plans#
Additional Information#
| Date Initiated | 2025-11-26 |
| Ward | Ward 5 - Clarke Kelly |

















