30 Cleary Ave.#
Last updated: 2026-02-28 · ID: D07-12-25-0149
Summary#
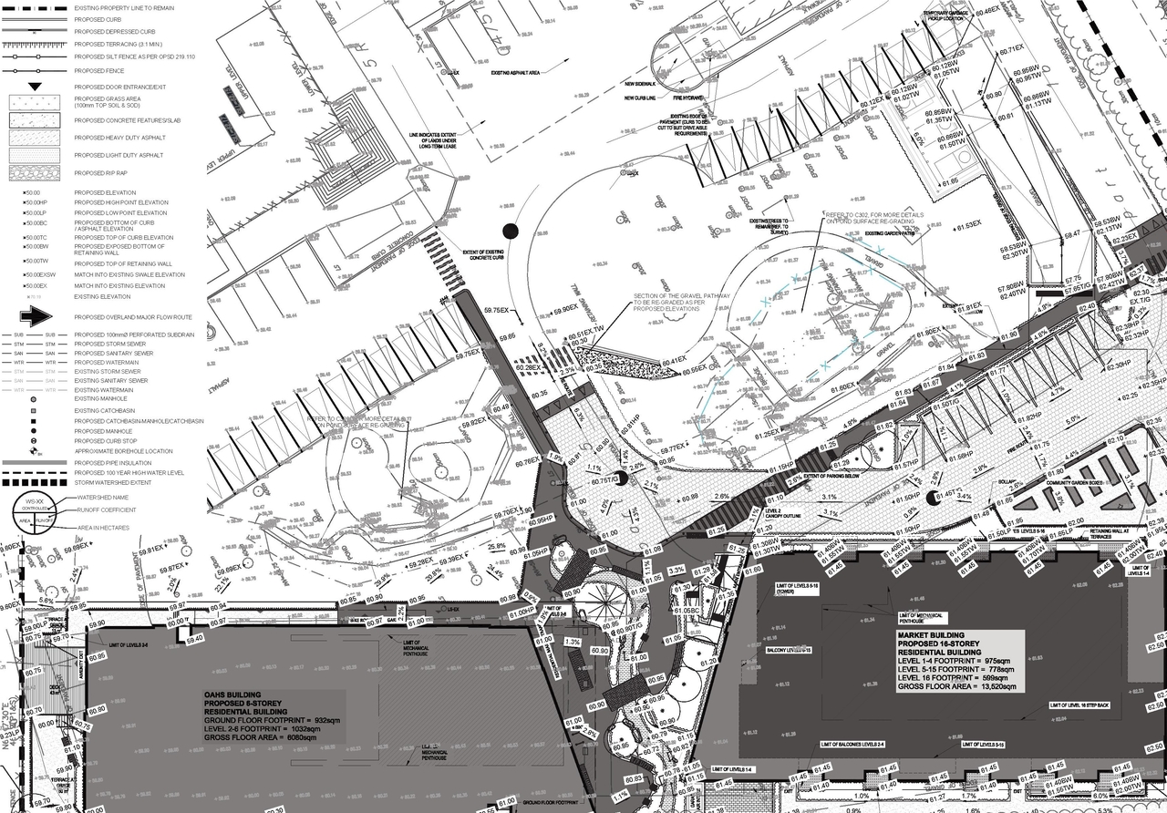
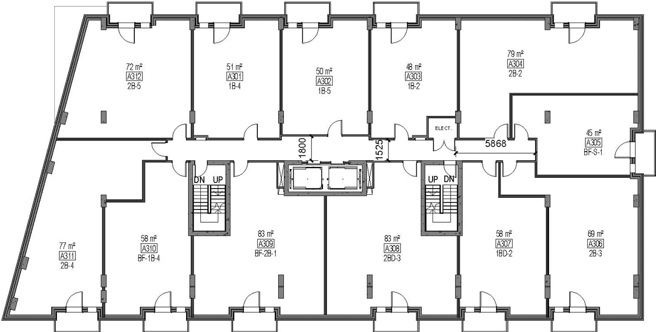
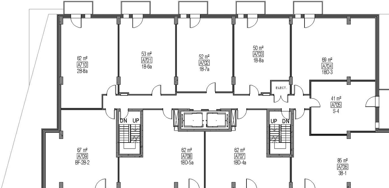
A Site Plan Control application to construct 6- and 16-storey residential apartment buildings with 229 units and 111 parking spaces.
Status
Active (On Circulation; Initial Submission Review)
Building Scale (Max.)
Based on elevation drawings. Values may be approximate. See sources for exact figures.
High-rise · 17 storeys
· 53.8 m
Renders#
Location#
Select a marker to view the address.
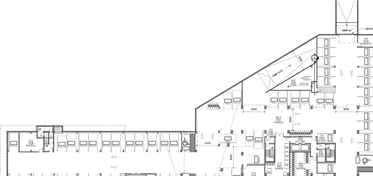
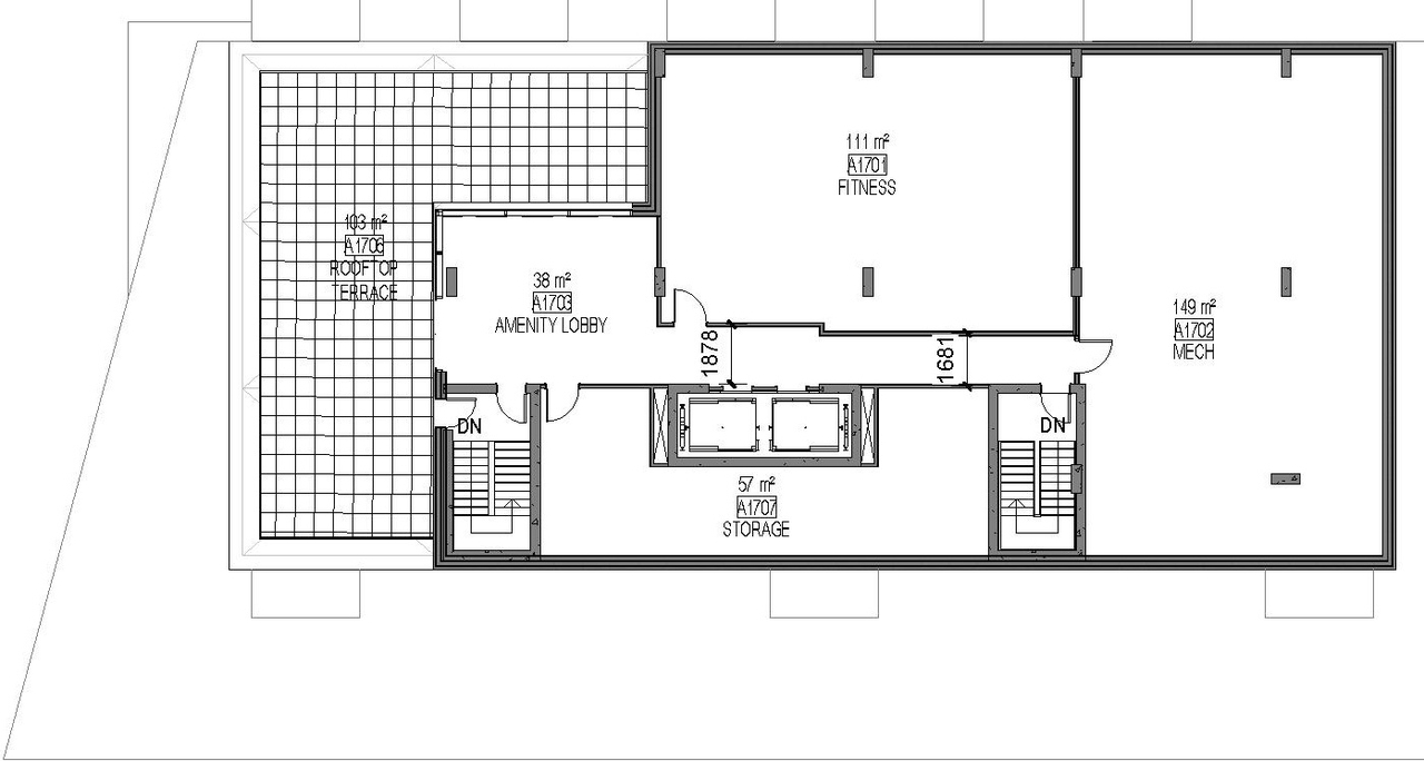
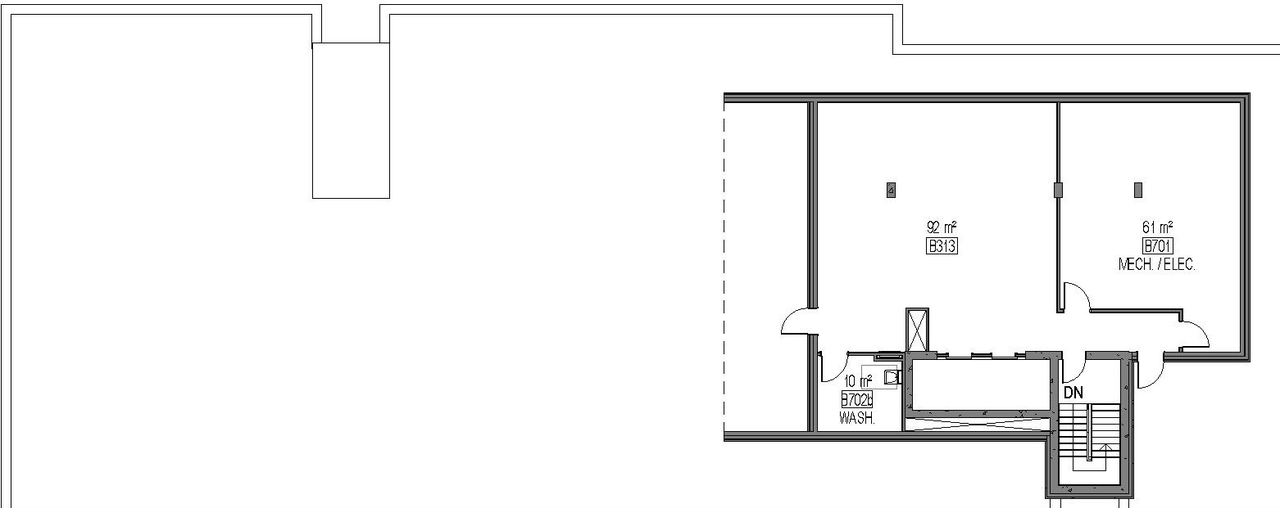
Site Plans, Elevations and Floor Plans#
Additional Information#
| Date Initiated | 2025-11-14 |
| Ward | Ward 7 - Theresa Kavanagh |



































