320 Bren-Maur Rd. W.#
Last updated: 2025-12-09 · ID: D07-12-25-0142
Summary#
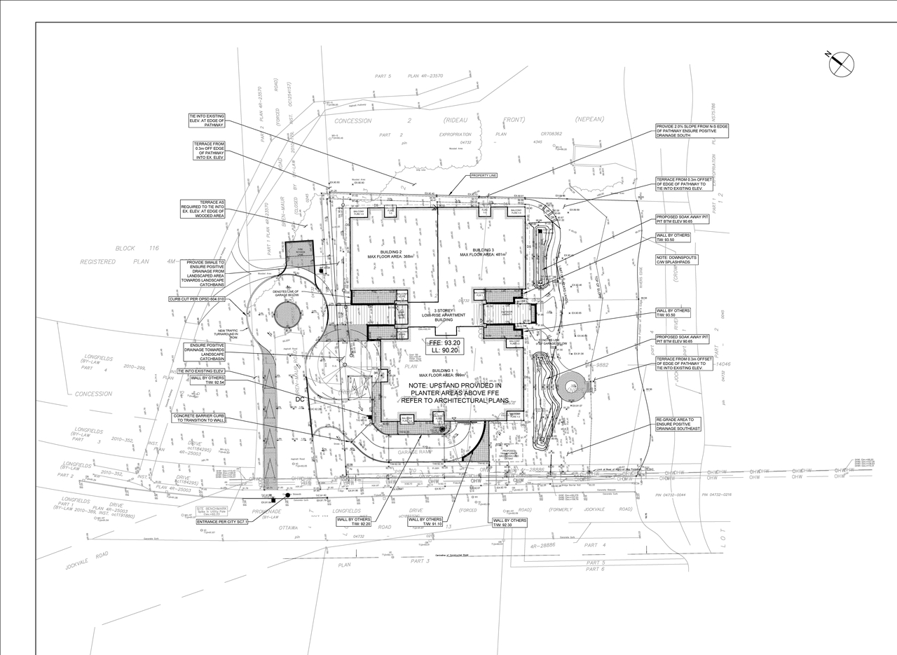
The City of Ottawa received a Zoning By-law Amendment and Site Plan Control application to construct a three-storey, low-rise apartment building with 35 dwelling units and a one-storey underground parking garage, and two surface parking spaces. Road modifications to Bren-Maur Road West are proposed.
Status
Active (On Circulation; Initial Submission Review)
Building Scale (Max.)
Based on elevation drawings. Values may be approximate. See sources for exact figures.
Low-rise · 3 storeys
· 8.52 m
Renders#
Location#
Select a marker to view the address.
Site Plans, Elevations and Floor Plans#
Additional Information#
| Date Initiated | 2025-11-03 |
| Ward | Ward 24 - Wilson Lo |













