5431 Fernbank Rd.#
Last updated: 2026-03-13 · ID: D07-12-25-0141
Summary#
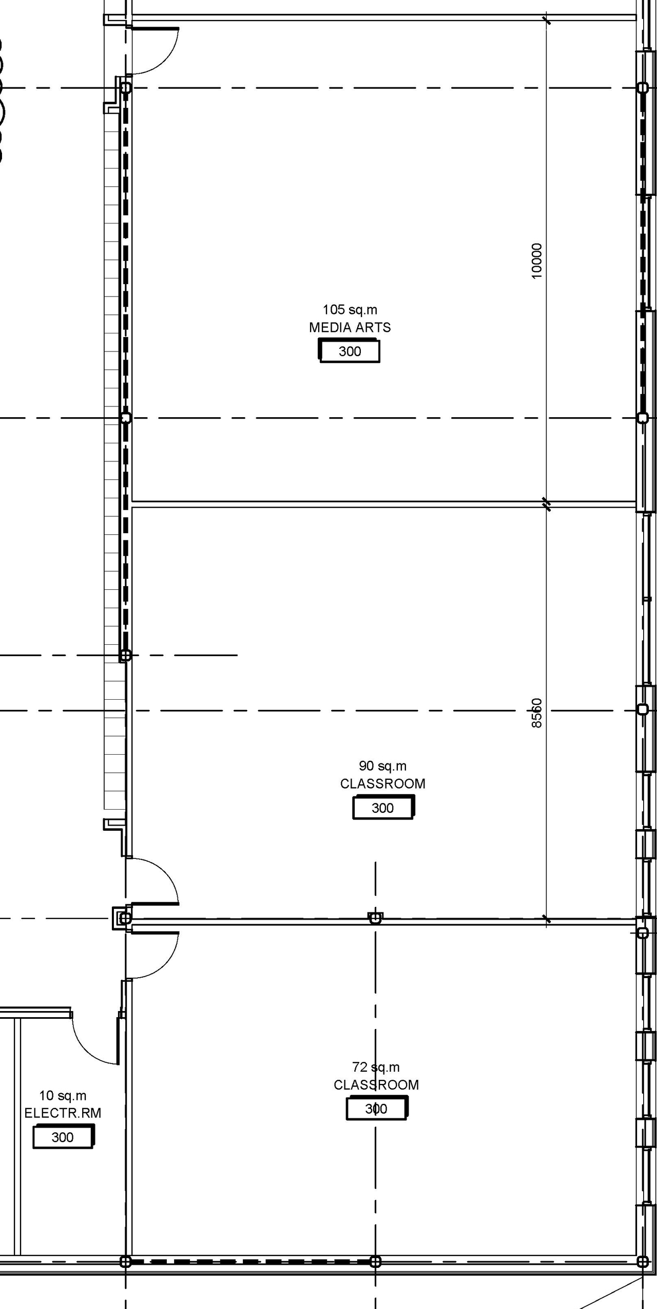
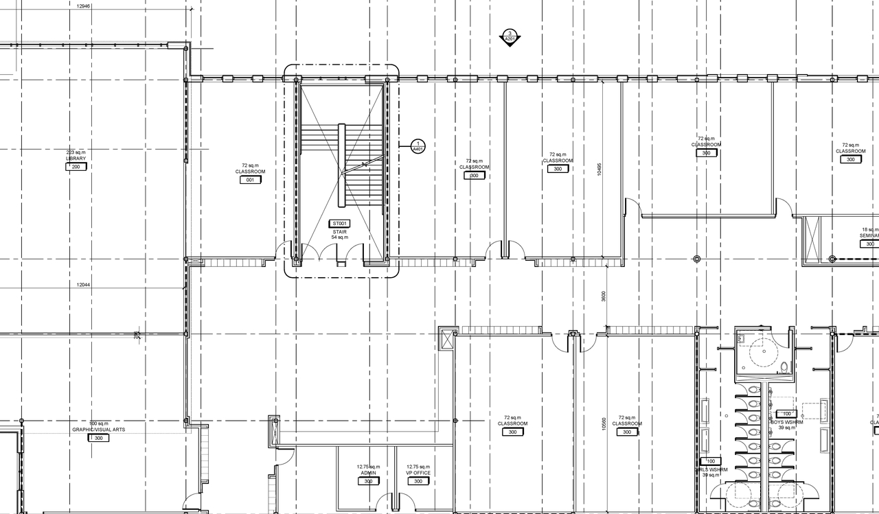
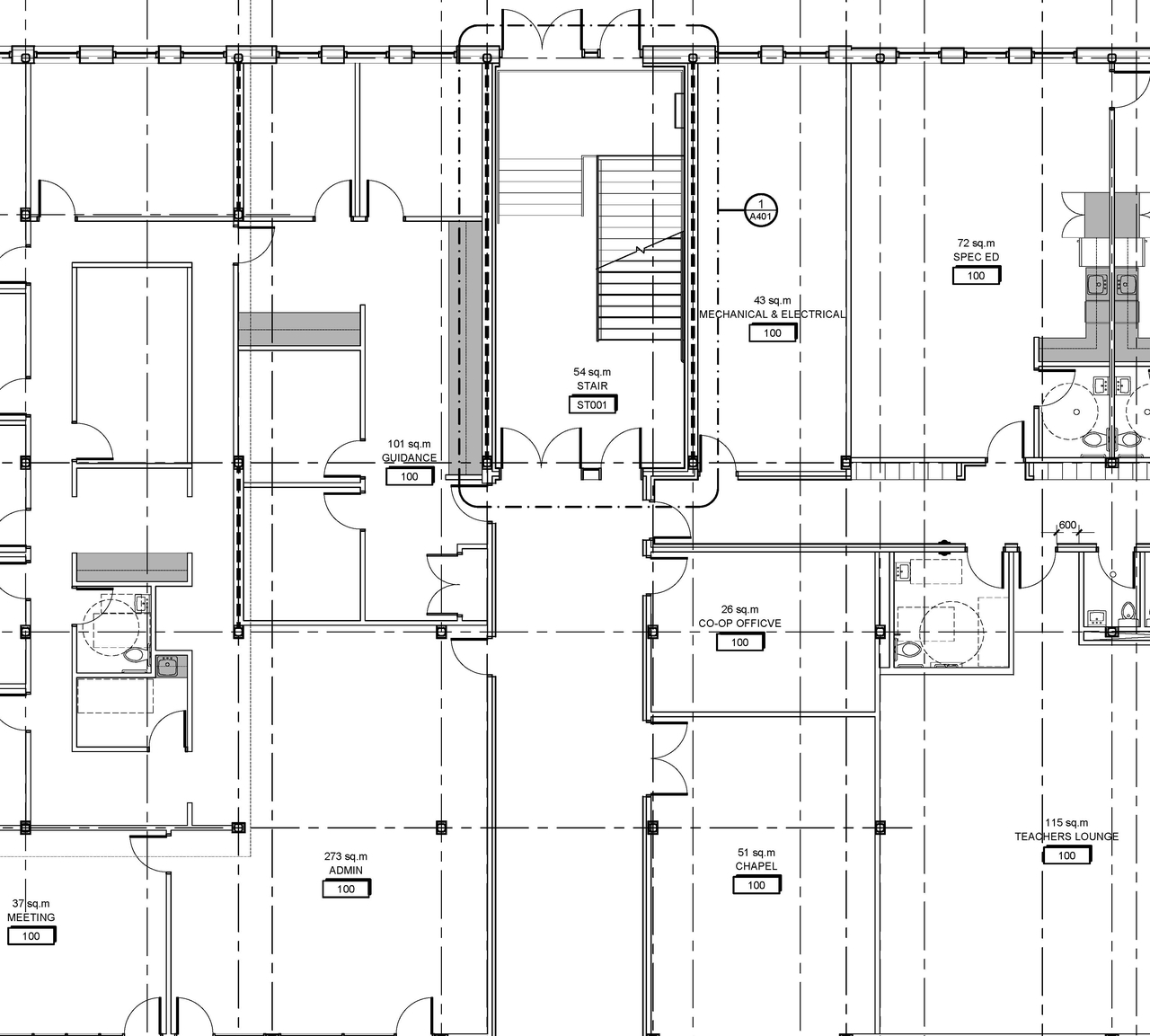
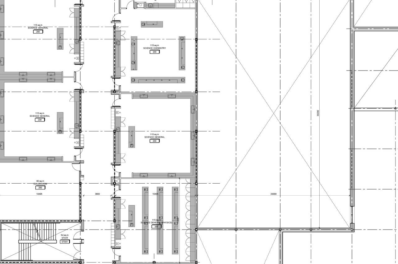
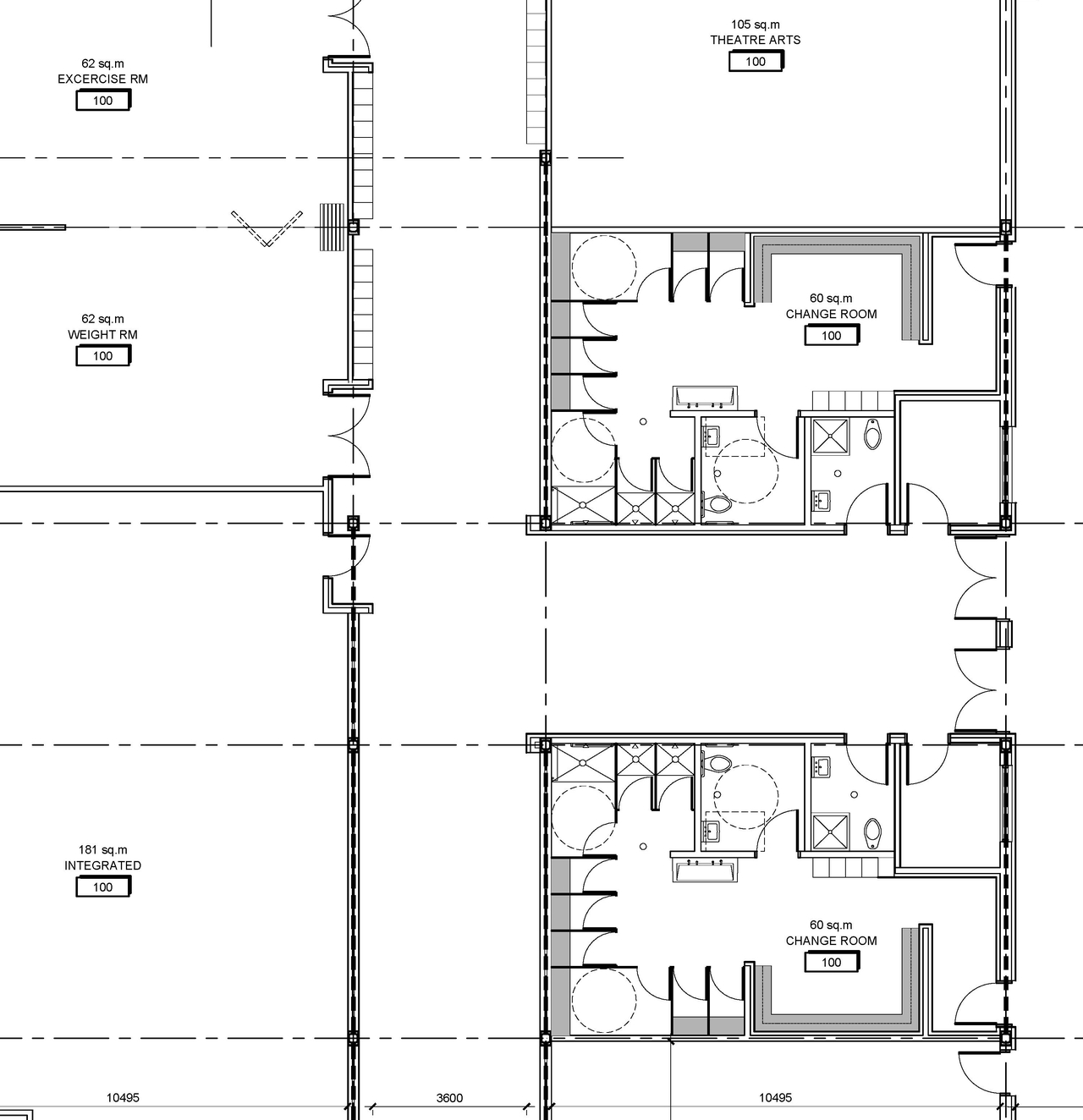
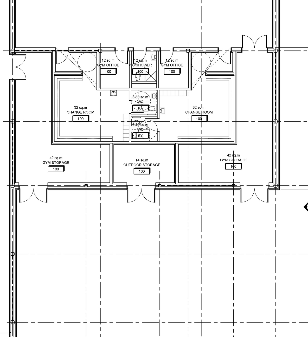
A Site Plan Control application to construct a three-storey secondary school with approximately 14,771 square metres of gross floor area. The proposed development includes a parking lot, bus loop, recreational area including two sports fields, a running track, and outdoor classrooms.
Status
Inactive (Notice of Decision Sent)
Building Scale (Max.)
Based on elevation drawings. Values may be approximate. See sources for exact figures.
Low-rise · 3 storeys
· 14 m
Location#
Select a marker to view the address.
Site Plans, Elevations and Floor Plans#
Additional Information#
| Date Initiated | 2025-10-29 |
| Ward | Ward 6 - Glen Gower |






