2025 Othello Ave.#
Last updated: 2026-02-20 · ID: D07-12-25-0125
Summary#
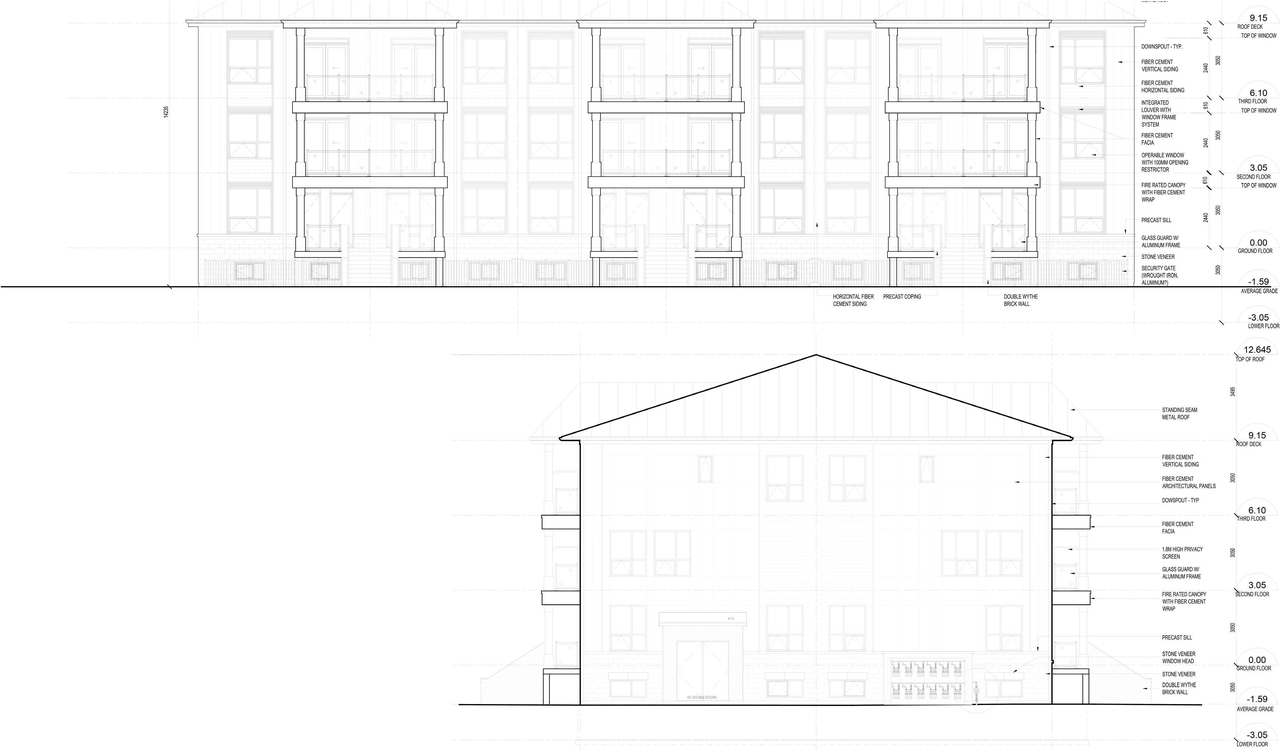
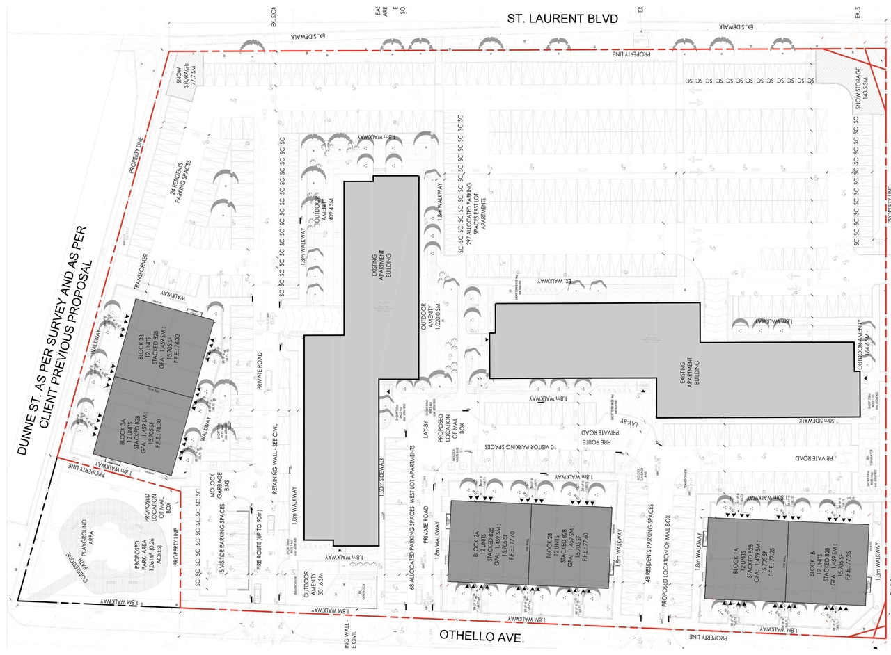
3 stacked townhouse buildings with 24 dwellings per building, for a total unit count of 72. Existing high-rise buildings to remain on site.
Status
Active (On Circulation; Initial Submission Review)
Building Scale (Max.)
Based on elevation drawings. Values may be approximate. See sources for exact figures.
Low-rise · 3 storeys
· 12.64 m
Location#
Select a marker to view the address.
Site Plans, Elevations and Floor Plans#
Additional Information#
| Date Initiated | 2025-09-11 |
| Ward | Ward 18 - Marty Carr |











