77 Metcalfe St.#
Last updated: 2025-10-17 · ID: D07-12-25-0112
Summary#
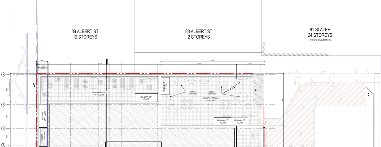
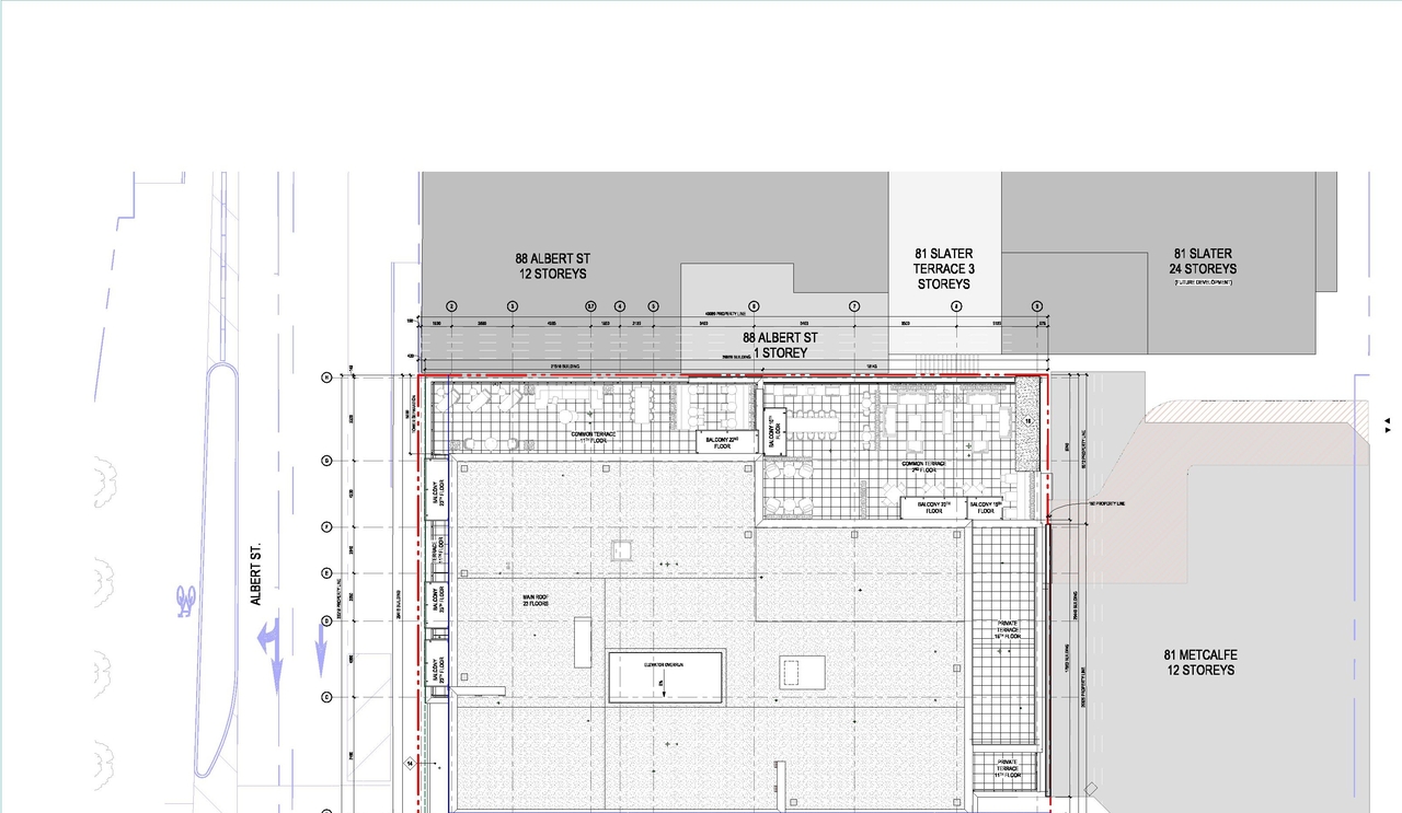
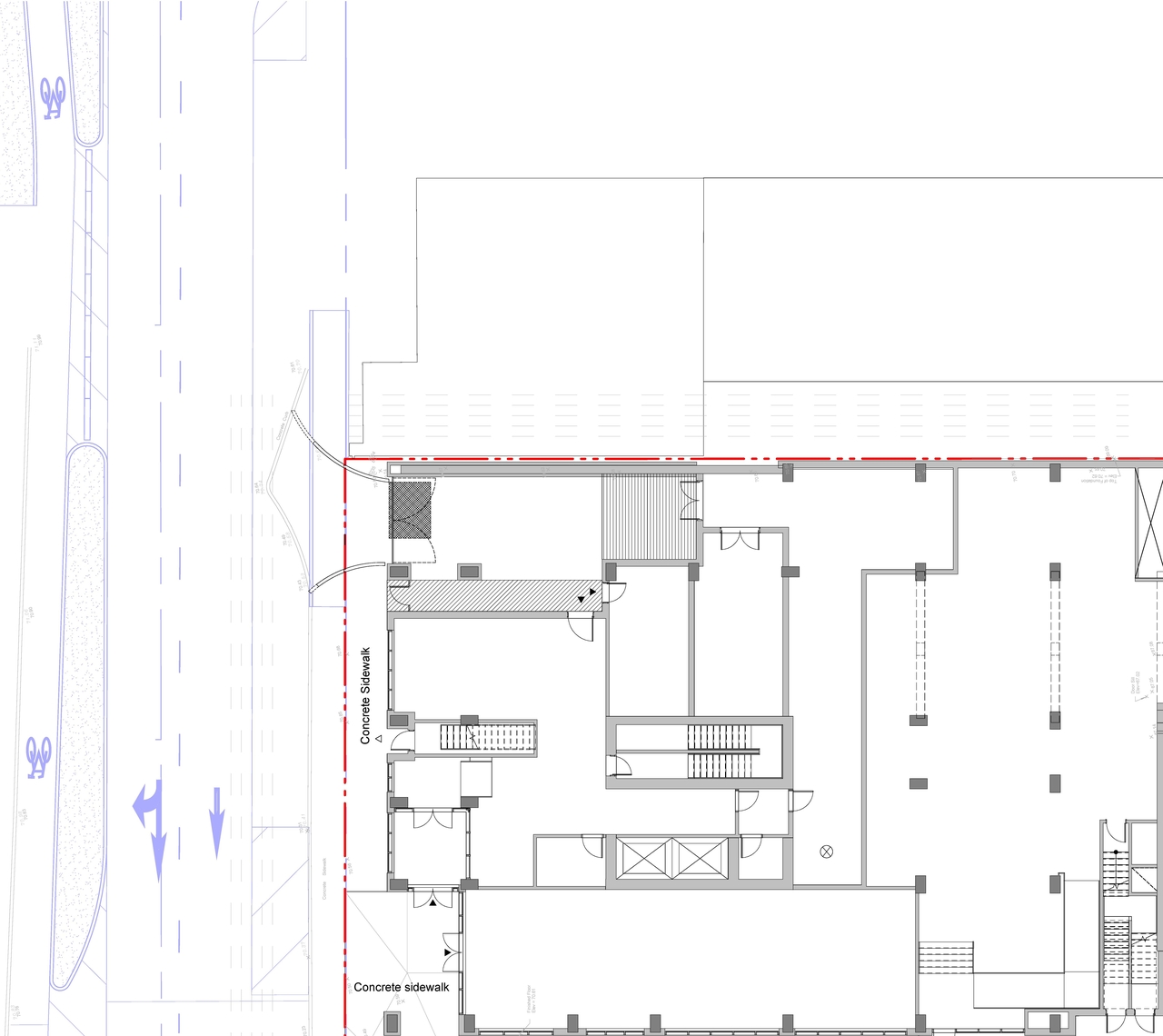
A Site Plan Control application to permit the redevelopment of the subject property for a 23-storey, mixd-use building, consisting of 241 dwelling units, 469 sqm. of ground floor commercial space, 0 residential parking spaces, 15 visitor parking spaces and 243 bicycle parking spaces
Status
Active (On Circulation; Initial Submission Review)
Building Scale (Max.)
Based on elevation drawings. Values may be approximate. See sources for exact figures.
High-rise · 23 storeys
Data Quality Note
Text was extracted using optical character recognition. This may introduce artifacts or misreads.
· 69.33 m
Renders#
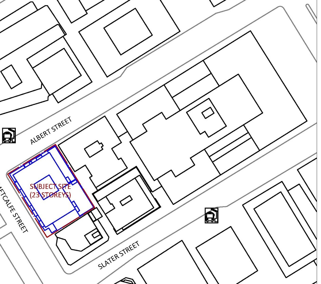
Location#
Select a marker to view the address.
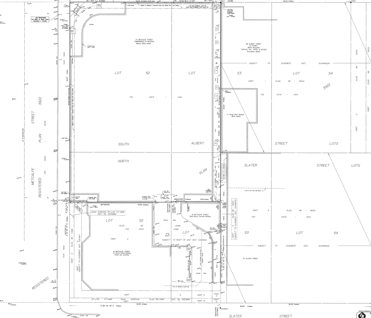
Site Plans, Elevations and Floor Plans#
Additional Information#
| Date Initiated | 2025-08-07 |
| Ward | Ward 14 - Ariel Troster |







































