Ottawa Development Projects

4405-4409 Innes Rd.#

Last updated: 2026-01-27 · ID: D07-12-25-0099

Summary#

A Site Plan Control application to replace the existing buildings on site with a 2-storey commercial medical facility with a total gross floor area of 1115 square metres.

Status
File Pending (Application File Pending)

Building Scale (Max.) Based on elevation drawings. Values may be approximate. See sources for exact figures.
Low-rise · 2 storeys Data Quality Note Text was extracted using optical character recognition. This may introduce artifacts or misreads. · 8.1 m Data Quality Note Height was partially estimated using visual scale. This may be approximate. Data Quality Note Text was extracted using optical character recognition. This may introduce artifacts or misreads.

Renders#

Location#

Select a marker to view the address.

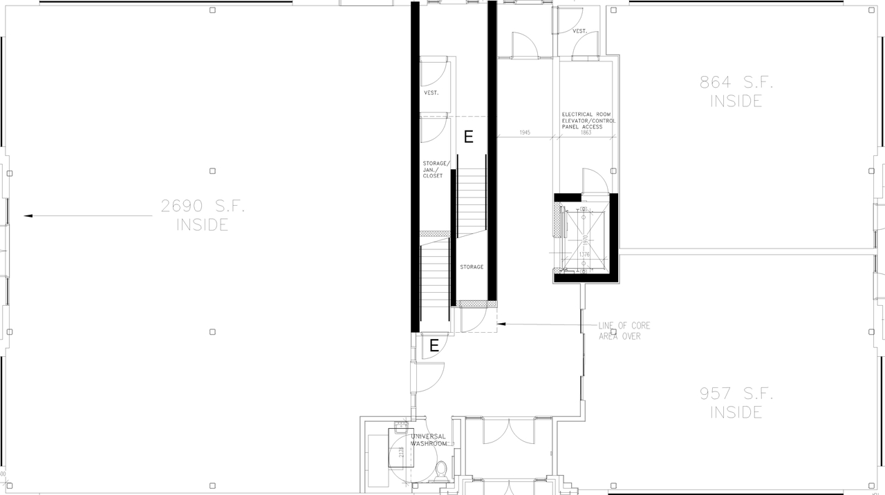
Site Plans, Elevations and Floor Plans#

Additional Information#

Date Initiated2025-07-22
WardWard 1 - Matthew Luloff
All Addresses4405 Innes Rd.
4409 Innes Rd.

Documents#

TypeDocument
Application Summary2025-10-21 - Application Summary - D07-12-25-0099
Architectural Plans2025-10-15 - Site Plan - D07-12-25-0099
Architectural Plans2025-09-22 - North & South Elevations - D07-12-25-0099
Architectural Plans2025-07-22 - Site Plan Parking Lot, Access Services - D07-12-25-0099
Architectural Plans2025-07-22 - Site Plan - D07-12-25-0099
Architectural Plans2025-07-22 - Roof Plan - D07-12-25-0099
Architectural Plans2025-07-22 - Preliminary Construction Management Plan - D07-12-25-0099
Architectural Plans2025-07-22 - Notes and Details - D07-12-25-0099
Architectural Plans2025-07-22 - Elevations - D07-12-25-0099
Architectural Plans2025-12-11 - Proposed Site Plan - D07-12-25-0099
Architectural Plans2025-12-11 - North South Elevations - D07-12-25-0099
Architectural Plans2025-12-11 - East West Elevations - D07-12-25-0099
Architectural Plans2025-12-18 - Site Plan - D07-12-25-0099
Architectural Plans2025-12-18 - Notes and Details - D07-12-25-0099
Architectural Plans2026-01-06 - Site Plan - D07-12-25-0099
Architectural Plans2026-01-06 - Notes and Details - D07-12-25-0099
Architectural Plans2026-01-26 - APPROVED Site Plan Approval Report - D07-12-25-0099
Drainage Plan2025-07-22 - Drainage Plan - D07-12-25-0099
Drainage Plan2025-12-18 - Drainage Plan - D07-12-25-0099
Drainage Plan2026-01-06 - Drainage Plan - D07-12-25-0099
Environmental2025-08-13 - Phase I Environmental Site Assessment - D07-12-25-0099
Environmental2025-07-22 - Phase I Environmental Site Assessment - D07-12-25-0099
Erosion And Sediment Control Plan2025-07-22 - Erosion & Sediment Control Plan West - D07-12-25-0099
Erosion And Sediment Control Plan2025-07-22 - Erosion & Sediment Control Plan East - D07-12-25-0099
Erosion And Sediment Control Plan2025-12-18 - Erosion and Sediment Control Plan West & East - D07-12-25-0099
Erosion And Sediment Control Plan2026-01-06 - Erosion & Sediment Control Plans - D07-12-25-0099
Existing Conditions2025-07-22 - Existing Conditions West - D07-12-25-0099
Existing Conditions2025-07-22 - Existing Conditions East - D07-12-25-0099
Existing Conditions2025-12-18 - Existing Conditions West & East - D07-12-25-0099
Existing Conditions2026-01-06 - Existing Conditions - D07-12-25-0099
Floor Plan2025-07-22 - South Elevation and Floor Plan - D07-12-25-0099
Floor Plan2025-07-22 - Foundation Floor Plan - D07-12-25-0099
Geotechnical Report2025-07-22 - Grading Plan West - D07-12-25-0099
Geotechnical Report2025-07-22 - Grading Plan East - D07-12-25-0099
Geotechnical Report2025-07-22 - Geotechnical Investigation Update - D07-12-25-0099
Geotechnical Report2025-12-18 - Grading Plans West & East - D07-12-25-0099
Geotechnical Report2026-01-06 - Grading Plans - D07-12-25-0099
Landscape Plan2025-07-22 - Landscape Plan - D07-12-25-0099
Landscape Plan2026-01-06 - Landscape Plan - D07-12-25-0099
Planning2025-07-22 - Zoning Confirmation Report - D07-12-25-0099
Rendering2025-07-22 - Street View Rendering - D07-12-25-0099
Site Servicing2025-07-22 - Site Servicing Plan West - D07-12-25-0099
Site Servicing2025-07-22 - Site Servicing Plan East - D07-12-25-0099
Site Servicing2025-07-22 - Site Servicing & SWM Report - D07-12-25-0099
Site Servicing2025-12-18 - Site Servicing Plans West & East - D07-12-25-0099
Site Servicing2025-12-18 - Site Servicing & SWM Report - D07-12-25-0099
Site Servicing2026-01-06 - Site Servicing Plans - D07-12-25-0099
Site Servicing2026-01-06 - Site Servicing & SWM Report - D07-12-25-0099
Surveying2025-07-22 - Survey - D07-12-25-0099
Transportation Analysis2025-12-11 - Transportation Impact Assessment - D07-12-25-0099
Tree Information and Conservation2025-07-22 - Tree Conservation Report - D07-12-25-0099
2025-09-22 - Phase One ESA_Update - D07-12-25-0099
2025-09-22 - Geometry Redlines - D07-12-25-0099
2025-07-22 - Details - D07-12-25-0099
2025-12-18 - Details - D07-12-25-0099
2026-01-06 - Details - D07-12-25-0099