Ottawa Development Projects

5923 Ottawa St.#

Last updated: 2026-02-09 ยท ID: D07-12-25-0078

Summary#

A Site Plan Control application to construct two light industrial buildings for the purpose of a distillery and brewery warehouse with accessory retail, office, and bar/pub space. The distillery and brewery will be contained in Building #2 (gross floor area of 1,042 m2) while the other uses will be in Building #1 (gross floor area 738 m2).

Status
Active (Circulation Package Prepared)

Location#

Select a marker to view the address.

Site Plans, Elevations and Floor Plans#

Additional Information#

Date Initiated2025-06-09
WardWard 21 - David Brown

Documents#

TypeDocument
Architectural Plans2026-02-02 - Site Servicing Plan - D07-12-25-0078
Architectural Plans2026-02-02 - Site Plan - D07-12-25-0078
Architectural Plans2026-02-02 - Preliminary Contruction Management Plan - D07-12-25-0078
Architectural Plans2026-02-02 - Lot Grading & Drainage Plan - D07-12-25-0078
Architectural Plans2026-02-02 - Erosion & Sediment Control Plan - D07-12-25-0078
Architectural Plans2025-11-27 - Site Plan - D07-12-25-0078
Architectural Plans2025-11-27 - Lot Grading & Drainage Plan - D07-12-25-0078
Architectural Plans2025-11-27 - Landscape Plan - D07-12-25-0078
Architectural Plans2025-11-27 - Erosion & Sediment Control Plan - D07-12-25-0078
Architectural Plans2025-09-19 - Site Servicing Plan - D07-12-25-0078
Architectural Plans2025-09-19 - Site Plan - D07-12-25-0078
Architectural Plans2025-09-19 - Preliminary Construction Management Plan - D07-12-25-0078
Architectural Plans2025-09-19 - Lot Grading & Drainage Plan - D07-12-25-0078
Architectural Plans2025-09-19 - Landscape Plan and Details - D07-12-25-0078
Architectural Plans2025-09-19 - Erosion & Sediment Control Plan - D07-12-25-0078
Architectural Plans2025-09-19 - Building Elevations (Building 2) - D07-12-25-0078
Architectural Plans2025-09-19 - Building Elevations (Building 1) - D07-12-25-0078
Architectural Plans2025-06-09 - Site Servicing Plan - D07-12-25-0078
Architectural Plans2025-06-09 - Site Plan - D07-12-25-0078
Architectural Plans2025-06-09 - Landscape Plan - D07-12-25-0078
Architectural Plans2025-06-09 - Erosion and Sediment Control Plan - D07-12-25-0078
Architectural Plans2025-06-09 - Building Elevations (Building 2) - D07-12-25-0078
Architectural Plans2025-06-09 - Building Elevations (Building 1) - D07-12-25-0078
Architectural Plans2025-06-09 - Lot Grading and Drainage Plan - D07-12-25-0078
Architectural Plans-2025-11-27 - Site Servicing Plan - D07-12-25-0078
Design Brief2025-06-09 - Design Brief - D07-12-25-0078
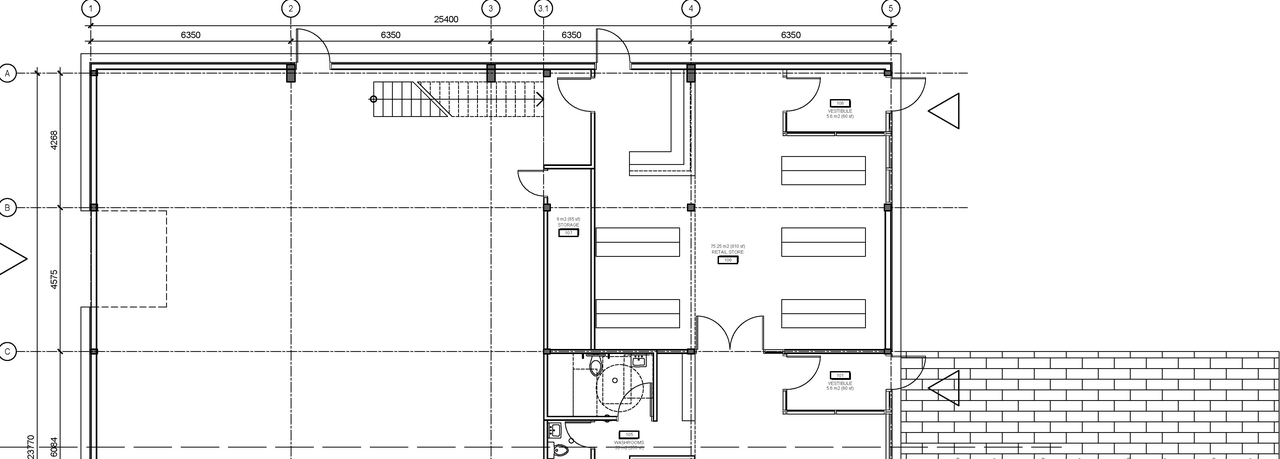
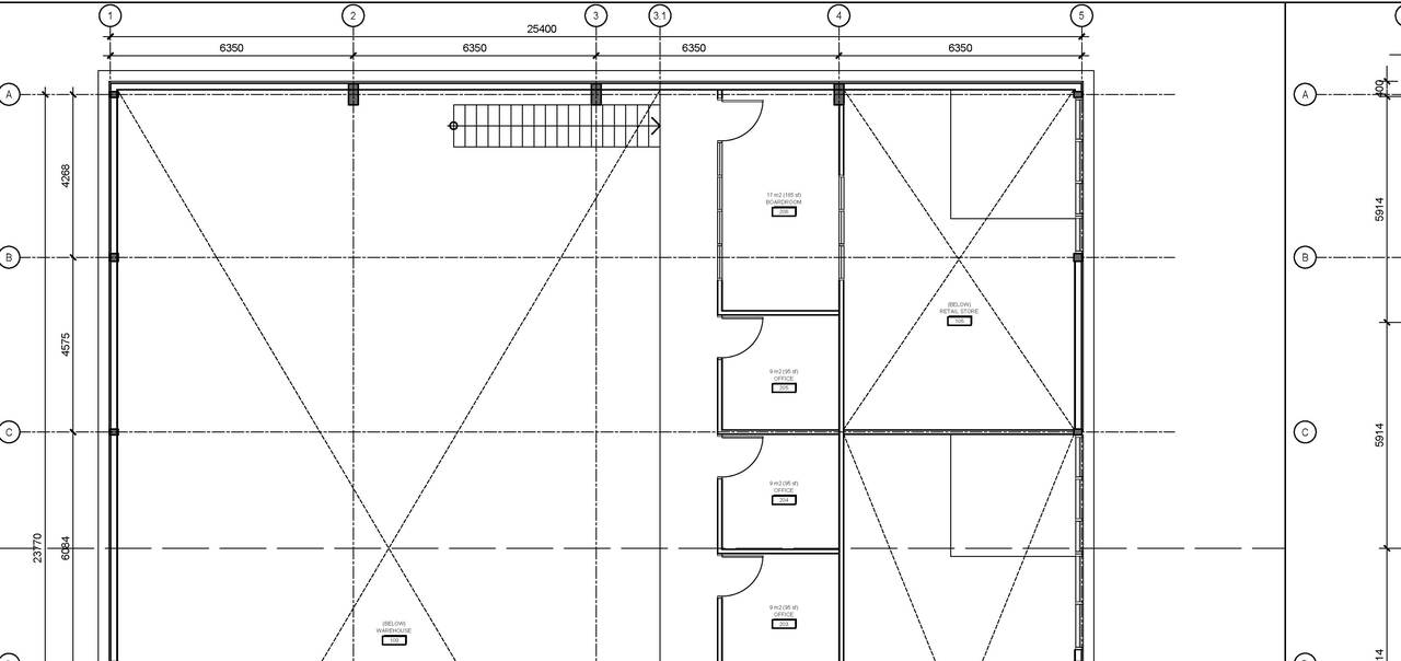
Floor Plan2025-09-19 - Floor Plans (Building 2) - D07-12-25-0078
Floor Plan2025-09-19 - Floor Plans (Building 1) - D07-12-25-0078
Floor Plan2025-06-09 - Floor Plans (Building 2) - D07-12-25-0078
Floor Plan2025-06-09 - Floor Plans (Building 1) - D07-12-25-0078
Geotechnical Report2025-09-19 - Groundwater Monitoring Program Memorandum - D07-12-25-0078
Stormwater Management2026-02-02 - Servicing & Stormwater Management Report - D07-12-25-0078
Stormwater Management2025-11-27 - Servicing & Stormwater Management Report - D07-12-25-0078
Stormwater Management2025-09-19 - Servicing & Stormwater Management Report - D07-12-25-0078
Stormwater Management2025-06-09 - Servicing and Stormwater Management Report - D07-12-25-0078
Surveying2025-06-09 - Plan of Survey - D07-12-25-0078
Tree Information and Conservation2025-09-19 - Revised Tree Conservation Report - D07-12-25-0078
Tree Information and Conservation2025-06-09 - Tree Conservation Report - D07-12-25-0078
2026-02-09 - Application Summary - D07-12-25-0078
2026-02-02 - Water Storage Estimate - D07-12-25-0078
2025-11-27 - Hydrogeological Report & Terrain Analysis - D07-12-25-0078
2025-09-19 - Zoning Confirmation Report - D07-12-25-0078
2025-09-19 - Revised Richmond Ditch Hydrologic and Hydraulic Analysis Memorandum - D07-12-25-0078
2025-09-19 - Revised Rail Safety Proximity Review - D07-12-25-0078
2025-09-19 - Revised Hydrogeological & Terrain Analysis - D07-12-25-0078
2025-09-19 - Revised Geotechnical Investigation - D07-12-25-0078
2025-06-09 - Richmond Ditch Hydrologic and Hydraulic Analysis Memorandum - D07-12-25-0078
2025-06-09 - Rail Safety and Proximity Review - D07-12-25-0078
2025-06-09 - Phase II Environmental Site Assessment - D07-12-25-0078
2025-06-09 - Phase I Environmental Site Assessment - D07-12-25-0078
2025-06-09 - Landscape Details - D07-12-25-0078 (2)
2025-06-09 - Landscape Details - D07-12-25-0078
2025-06-09 - Hydrogeological Assessment and Terrain Analysis - D07-12-25-0078
2025-06-09 - Geotechnical Investigation - D07-12-25-0078