3380 Jockvale Rd.#
Last updated: 2026-01-30 · ID: D07-12-25-0071
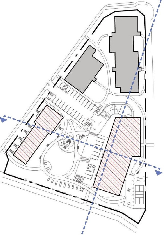
Summary#
Planned Unit Development consisting of one 3-storey stacked dwelling building and one 9-storey mid-rise apartment building, 18 units. The tenure is affordable rental units.
Status
File Pending (Application File Pending)
Building Scale (Max.)
Based on elevation drawings. Values may be approximate. See sources for exact figures.
High-rise · 10 storeys
· 30.88 m
Renders#
Location#
Select a marker to view the address.
Site Plans, Elevations and Floor Plans#
Additional Information#
| Date Initiated | 2025-05-27 |
| Ward | Ward 3 - David Hill |
Documents#
Related Projects#
| Project | Last Updated | Date Initiated |
|---|---|---|
3380 Jockvale Rd.
D02-02-25-0033 | 2025-08-22 | 2025-05-27 |



















