Ottawa Development Projects

4159 Obsidian St.#

Last updated: 2026-01-20 · ID: D07-12-25-0068

Summary#

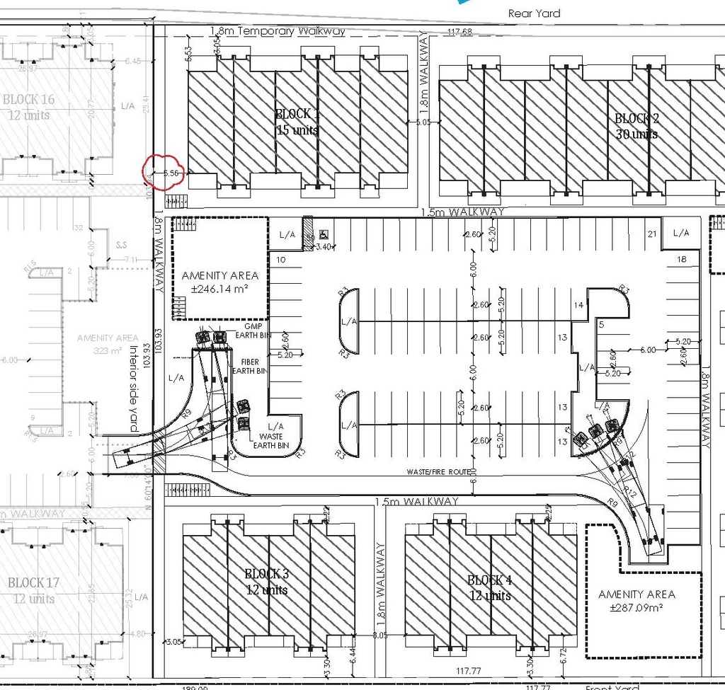
93 stacked, back-to-back townhouse dwellings in six (6) blocks. The blocks range in size from 12 units to 30 units.

Status
Active (Additional Submission Deemed Adequate)

Building Scale (Max.) Based on elevation drawings. Values may be approximate. See sources for exact figures.
Low-rise · 3 storeys · 10.3 m Data Quality Note Height was partially estimated using visual scale. This may be approximate.

Renders#

Location#

Select a marker to view the address.

Site Plans, Elevations and Floor Plans#

Additional Information#

Date Initiated2025-05-16
WardWard 3 - David Hill

Documents#

TypeDocument
Application Summary2025-06-17 - Application Summary - D07-12-25-0068
Architectural Plans2025-05-16 - Site Plan - D07-12-25-0068
Architectural Plans2025-05-16 - Sanitary Drainage Plan - D07-12-25-0068
Architectural Plans2025-05-16 - Preliminary Construction Management Plan - D07-12-25-0068
Architectural Plans2025-05-16 - Plan 4M-1729 - D07-12-25-0068
Architectural Plans2025-05-16 - Notes and Legends Plan - D07-12-25-0068
Architectural Plans2025-05-16 - Elevations - D07-12-25-0068
Architectural Plans2025-09-24 - Site Plan - D07-12-25-0068
Architectural Plans2025-09-24 - Sanitary Drainage Plan - D07-12-25-0068
Architectural Plans2025-09-24 - Preliminary Construction Management Plan - D07-12-25-0068
Architectural Plans2025-09-24 - Parkette Fit Plan - D07-12-25-0068
Architectural Plans2025-11-14 - Site Plan - D07-12-25-0068
Architectural Plans2025-11-14 - Sanitary Drainage Plan - D07-12-25-0068
Architectural Plans2025-11-14 - Notes and Legends Plan - D07-12-25-0068
Architectural Plans2025-11-14 - 24 Unit Block Elevation - D07-12-25-0068
Architectural Plans2025-11-14 - 21 Unit Block Elevation - D07-12-25-0068
Architectural Plans2025-11-14 - 15 Unit Block Elevation - D07-12-25-0068
Architectural Plans2026-01-19 - Site Servicing Plan - D07-12-25-0068
Architectural Plans2026-01-19 - Site Plan - D07-12-25-0068
Architectural Plans2026-01-19 - Sanitary Drainage Plan - D07-12-25-0068
Architectural Plans2026-01-19 - Notes & Legends Plan - D07-12-25-0068
Architectural Plans2026-01-19 - Landscape Plans & Details - D07-12-25-0068
Architectural Plans2026-01-19 - Grading Plan - D07-12-25-0068
Architectural Plans2026-01-19 - Existing Conditions & Removals Plan - D07-12-25-0068
Architectural Plans2026-01-19 - Erosion Control Plan & Detail Sheet - D07-12-25-0068
Design Brief2025-05-16 - Urban Design Brief - D07-12-25-0068
Electrical Plan2025-09-24 - Electrical Specifications - D07-12-25-0068
Erosion And Sediment Control Plan2025-05-16 - Erosion Control Plan and Detail Sheet - D07-12-25-0068
Erosion And Sediment Control Plan2025-09-24 - Erosion Control & Details Sheet - D07-12-25-0068
Erosion And Sediment Control Plan2025-11-14 - Erosion Control Plan and Detail Sheet - D07-12-25-0068
Existing Conditions2025-05-16 - Existing Conditions and Removals Plan - D07-12-25-0068
Existing Conditions2025-11-14 - Existing Conditions and Removals Plan - D07-12-25-0068
Geotechnical Report2025-05-16 - Grading Plan - D07-12-25-0068
Geotechnical Report2025-05-16 - Geotechnical Investigation - D07-12-25-0068
Geotechnical Report2025-09-24 - Grading Plan - D07-12-25-0068
Geotechnical Report2025-09-24 - Geotechnical Investigation - D07-12-25-0068
Geotechnical Report2025-11-14 - Grading Plan - D07-12-25-0068
Landscape Plan2025-05-16 - Landscape Plan and Details - D07-12-25-0068
Landscape Plan2025-09-24 - Landscape Plan - D07-12-25-0068
Landscape Plan2025-11-14 - Landscape Plans - D07-12-25-0068
Noise Study2025-05-16 - Detailed Traffic Noise Study - D07-12-25-0068
Noise Study2026-01-19 - Detailed Traffic Noise Study - D07-12-25-0068
Planning2025-05-16 - Zoning Confirmation Report - D07-12-25-0068
Planning2025-05-16 - Planning Rationale - D07-12-25-0068
Planning2025-09-24 - Planning Rationale - D07-12-25-0068
Site Servicing2025-05-16 - Site Servicing Plan - D07-12-25-0068
Site Servicing2025-05-16 - Servicing and SWM Report - D07-12-25-0068
Site Servicing2025-09-24 - Site Servicing Plan - D07-12-25-0068
Site Servicing2025-11-14 - Site Servicing Plan - D07-12-25-0068
Stormwater Management2025-05-16 - Storm Drainage Plan - D07-12-25-0068
Stormwater Management2025-09-24 - Stormwater Management Report - D07-12-25-0068
Stormwater Management2025-09-24 - Storm Drainage Plan - D07-12-25-0068
Stormwater Management2025-11-14 - Storm Drainage Plan - D07-12-25-0068
Stormwater Management2026-01-19 - Storm Drainage Plan - D07-12-25-0068
Stormwater Management2026-01-19 - Servicing & Stormwater Management Report - D07-12-25-0068
Surveying2026-01-19 - Plan of Survey - D07-12-25-0068
Transportation Analysis2025-05-16 - Transportation Impact Assessment - D07-12-25-0068
Transportation Analysis2025-09-24 - Transportation Impact Assessment - D07-12-25-0068
2025-05-16 - Update of Phase I ESA - D07-12-25-0068
2025-05-16 - Details Sheet 2 - D07-12-25-0068
2025-05-16 - Details Sheet - D07-12-25-0068
2025-09-24 - Details Sheet 01 - D07-12-25-0068
2025-09-24 - Details Sheet - D07-12-25-0068
2025-11-14 - Details Sheets 2 - D07-12-25-0068
2025-11-14 - Details Sheets 1 - D07-12-25-0068
2026-01-19 - Details Sheet 01 - D07-12-25-0068
2026-01-19 - Details Sheet - D07-12-25-0068