222 Baseline Rd.#
Last updated: 2026-03-31 ยท ID: D07-12-25-0065
Summary#
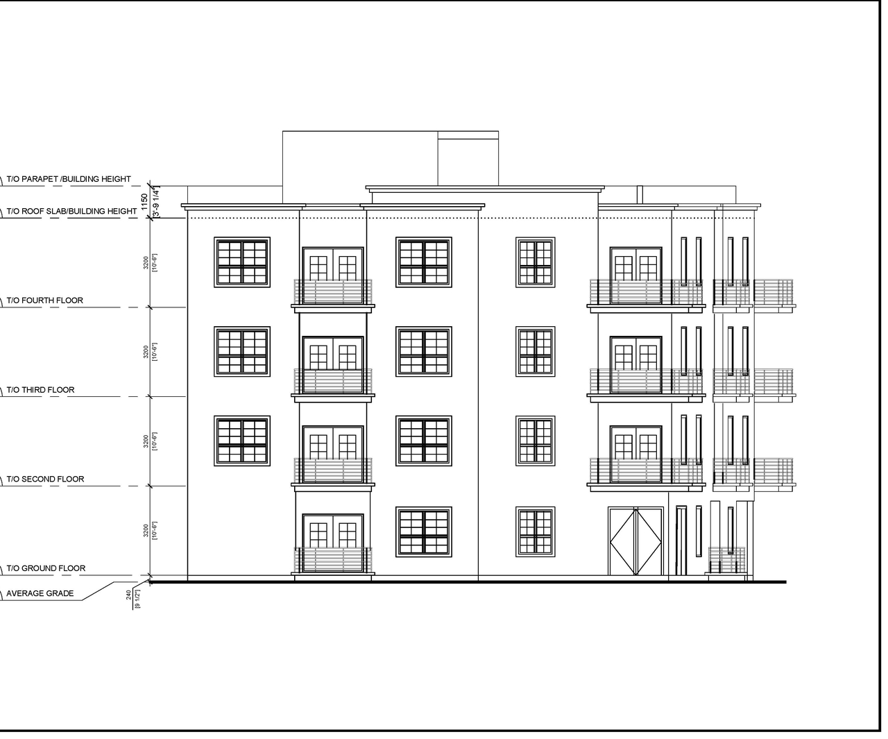
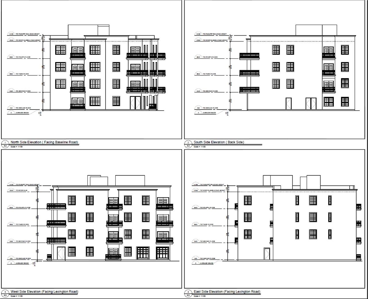
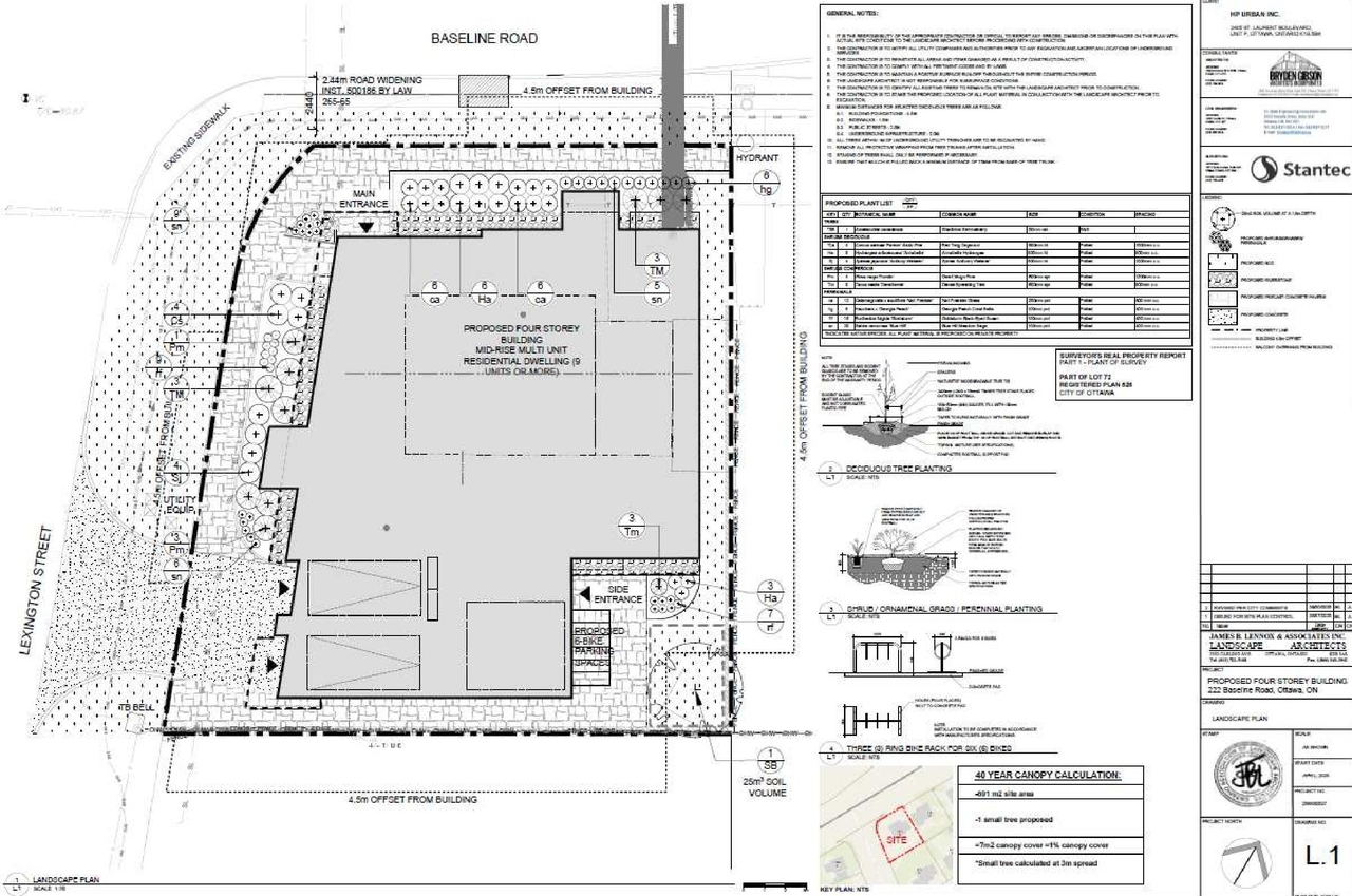
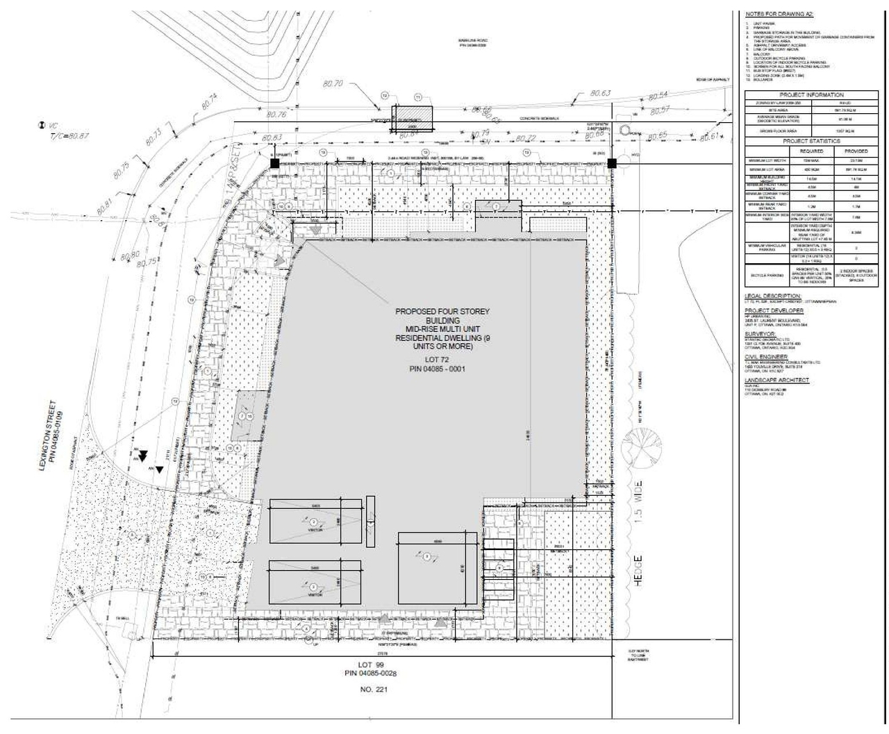
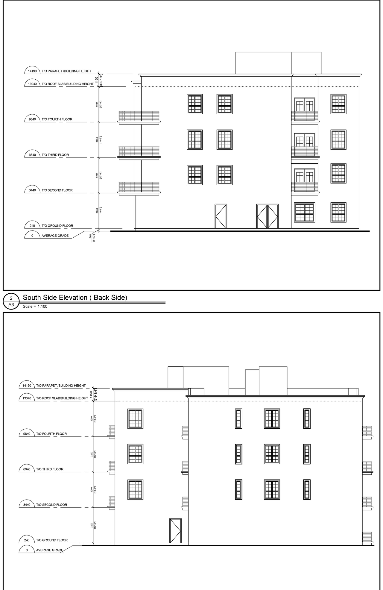
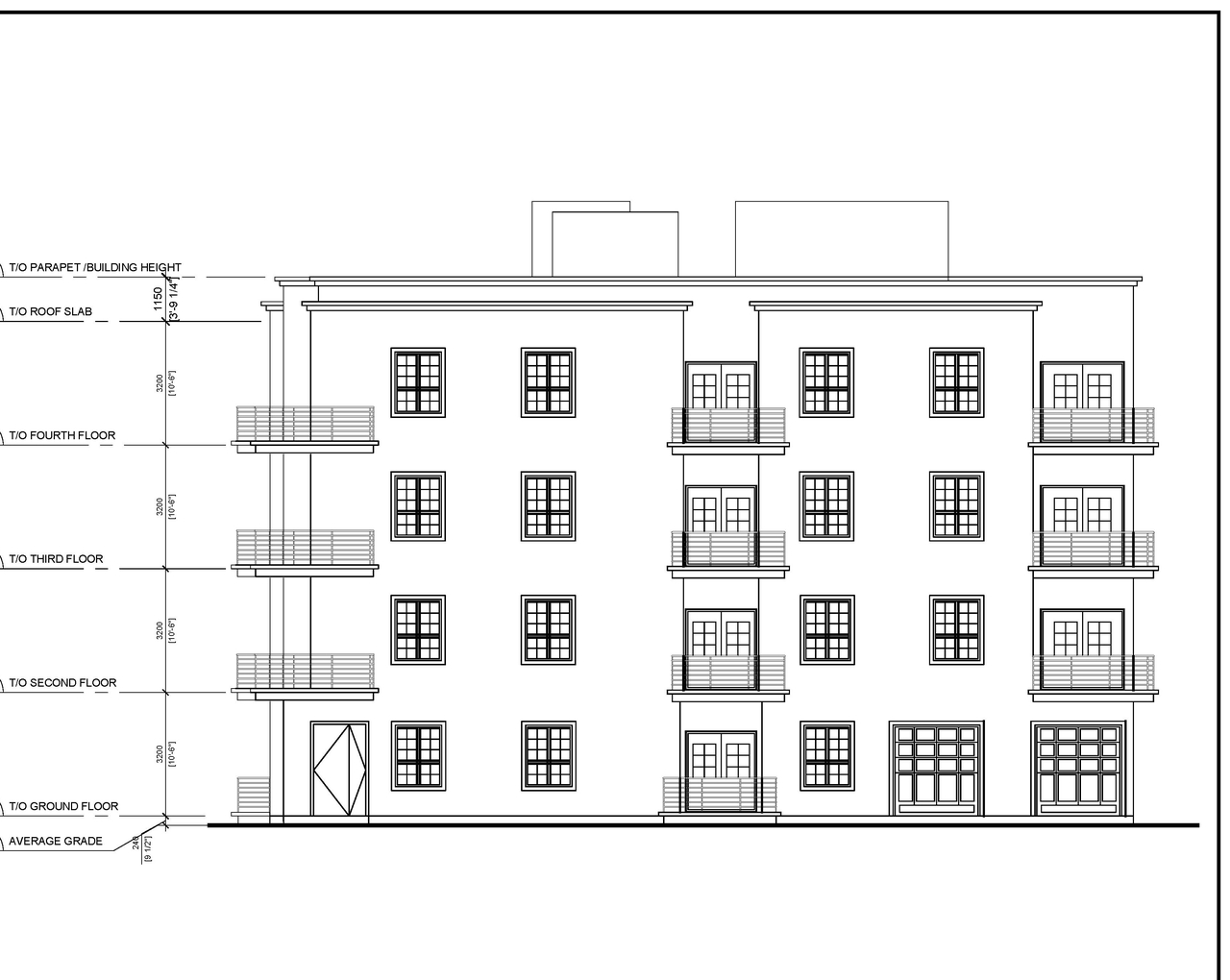
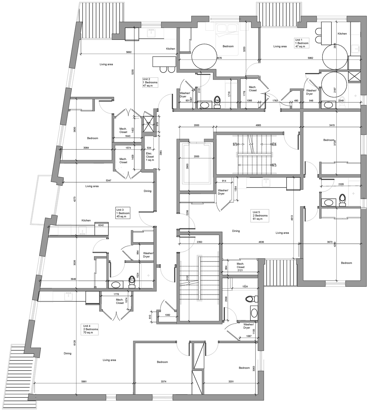
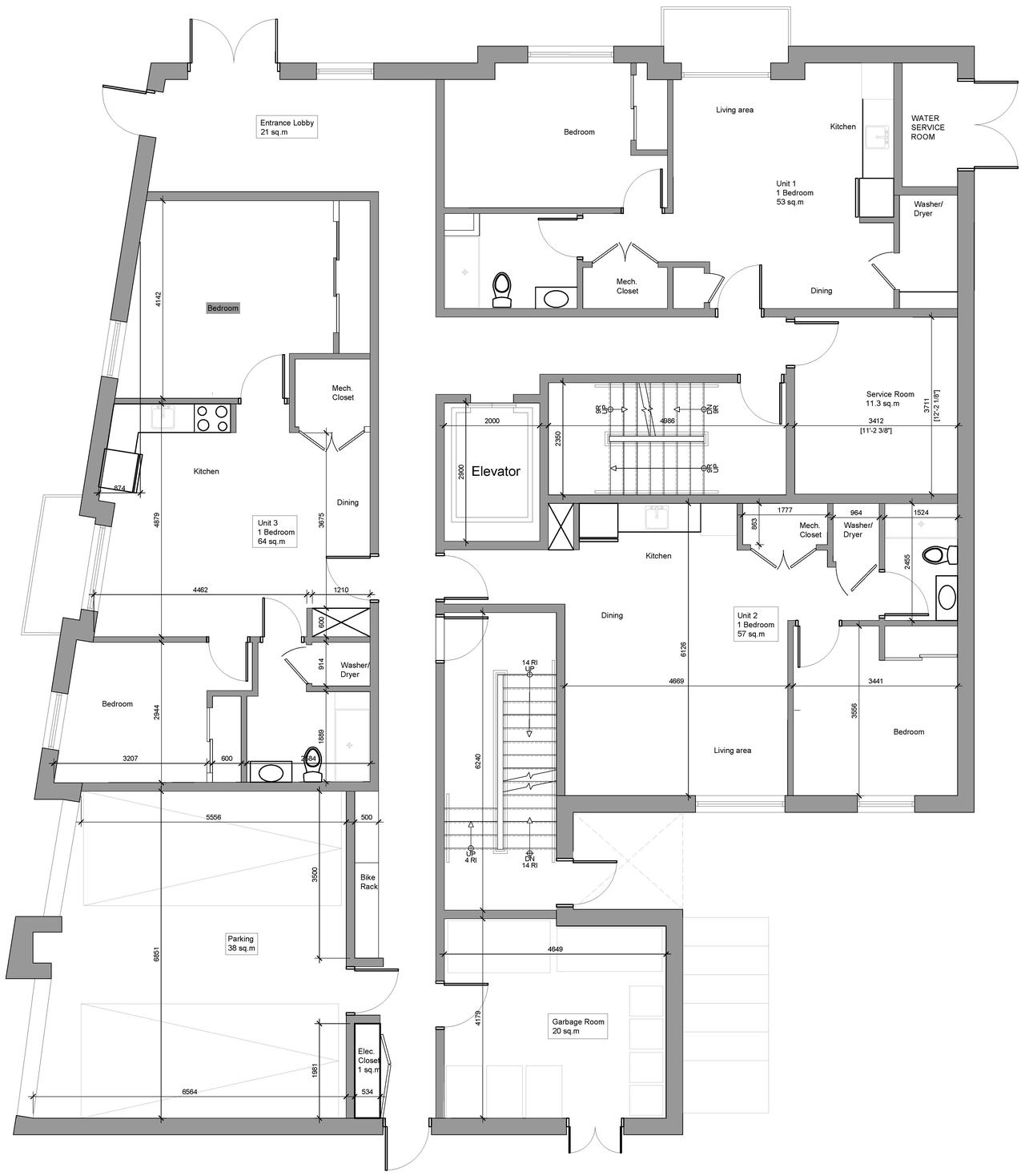
A low-rise, 4 storey apartment building is proposed with 18 units. The units range between 1 and 2 bedrooms
Status
Active (On Circulation; Initial Submission Review)
Location#
Select a marker to view the address.
Site Plans, Elevations and Floor Plans#
Additional Information#
| Date Initiated | 2025-05-12 |
| Ward | Ward 16 - Riley Brockington |
Documents#
Related Projects#
| Project | Last Updated | Date Initiated |
|---|---|---|
222 Baseline Rd.
D02-02-22-0111 | 2023-11-30 | 2022-11-25 |










