1309 Carling Ave.#
Last updated: 2025-08-23 · ID: D07-12-25-0064
Summary#
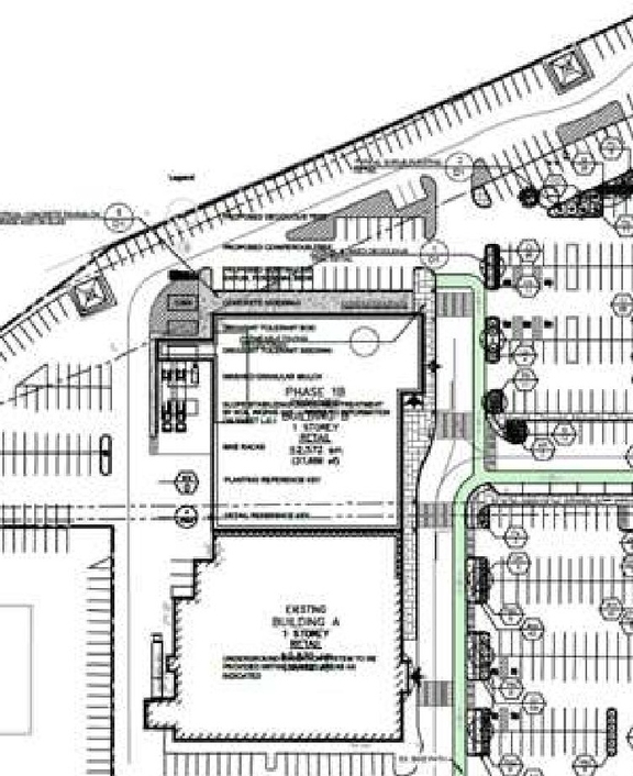
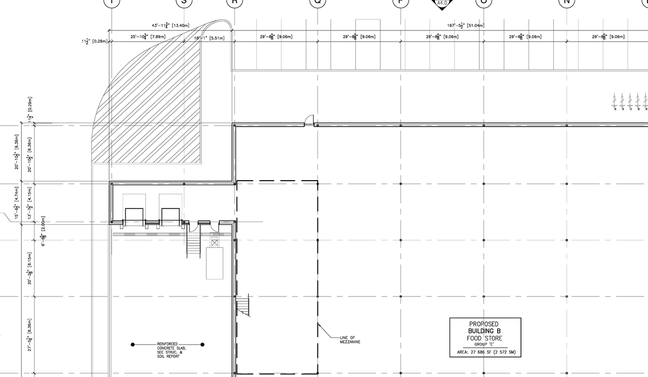
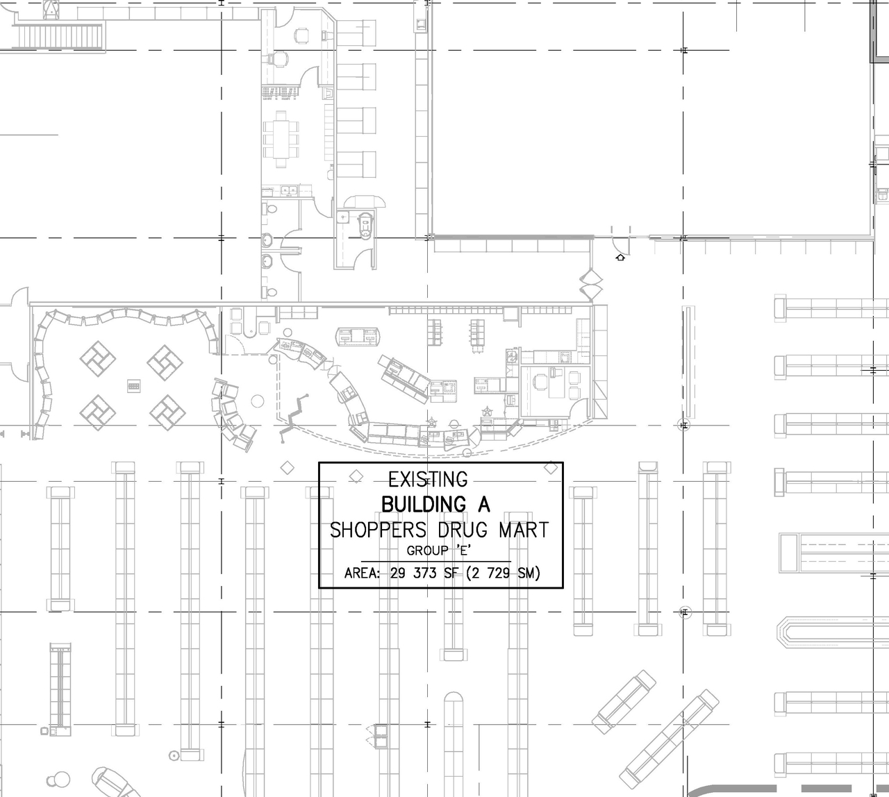
Demolish existing mall, save an exept for the existing Shoppers Drug Mart, approx 30,000 sq ft retail food store proposed
Status
File Pending (Application File Pending)
Building Scale (Max.)
Based on elevation drawings. Values may be approximate. See sources for exact figures.
Low-rise · 1 storey
Data Quality Note
Text was extracted using optical character recognition. This may introduce artifacts or misreads.
· 8.6 m
Data Quality Note
Height was partially estimated using visual scale. This may be approximate.
Data Quality Note
Text was extracted using optical character recognition. This may introduce artifacts or misreads.
Renders#
Location#
Select a marker to view the address.
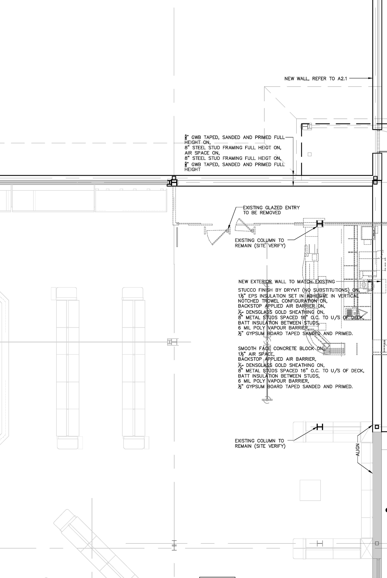
Site Plans, Elevations and Floor Plans#
Additional Information#
| Date Initiated | 2025-05-09 |
| Ward | Ward 16 - Riley Brockington |






