Ottawa Development Projects

615 Mikinak Rd.#

Last updated: 2026-03-13 · ID: D07-12-25-0063

Summary#

Low-rise residential development consisting of 111 total dwelling units (60 back-to-back townhomes and 51 rear lane townhomes) as a planned unit development (PUD), an internal private road network, 8 visitor parking spaces, soft and hard landscaping, snow storage, amenity area, and stormwater management. Applications for plan of condominium (common elements) and minor variance will also be submitted in support of the proposal, with the minor variance application to advance once plans are no longer anticipated to change as part of the site plan control process.

Status
Inactive (Notice of Decision Sent)

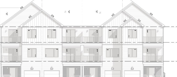
Building Scale (Max.) Based on elevation drawings. Values may be approximate. See sources for exact figures.
Low-rise · 3 storeys · 13.5 m Data Quality Note Height was partially estimated using visual scale. This may be approximate.

Renders#

Location#

Select a marker to view the address.

Site Plans, Elevations and Floor Plans#

Additional Information#

Date Initiated2025-05-07
WardWard 13 - Rawlson King

Documents#

TypeDocument
Application Summary2025-08-13 - Application Summary - D07-12-25-0063
Architectural Plans2025-07-14 - Site Plan - D07-12-25-0063
Architectural Plans2025-07-14 - Sanitary Drainage Plan - D07-12-25-0063
Architectural Plans2025-07-14 - Plan and Profile Street 1_03 - D07-12-25-0063
Architectural Plans2025-07-14 - Plan and Profile Street 1_02 - D07-12-25-0063
Architectural Plans2025-07-14 - Plan and Profile Street 1_01 - D07-12-25-0063
Architectural Plans2025-07-14 - Notes and Legends Plan - D07-12-25-0063
Architectural Plans2025-07-14 - Elevations B - D07-12-25-0063
Architectural Plans2025-07-14 - Elevations - D07-12-25-0063
Architectural Plans2025-07-14 - Detail Sheet - D07-12-25-0063
Architectural Plans2025-05-07 - Site Plan - D07-12-25-0063
Architectural Plans2025-05-07 - Preliminary Construction Management Plan - D07-12-25-0063
Architectural Plans2025-05-07 - Plan 4M-1559 - D07-12-25-0063
Architectural Plans2025-05-07 - Elevations VH Final - D07-12-25-0063
Architectural Plans2025-05-07 - Elevations RL Final - D07-12-25-0063
Architectural Plans2025-09-23 - Draft Plan of Common Elements - D07-12-25-0063
Architectural Plans2025-11-12 - Site Plan - D07-12-25-0063
Architectural Plans2025-11-12 - Sanitary Drainage Plan - D07-12-25-0063
Architectural Plans2025-11-12 - Plan and Profile - Street 2 and 3 - D07-12-25-0063
Architectural Plans2025-11-12 - Plan and Profile - D07-12-25-0063 (2)
Architectural Plans2025-11-12 - Plan and Profile - D07-12-25-0063
Architectural Plans2025-11-12 - Notes and Legends Plan - D07-12-25-0063
Architectural Plans2025-11-12 - Detail Sheet - D07-12-25-0063
Architectural Plans2025-11-12 - Construction Management Plan - D07-12-25-0063
Architectural Plans2025-11-27 - Sanitary Drainage Plan - D07-12-25-0063
Architectural Plans2025-11-27 - Plan and Profile Street 2 & 3 PP-3 - D07-12-25-0063
Architectural Plans2025-11-27 - Plan and Profile Street 1 PP-1 - D07-12-25-0063
Architectural Plans2025-11-27 - Plan and Profile Street 1 PP-2 - D07-12-25-0063
Architectural Plans2025-11-27 - Notes and Legends Plan - D07-12-25-0063
Architectural Plans2025-11-27 - Detail Sheet - D07-12-25-0063
Architectural Plans2025-11-27 - Construction Management Plan - D07-12-25-0063
Architectural Plans2026-01-14 - Site Plan - D07-12-25-0063
Architectural Plans2026-01-22 - Site Servicing Plan - D07-12-25-0063
Architectural Plans2026-01-22 - Sanitary Drainage Plan - D07-12-25-0063
Architectural Plans2026-01-22 - Plan & Profile 03 - D07-12-25-0063
Architectural Plans2026-01-22 - Plan & Profile 02 - D07-12-25-0063
Architectural Plans2026-01-22 - Plan & Profile 01 - D07-12-25-0063
Architectural Plans2026-01-22 - Notes & Legends Plan - D07-12-25-0063
Architectural Plans2026-01-22 - Grading Plan - D07-12-25-0063
Architectural Plans2026-01-22 - Existing Conditions Plan - D07-12-25-0063
Architectural Plans2026-01-22 - Erosion Control Plan & Detail Sheet - D07-12-25-0063
Architectural Plans2026-01-22 - Detail Sheet - D07-12-25-0063
Architectural Plans2026-01-22 - Construction Management Plan - D07-12-25-0063
Architectural Plans2026-01-22 - Composite Utility Plan - D07-12-25-0063
Architectural Plans2026-02-03 - Landscape Site Plan - D07-12-02-0063
Architectural Plans2026-02-18 - Elevations - D07-12-25-0063
Architectural Plans2026-03-11 - APPROVED Site Servicing Plan - D07-12-25-0063
Architectural Plans2026-03-11 - APPROVED Site Plan Approval Report - D07-12-25-0063
Architectural Plans2026-03-11 - APPROVED Site Plan - D07-12-25-0063
Architectural Plans2026-03-11 - APPROVED Sanitary Drainage Plan - D07-12-25-0063
Architectural Plans2026-03-11 - APPROVED Plan & Profile 03 - D07-12-25-0063
Architectural Plans2026-03-11 - APPROVED Plan & Profile 02 - D07-12-25-0063
Architectural Plans2026-03-11 - APPROVED Plan & Profile 01 - D07-12-25-0063
Architectural Plans2026-03-11 - APPROVED Notes & Legend Plan - D07-12-25-0063
Architectural Plans2026-03-11 - APPROVED Grading Plan - D07-12-25-0063
Architectural Plans2026-03-11 - APPROVED Existing Conditions Plan - D07-12-25-0063
Architectural Plans2026-03-11 - APPROVED Erosion Control & Detail Sheet - D07-12-25-0063
Architectural Plans2026-03-11 - APPROVED Elevation B 01 - D07-12-25-0063
Architectural Plans2026-03-11 - APPROVED Elevation B 00 - D07-12-25-0063
Architectural Plans2026-03-11 - APPROVED Detail Sheet - D07-12-25-0063
Design Brief2025-05-07 - Urban Design Brief - D07-12-25-0063
Environmental2025-05-07 - Phase Two Environmental Site Assessment - D07-12-25-0063
Environmental2025-05-07 - Phase One Environmental Site Assessment - D07-12-25-0063
Environmental2025-05-07 - Environmental - RSC 221266 - D07-12-25-0063
Erosion And Sediment Control Plan2025-07-14 - Erosion Control Plan and Detail Sheet - D07-12-25-0063
Erosion And Sediment Control Plan2025-11-12 - Erosion Control Pland and Detail Sheet - D07-12-25-0063
Erosion And Sediment Control Plan2025-11-27 - Erosion Control Plan and Detail Sheet - D07-12-25-0063
Existing Conditions2025-07-14 - Existing Conditions Plan - D07-12-25-0063
Existing Conditions2025-11-27 - Existing Conditions Plan - D07-12-25-0063
Geotechnical Report2025-07-14 - Grading Plan - D07-12-25-0063
Geotechnical Report2025-05-07 - Groundwater Impact Assessment - D07-12-25-0063
Geotechnical Report2025-05-07 - Geotechnical Investigation - D07-12-25-0063
Geotechnical Report2025-11-12 - Grading Plan - D07-12-25-0063
Geotechnical Report2025-11-27 - Grading Plan - D07-12-25-0063
Geotechnical Report2026-03-11 - APPROVED Groundwater Impact Assessment - D07-12-25-0063
Landscape Plan2025-07-14 - Landscape Plan - D07-12-25-0063
Landscape Plan2025-11-12 - Landscape Site Plan - D07-12-25-0063
Landscape Plan2025-11-12 - Landscape Plan Review - D07-12-25-0063
Landscape Plan2026-01-14 - Landscape Plan - D07-12-25-0063
Noise Study2025-05-07 - Traffic Noise Final Report - D07-12-25-0063
Noise Study2026-03-11 - APPROVED Traffic Noise Final Report - D07-12-25-0063
Planning2025-07-14 - Zoning Confirmation Report - D07-12-25-0063
Planning2025-05-07 - Zoning Confirmation Report - D07-12-25-0063
Planning2025-05-07 - Planning Brief - D07-12-25-0063
Planning2025-11-12 - Zoning Confirmation Report - D07-12-25-0063
Site Servicing2025-07-25 - Site Servicing and Stormwater Management Report - D07-12-25-0063
Site Servicing2025-07-14 - Site Servicing Plan - D07-12-25-0063
Site Servicing2025-07-14 - Site Servicing and Stormwater Management Report - D07-12-25-0063
Site Servicing2025-05-07 - Site Servicing Plan - D07-12-25-0063
Site Servicing2025-05-07 - Site Servicing and Stormwater Management Report - D07-12-25-0063
Site Servicing2025-11-12 - Site Servicing Plan - D07-12-25-0063
Site Servicing2025-11-12 - Site Servicing and Stormwater Management Report - D07-12-25-0063 (2)
Site Servicing2025-11-12 - Site Servicing and Stormwater Management Report - D07-12-25-0063
Site Servicing2025-11-27 - Site Servicing Plan - D07-12-25-0063
Stormwater Management2025-07-14 - Storm Drainage Plan - D07-12-25-0063
Stormwater Management2025-05-07 - Storm Drainage Plan - D07-12-25-0063
Stormwater Management2025-11-12 - Storm Drainage Plan - D07-12-25-0063
Stormwater Management2025-11-27 - Storm Drainage Plan - D07-12-25-0063
Stormwater Management2026-01-22 - Storm Drainage Plan - D07-12-25-0063
Stormwater Management2026-03-11 - APPROVED Storm Drainage Plan - D07-12-25-0063
Stormwater Management2026-03-11 - APPROVED Site Servicing & Stormwater Management Report - D07-12-25-0063
Transportation Analysis2025-05-07 - Transportation Impact Assessment - D07-12-25-0063
Tree Information and Conservation2025-05-07 - Block 105 Tree Conservation Report - D07-12-25-0063
Tree Information and Conservation2025-11-12 - Tree Planting Restriction - D07-12-25-0063
Tree Information and Conservation2025-11-12 - Technical Memorandum Tree Conservation Report - D07-12-25-0063
2025-11-12 - Master Block 6 Units with Corner - D07-12-25-0063
2025-11-12 - Master Block 6 Units with 2 Ends - D07-12-25-0063
2025-11-12 - Master Block 5 Units with Corner - D07-12-25-0063
2025-11-12 - Master Block 5 Units with 2 Ends - D07-12-25-0063
2025-11-12 - Master Block 4 Units with 2 Ends - D07-12-25-0063
2026-03-11 - APPROVED Transportation Impact Assessment - D07-12-25-0063
2026-03-11 - APPROVED Phase Two ESA - D07-12-25-0063
2026-03-11 - APPROVED Phase One ESA - D07-12-25-0063
2026-03-11 - APPROVED Master Block 6 Units with Corner - D07-12-25-0063
2026-03-11 - APPROVED Master Block 6 Units with 2 Ends - D07-12-25-0063
2026-03-11 - APPROVED Master Block 5 Units with Corner - D07-12-25-0063
2026-03-11 - APPROVED Master Block 5 Units with 2 Ends - D07-12-25-0063
2026-03-11 - APPROVED Master Block 4 Units with 2 Ends - D07-12-25-0063
2026-03-11 - APPROVED Landscape Package - D07-12-25-0063
2026-03-11 - APPROVED Geotechnical Investigation - D07-12-25-0063