150 Abbeyhill Dr.#
Last updated: 2026-01-14 · ID: D07-12-25-0062
Summary#
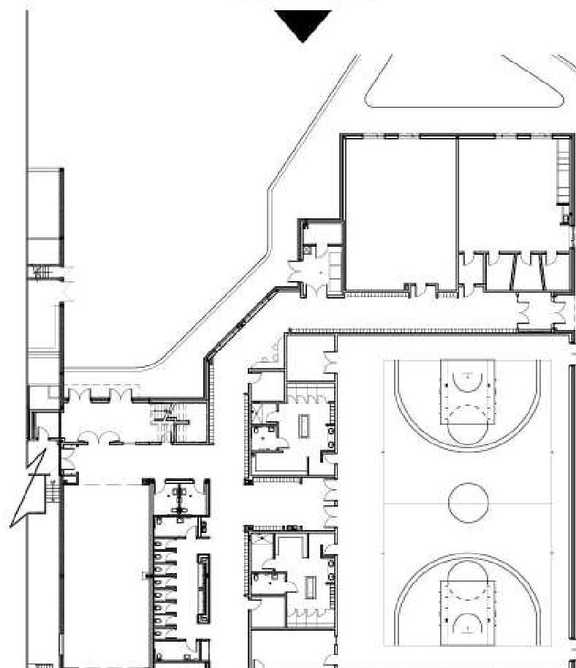
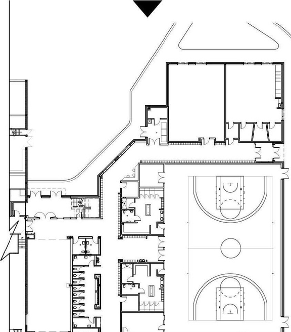
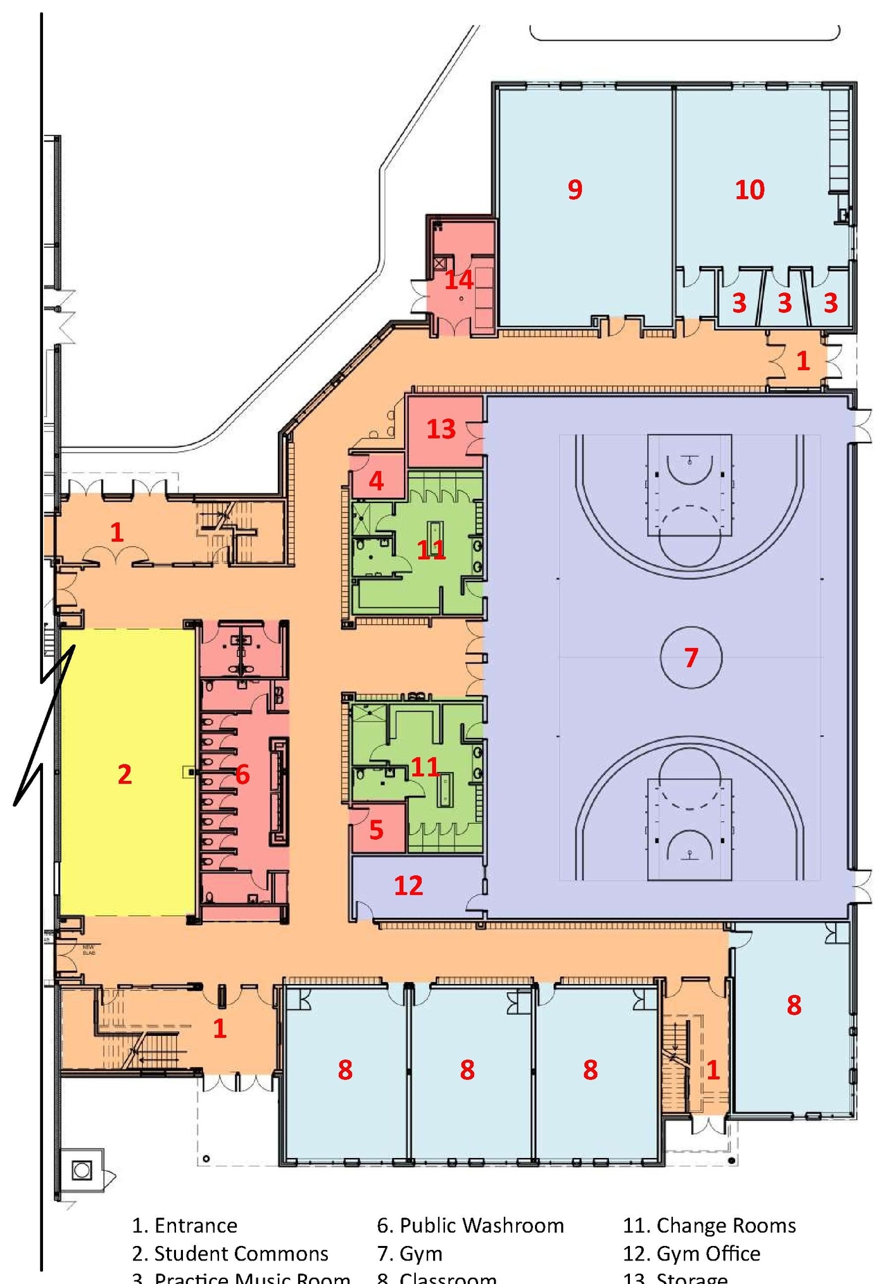
A Site Plan Control application to construct a two-storey addition on the south of the existing school. The addition will include 13 classrooms, gymnasium, music room, and drama room. The proposal also includes an expansion to the existing parking lot for 42 parking spaces and interior alteration to the school.
Status
Inactive (Signed Letter of Undertaking Received)
Building Scale (Max.)
Based on elevation drawings. Values may be approximate. See sources for exact figures.
Low-rise · 2 storeys
· 9 m
Renders#
Location#
Select a marker to view the address.
Site Plans, Elevations and Floor Plans#
Additional Information#
| Date Initiated | 2025-05-05 |
| Ward | Ward 23 - Allan Hubley |














