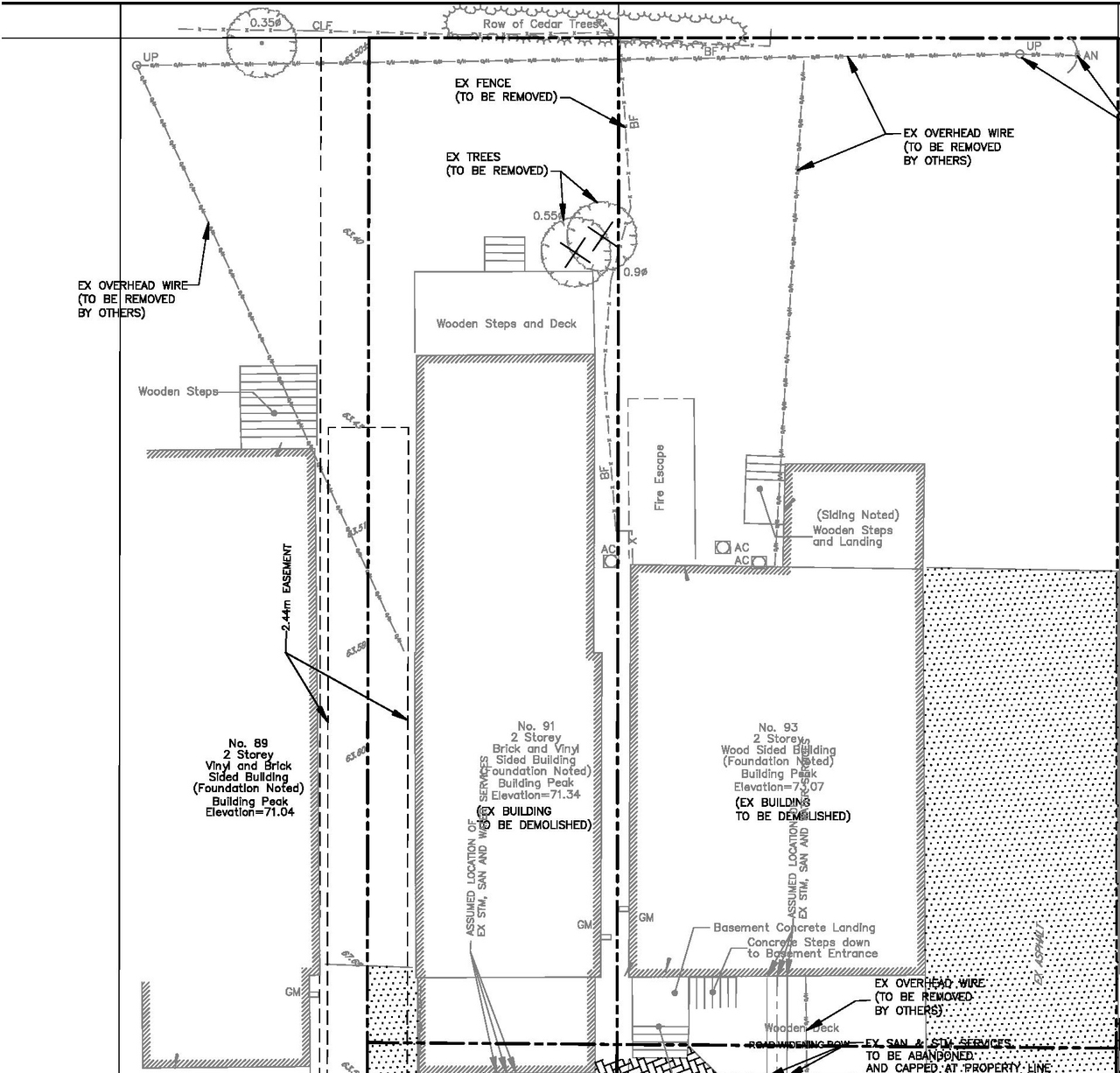
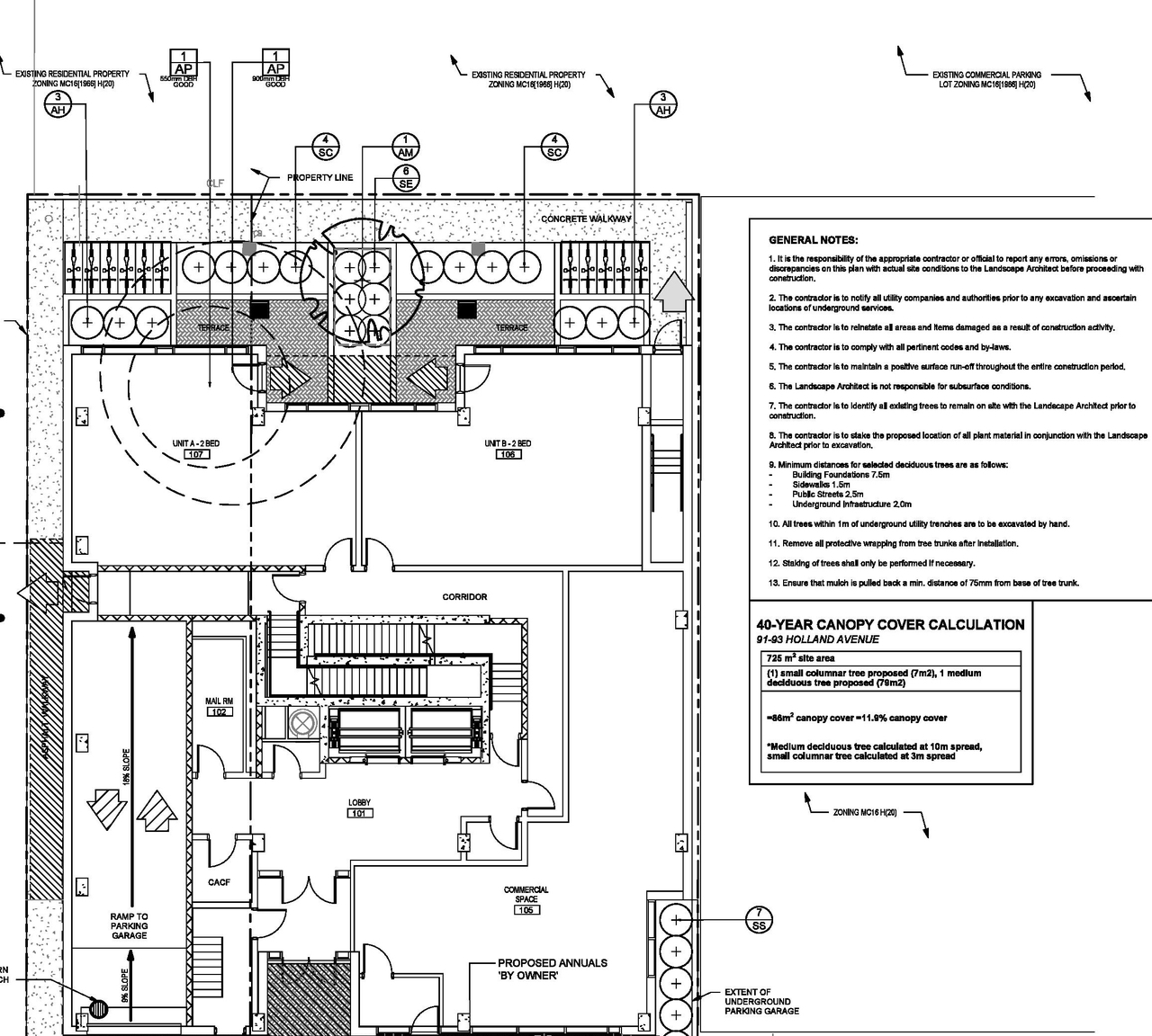
91-93 Holland Ave.#
Last updated: 2026-03-25 · ID: D07-12-25-0053
Summary#
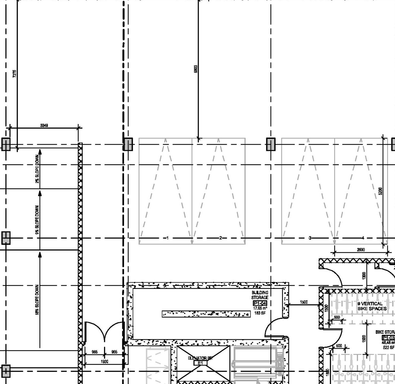
9 storey Apartment Building with rooftop terrace with 1 level of below grade visitor parking, bicycle storage & garbage
Status
Active (On Circulation; Initial Submission Review)
Building Scale (Max.)
Based on elevation drawings. Values may be approximate. See sources for exact figures.
Mid-rise · 8 storeys
· 28.5 m
Renders#
Location#
Select a marker to view the address.
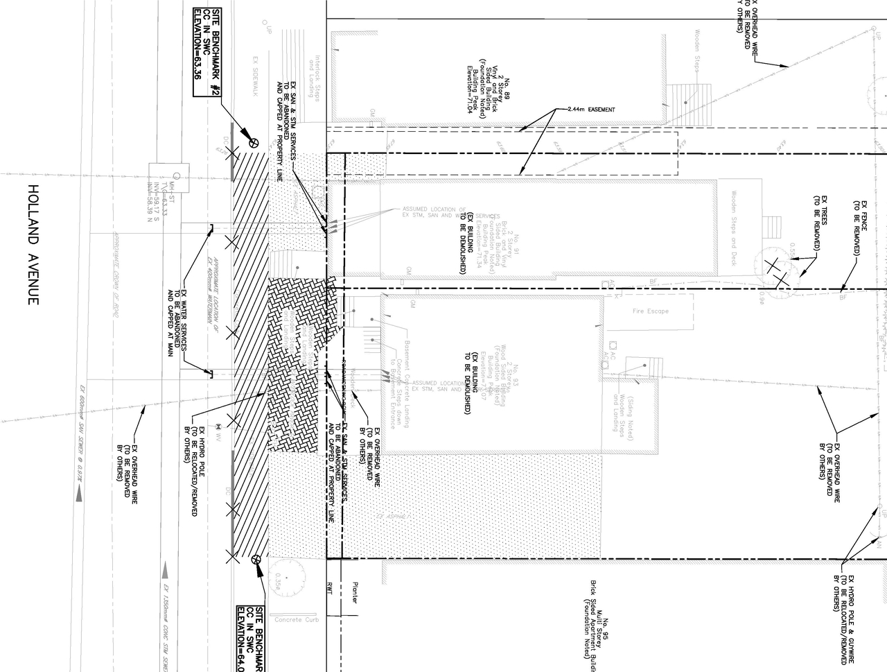
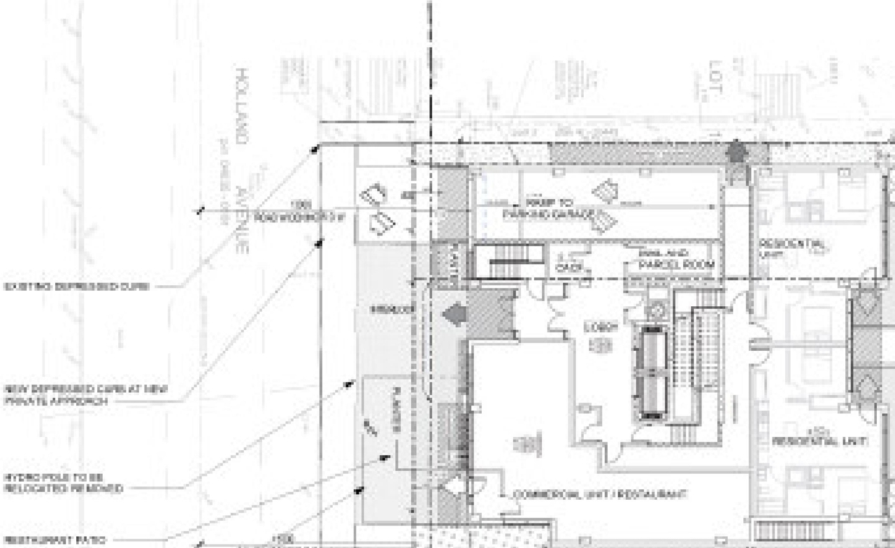
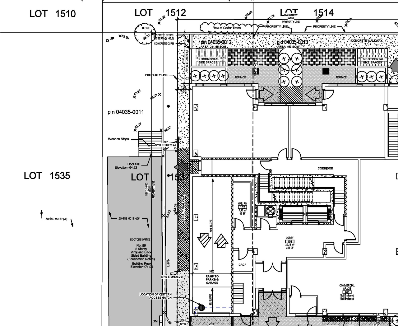
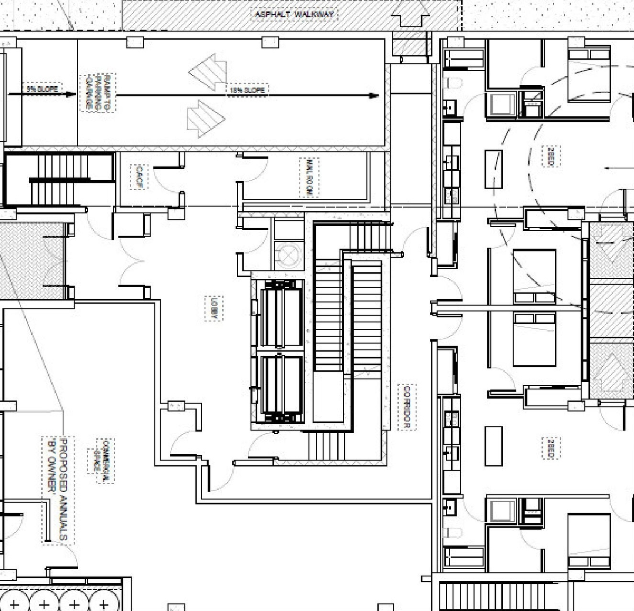
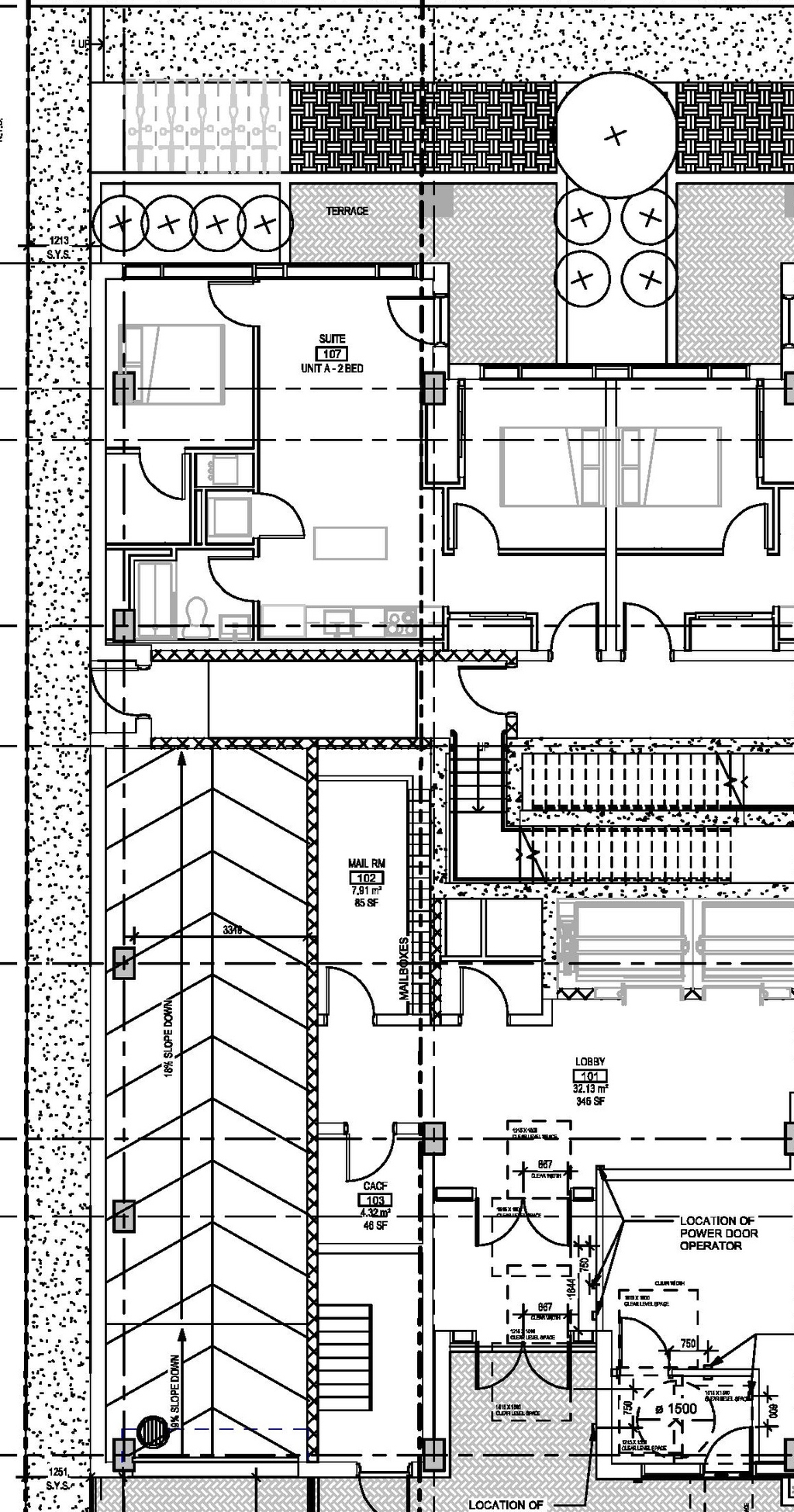
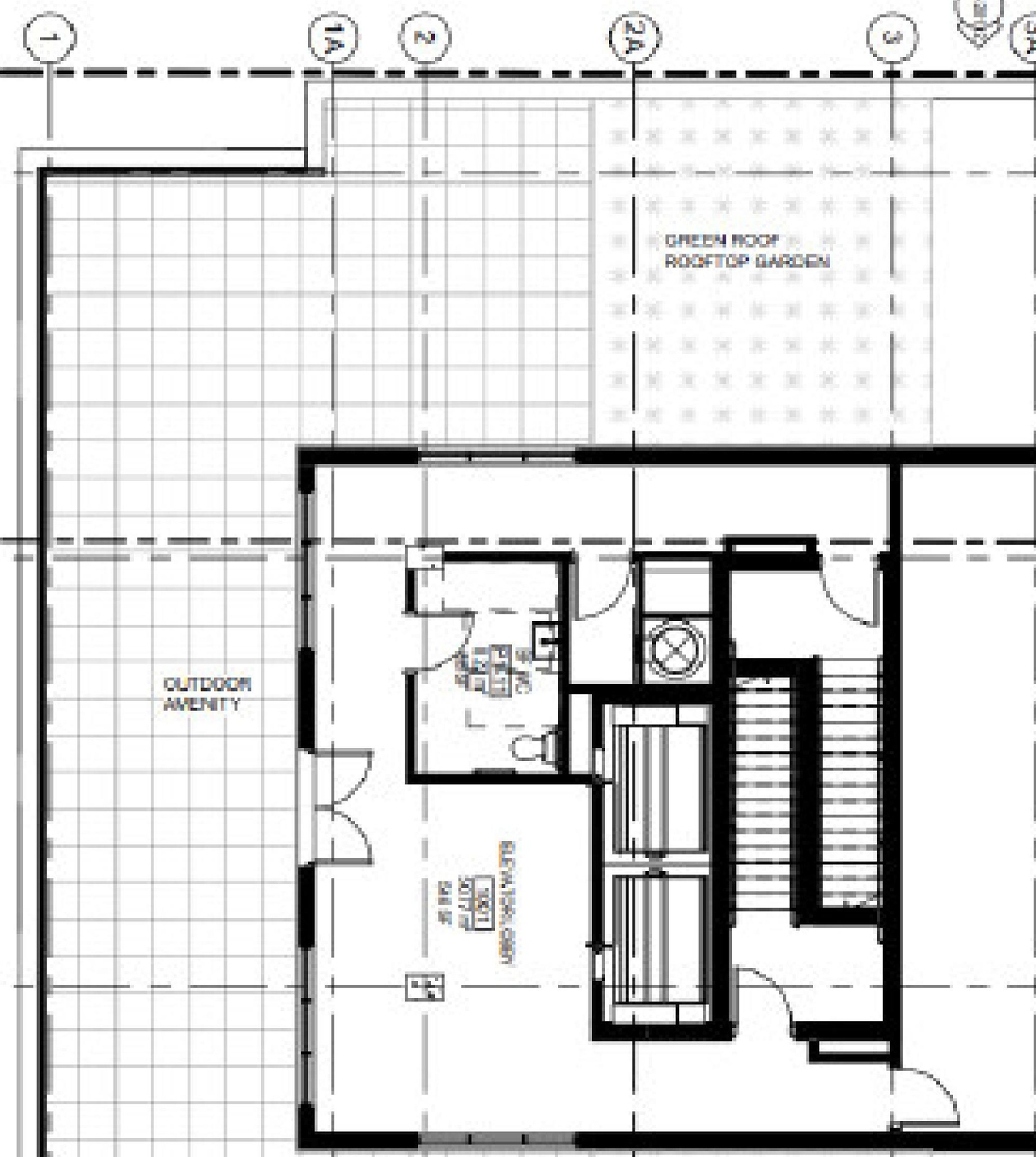
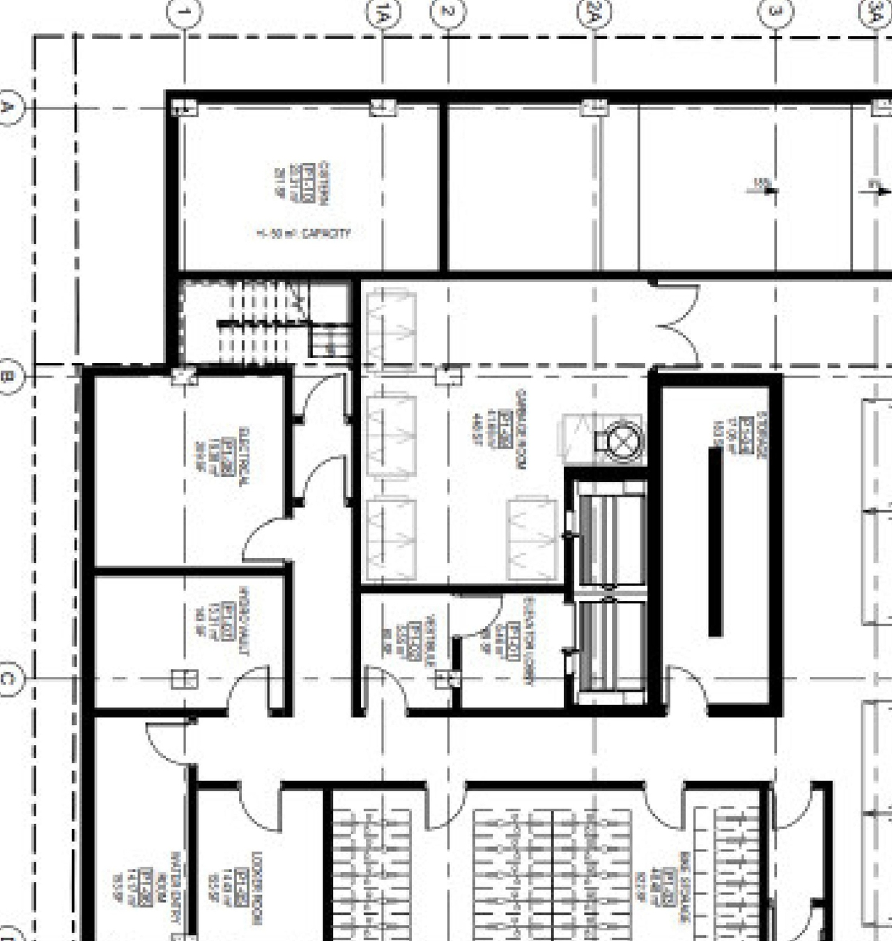
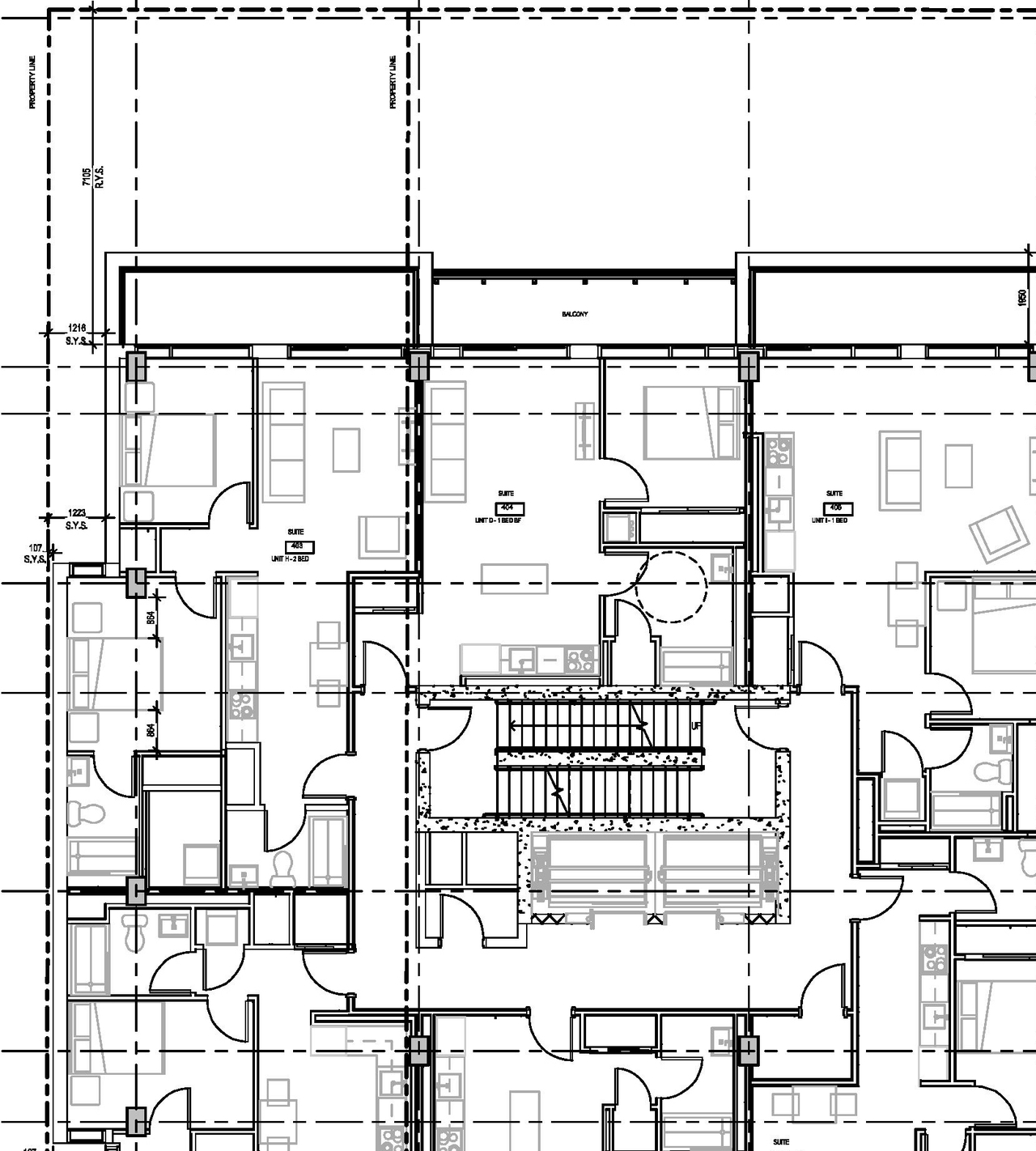
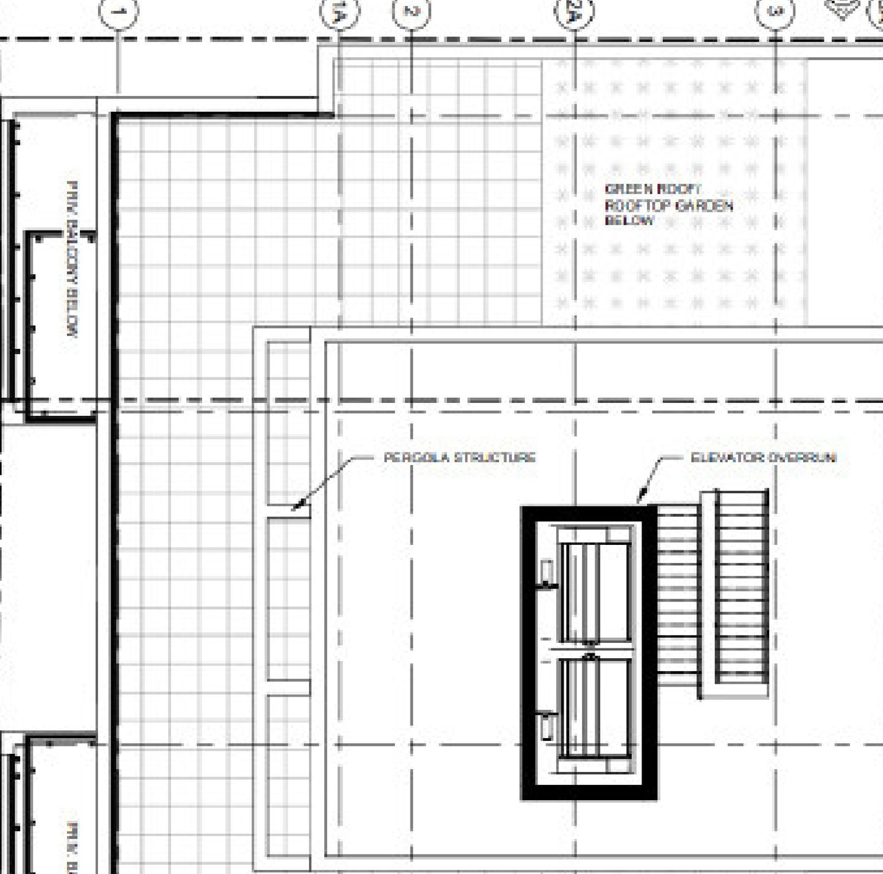
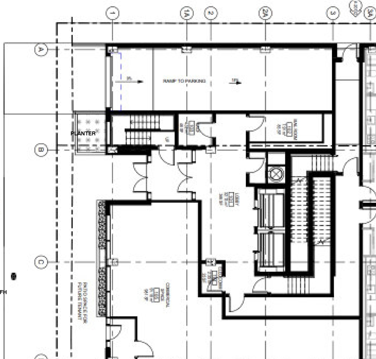
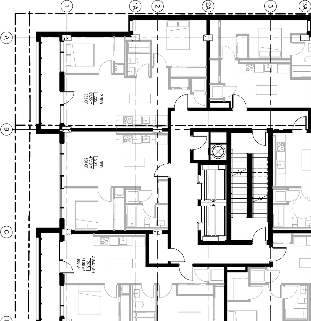
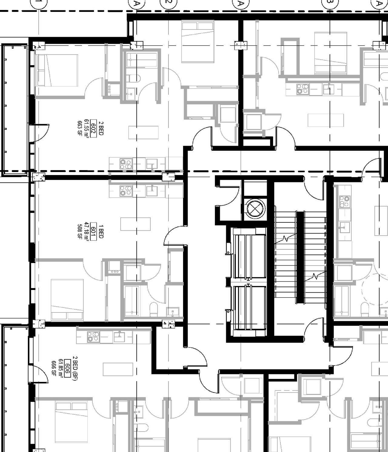
Site Plans, Elevations and Floor Plans#
Additional Information#
| Date Initiated | 2025-04-24 |
| Ward | Ward 15 - Jeff Leiper |
| All Addresses | 91 Holland Ave. 93 Holland Ave. |






















































