Ottawa Development Projects

6600 Carriere#

Last updated: 2026-01-10 ยท ID: D07-12-25-0040

Summary#

A Site Plan Control application to construct a new three-storey community centre and recreational/athletic facility, 2,971 square metres in gross floor area (GFA).

Status
Inactive (Agreement Registered - Final Legal Clearance Given)

Renders#

Location#

Select a marker to view the address.

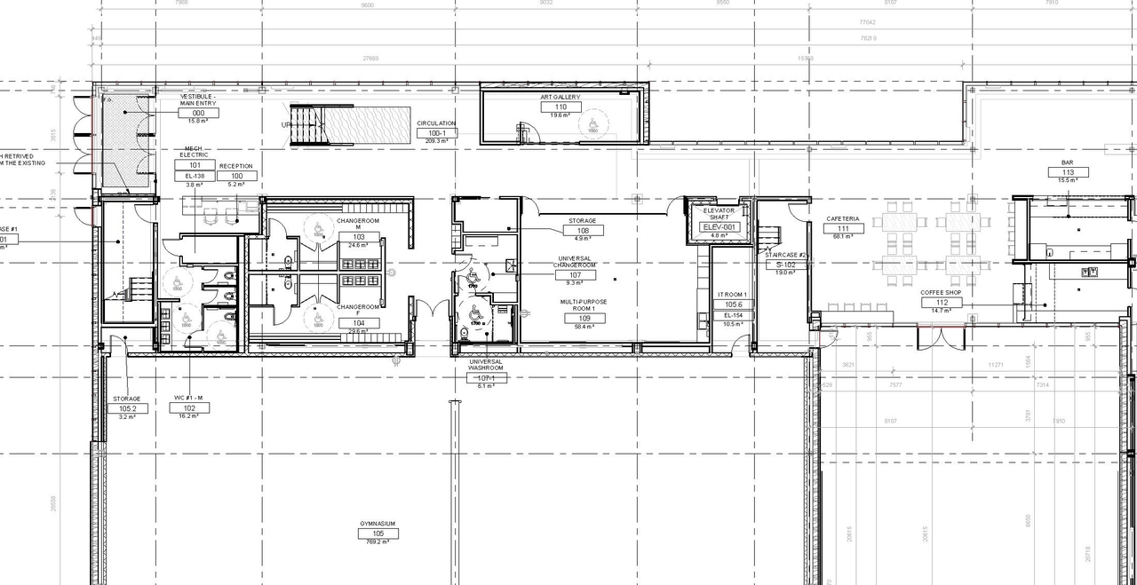
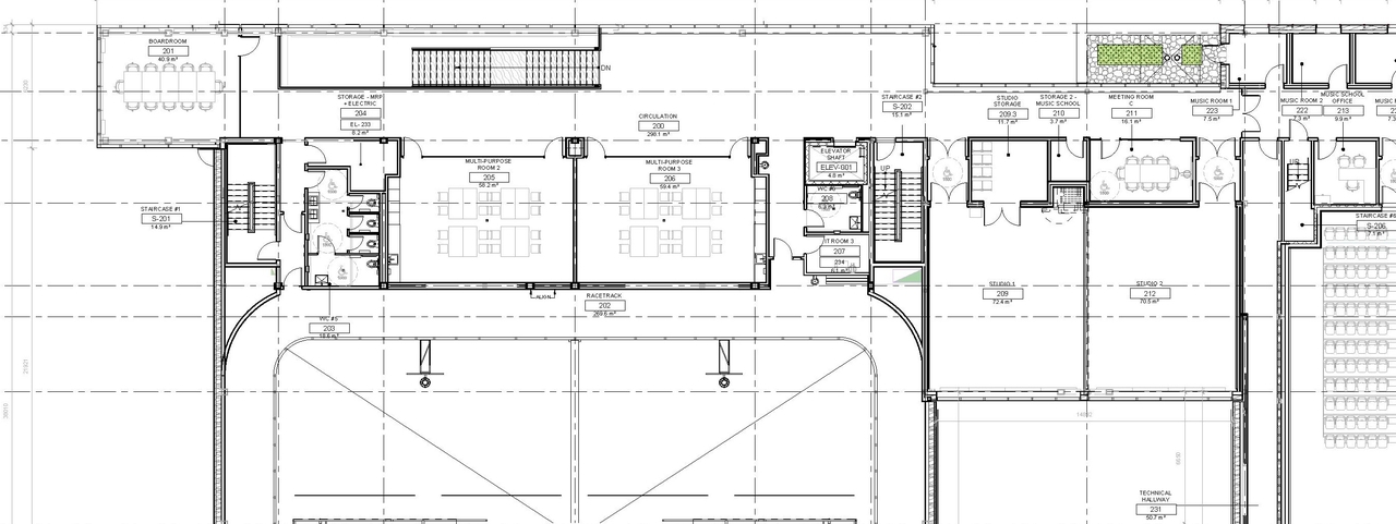
Site Plans, Elevations and Floor Plans#

Additional Information#

Date Initiated2025-03-28
WardWard 2 - Laura Dudas

Documents#

TypeDocument
Application Summary2025-06-27 - Application Summary - D07-12-25-0040
Architectural Plans2025-06-27 - Site Plan - D07-12-25-0040
Architectural Plans2025-06-27 - Architectural Package - D07-12-25-0040
Architectural Plans2025-03-28 - Preliminary Construction Management Plan - D07-12-25-0040
Architectural Plans2025-07-29 - Site Plan - D07-12-25-0040
Architectural Plans2025-07-29 - Elevation North and West - D07-12-25-0040
Architectural Plans2025-07-29 - Demolition Plan - D07-12-25-0040
Architectural Plans2025-08-12 - Site Plan - D07-12-25-0040
Architectural Plans2025-08-14 - APPROVED South and East Elevations - D07-12-25-0040
Architectural Plans2025-08-14 - APPROVED Site Plan Approval Report - D07-12-25-0040
Architectural Plans2025-08-14 - APPROVED Site Plan - D07-12-25-0040
Architectural Plans2025-08-14 - APPROVED North and West Elevations - D07-12-25-0040
Architectural Plans2025-08-14 - APPROVED General Notes and Details C4 - D07-12-25-0040
Architectural Plans2025-08-14 - APPROVED General Notes and Details - D07-12-25-0040
Architectural Plans2025-08-14 - APPROVED Curtain Wall Elevations - D07-12-25-0040
Architectural Plans2025-10-22 - Planting Plan - D07-12-25-0040
Civil Engineering Report2025-06-04 - Civil Plans - D07-12-25-0040
Civil Engineering Report2025-07-29 - Civil Plans - D07-12-25-0040
Civil Engineering Report2025-08-11 - Civil Plans - D07-12-25-0040
Design Brief2025-03-28 - Design Brief - D07-12-25-0040
Environmental2025-08-14 - APPROVED Phase I Environmental Site Assessment Update - D07-12-25-0040
Environmental2025-08-14 - APPROVED Phase I Environmental Site Assessment - D07-12-25-0040
Geotechnical Report2025-06-04 - Grading & Servicing Plan Review - D07-12-25-0040
Geotechnical Report2025-06-04 - Geotechnical Investigation - D07-12-25-0040
Geotechnical Report2025-08-14 - APPROVED Grading & Servicing Plan Review - D07-12-25-0040
Geotechnical Report2025-08-14 - APPROVED Geotechnical Investigation - D07-12-25-0040
Landscape Plan2025-06-04 - Landscape Drawings - D07-12-25-0040
Landscape Plan2025-07-29 - Landscape Plans - D07-12-25-0040
Landscape Plan2025-08-11 - Landscape Plans - D07-12-25-0040
Landscape Plan2025-08-14 - APPROVED Landscape Plans Technical Details - D07-12-25-0040
Landscape Plan2025-08-14 - APPROVED Landscape Plan P103 - D07-12-25-0040
Landscape Plan2025-08-14 - APPROVED Landscape Plan P102 - D07-12-25-0040
Landscape Plan2025-08-14 - APPROVED Landscape Plan P101 - D07-12-25-0040
Noise Study2025-06-04 - Stationary Noise Assessment - D07-12-25-0040
Noise Study2025-03-28 - Traffic Noise Final - D07-12-25-0040
Noise Study2025-07-29 - Stationary Noise Assessment - D07-12-25-0040
Noise Study2025-08-11 - Stationary Noise Study - D07-12-25-0040
Noise Study2025-08-14 - APPROVED Traffic Noise Final - D07-12-25-0040
Noise Study2025-08-14 - APPROVED Stationary Noise Study - D07-12-25-0040
Notification2025-11-13 - Commence Work Notification - Registration of Agreement - D07-12-25-0040
Planning2025-06-27 - Zoning Confirmation Report -D07-12-25-0040
Planning2025-08-11 - Zoning Confirmation Report - D07-12-25-0040
Shadow Study2025-06-26 - Fire Hydrant Coverage Area - D07-12-25-0040
Site Servicing2025-06-04 - Site Servicing & SWM Report - D07-12-25-0040
Site Servicing2025-08-14 - APPROVED Site Servicing Plan - D07-12-25-0040
Site Servicing2025-08-14 - APPROVED Site Servicing & SWM Report - D07-12-25-0040
Surveying2025-03-28 - Survey - D07-12-25-0040
Transportation Analysis2025-03-28 - Transportation Impact Assessment - D07-12-25-0040
Transportation Analysis2025-07-29 - Revised TIA - D07-12-25-0040
Transportation Analysis2025-08-14 - APPROVED Transportation Impact Assessment - D07-12-25-0040
Tree Information and Conservation2025-06-04 - Tree Conservation Report - D07-12-25-0040
Tree Information and Conservation2025-08-14 - APPROVED Tree Conservation Report - D07-12-25-0040
Tree Information and Conservation2025-10-22 - Tree Conservation Report - D07-12-25-0040
2025-06-26 - Pre Development Drainage Areas - D07-12-25-0040
2025-06-26 - Post Development Drainage Areas - D07-12-25-0040
2025-06-04 - Construction Site Mobilization - D07-12-25-0040
2025-06-04 - Area Calculations - D07-12-25-0040
2025-03-28 - Phase I - Environmental Site Assessment Update - D07-12-25-0040
2025-03-28 - Phase I - Environmental Site Assessment - D07-12-25-0040
2025-03-28 - Parking Study - D07-12-25-0040
2025-08-14 - APPROVED Site Grading and Drainage, Erosion and Sediment Control - D07-12-25-0040
2025-08-14 - APPROVED Garbage Enclosure - D07-12-25-0040