Ottawa Development Projects

1053-1145 March Rd./1101 Spoor St.#

Last updated: 2026-03-20 · ID: D07-12-25-0039

Summary#

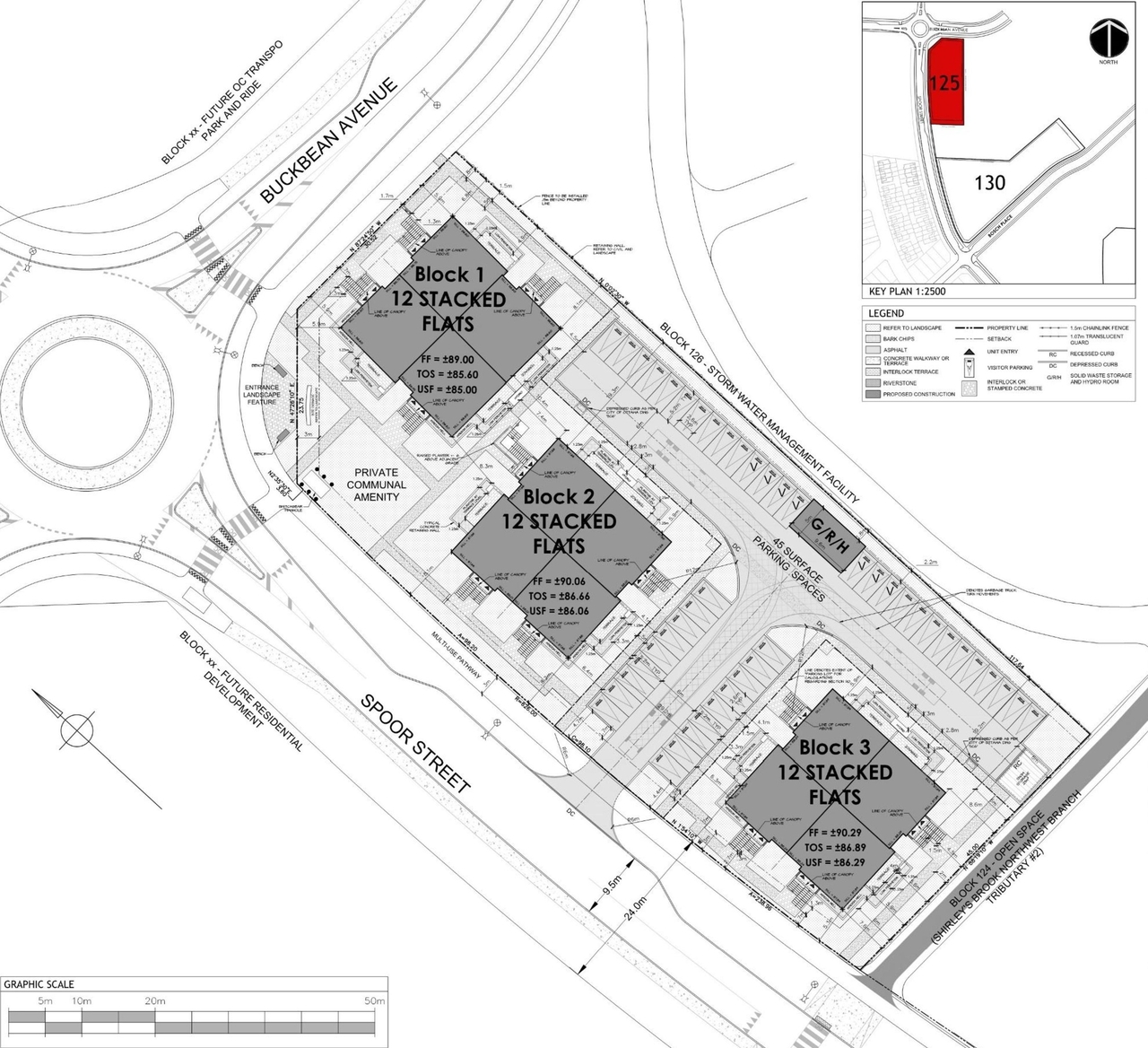
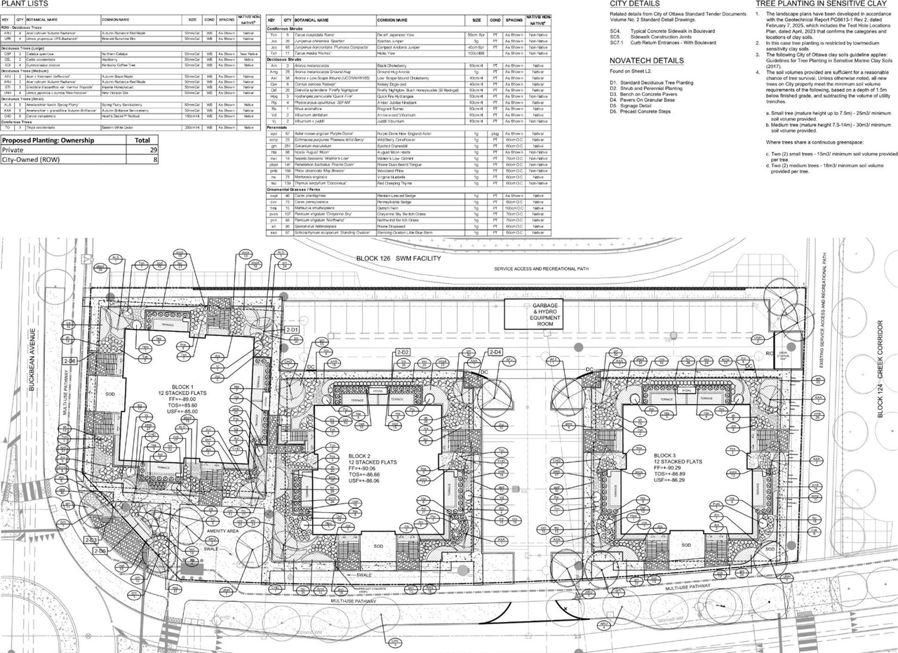
A Site Plan Control application has been submitted for a Planned Unit Development consisting of three stacked dwellings. Each three-storey building will contain 12 dwelling units, for 36 total dwelling units. The proposed development includes 45 surface parking spaces, internal walkways, and a communal amenity area.

Status
Inactive (Signed Letter of Undertaking Received)

Building Scale (Max.) Based on elevation drawings. Values may be approximate. See sources for exact figures.
Low-rise · 2 storeys

Renders#

Location#

Select a marker to view the address.

Site Plans, Elevations and Floor Plans#

Additional Information#

Date Initiated2025-03-27
WardWard 4 - Cathy Curry
All Addresses1053 March Rd.
1075 March Rd.
1145 March Rd.
1101 Spoor St.

Documents#

TypeDocument
Application Summary2025-05-30 - Application Summary - D07-12-25-0039
Architectural Plans2025-05-15 - Site Plan - D07-12-25-0039
Architectural Plans2025-05-15 - General Plan of Services - D07-12-25-0039
Architectural Plans2025-05-15 - Elevations and Sections Water Storage and Hydro - D07-12-25-0039
Architectural Plans2025-05-15 - Construction Management Plan - D07-12-25-0039
Architectural Plans2025-05-15 - Architectural Elevations - D07-12-25-0039
Architectural Plans2025-03-27 - 4M-Plan - D07-12-25-0039
Architectural Plans2025-07-16 - APPROVED Site Plan Approval Report - D07-12-25-0039
Architectural Plans2025-07-16 - APPROVED Elevations - D07-12-25-0039
Architectural Plans2025-08-20 - Site Plan - D07-12-25-0039
Architectural Plans2025-08-20 - Preliminary Construction Management Plan 3 - D07-12-25-0039
Architectural Plans2025-08-20 - Preliminary Construction Management Plan 2 - D07-12-25-0039
Architectural Plans2025-08-20 - Preliminary Construction Management Plan 1 - D07-12-25-0039
Architectural Plans2025-08-20 - Notes & Details - D07-12-25-0039
Architectural Plans2025-08-20 - General Plan of Services - D07-12-25-0039
Architectural Plans2025-08-20 - Garbage Enclosure Elevations - D07-12-25-0039
Architectural Plans2025-10-14 - Site Plan - D07-12-25-0039
Architectural Plans2025-10-14 - Construction Management Plan 03 - D07-12-25-0039
Architectural Plans2025-10-14 - Construction Management Plan 02 - D07-12-25-0039
Architectural Plans2025-10-14 - Construction Management Plan 01 - D07-12-25-0039
Architectural Plans2025-11-19 - Site Plan - D07-12-25-0039
Architectural Plans2025-11-19 - Notes and Details 01 - D07-12-25-0039
Architectural Plans2025-11-19 - Notes and Details - D07-12-25-0039
Architectural Plans2025-11-19 - General Plan of Services - D07-12-25-0039
Architectural Plans2025-11-19 - Elevations and Sections - Waste Storage and Hydro - D07-12-25-0039
Architectural Plans2025-11-19 - Building Elevations - D07-12-25-0039
Architectural Plans2025-11-24 - Notes and Details 02 - D07-12-25-0039
Architectural Plans2025-11-24 - Notes and Details 01 - D07-12-25-0039
Architectural Plans2025-11-24 - Elevations and Sections - Waste Storage and Hydro - D07-12-25-0039
Architectural Plans2026-01-26 - APPROVED Site Plan Approval Report - D07-12-25-0039
Architectural Plans2026-01-26 - APPROVED Site Plan - D07-12-25-0039
Architectural Plans2026-01-26 - APPROVED Landscape Plans - D07-12-25-0039
Architectural Plans2026-01-26 - APPROVED Grading Plan - D07-12-25-0039
Architectural Plans2026-01-26 - APPROVED General Plan of Services - D07-12-25-0039
Architectural Plans2026-01-26 - APPROVED Erosion Sediment Plan - D07-12-25-0039
Architectural Plans2026-01-26 - APPROVED Elevations and Sections Waste Storage and Hydro - D07-12-25-0039
Architectural Plans2026-01-26 - APPROVED Building Elevations - D07-12-25-0039
Architectural Plans2026-03-18 - Grading Plan - D07-12-25-0039
Architectural Plans2026-03-18 - General Plan of Services - D07-12-25-0039
Architectural Plans2026-03-18 - Erosion & Sediment Control Plan - D07-12-25-0039
Civil Engineering Report2025-10-14 - Civil Plans - D07-12-25-0039
Design Brief2025-03-27 - Urban Design Brief - D07-12-25-0039
Erosion And Sediment Control Plan2025-05-15 - Erosion and Sediment Control Plan - D07-12-25-0039
Erosion And Sediment Control Plan2025-07-16 - APPROVED Erosion and Sediment Control Plan - D07-12-25-0039
Erosion And Sediment Control Plan2025-08-20 - Erosion & Sediment Control Plan - D07-12-25-0039
Erosion And Sediment Control Plan2025-11-19 - Erosion and Sediment Control Plan - D07-12-25-0039
Geotechnical Report2025-05-15 - Landscaping Plan - D07-12-25-0039
Geotechnical Report2025-05-15 - Grading Plan - D07-12-25-0039
Geotechnical Report2025-05-15 - Geotechnical Investigation - D07-12-25-0039
Geotechnical Report2025-08-20 - Grading Plan - D07-12-25-0039
Geotechnical Report2025-08-20 - Geotechnical Investigation - D07-12-25-0039
Geotechnical Report2025-11-19 - Grading Plan - D07-12-25-0039
Landscape Plan2025-08-20 - Landscape Plan - D07-12-25-0039
Landscape Plan2025-11-19 - Landscape Plans - D07-12-25-0039
Landscape Plan2025-12-15 - Landscape Plans - D07-12-25-0039
Noise Study2025-03-27 - Noise Impact Feasibility Report - D07-12-25-0039
Planning2025-03-27 - Zoning Confirmation Report - D07-12-25-0039
Rendering2025-05-15 - Architectural Renderings - D07-12-25-0039
Rendering2025-11-19 - Renderings - D07-12-25-0039
Site Servicing2025-05-15 - Servicing and Stormwater Management Report - D07-12-25-0039
Site Servicing2025-08-20 - Servicing & Stormwater Management Report - D07-12-25-0039
Tree Information and Conservation2025-03-27 - Environmental Impact Statement & Tree Conservation Report- Addendum - D07-12-25-0039
2025-05-15 - Note Details - D07-12-25-0039
2025-03-27 - Phase I - Environmental Site Assessment Update - D07-12-25-0039
2025-10-14 - Retaining Wall Design - D07-12-25-0039
2025-11-19 - Redi-Rock Retaining Wall Design - D07-12-25-0039
2026-01-26 - APPROVED Retaining Wall Design - D07-12-25-0039
2026-01-26 - APPROVED Notes & Details 02 - D07-12-25-0039
2026-01-26 - APPROVED Notes & Details 01 - D07-12-25-0039
2026-03-18 - Notes & Details 01 - D07-12-25-0039
2026-03-18 - Notes & Details 00 - D07-12-25-0039