110-116 York St.#
Last updated: 2026-04-01 · ID: D07-12-25-0038
Summary#
The City of Ottawa has received an Official Plan and Zoning By-law Amendment and Site Plan Control application to permit a 17-storey high-rise hotel addition containing assembly space and approximately 154 hotel rooms.
Status
File Pending (Application File Pending)
Building Scale (Max.)
Based on elevation drawings. Values may be approximate. See sources for exact figures.
High-rise · 17 storeys
· 58.66 m
Renders#
Location#
Select a marker to view the address.
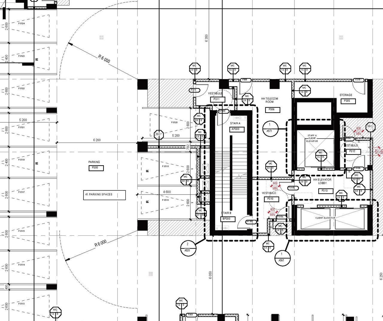
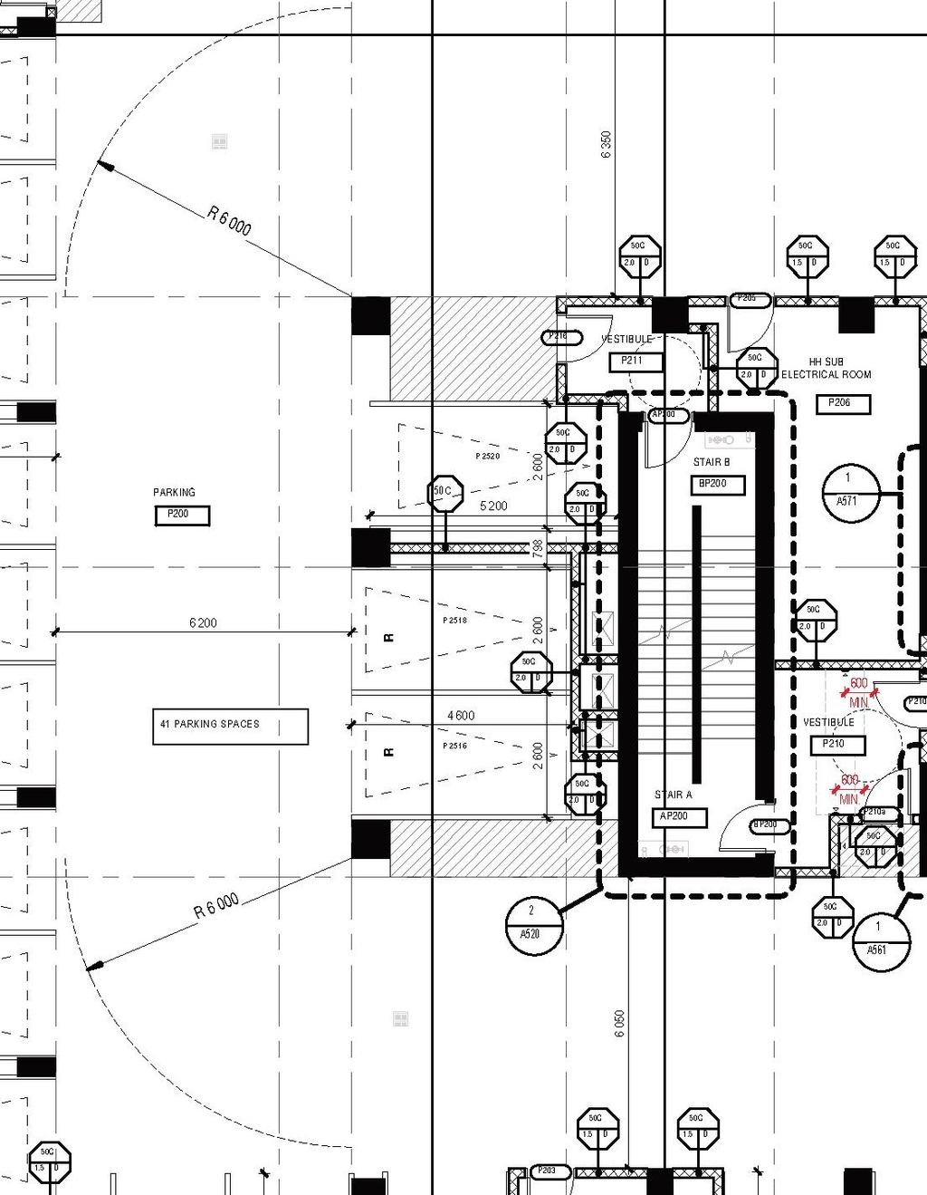
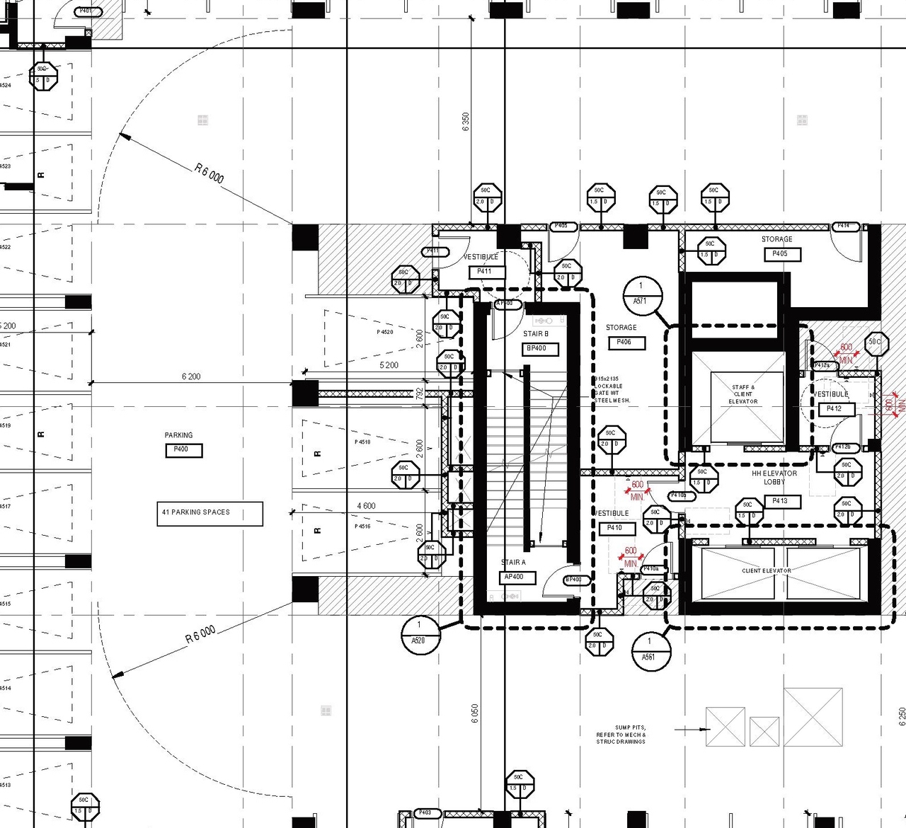
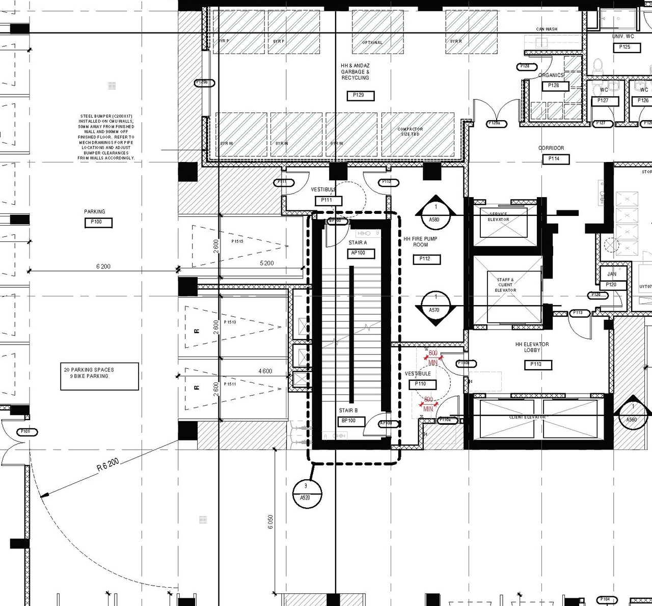
Site Plans, Elevations and Floor Plans#
Additional Information#
| Date Initiated | 2025-03-24 |
| Ward | Ward 12 - Stéphanie Plante |
| All Addresses | 110 York St. 116 York St. 137 George St. |





























