1981 Century Rd. W.#
Last updated: 2025-10-31 · ID: D07-12-25-0033
Summary#
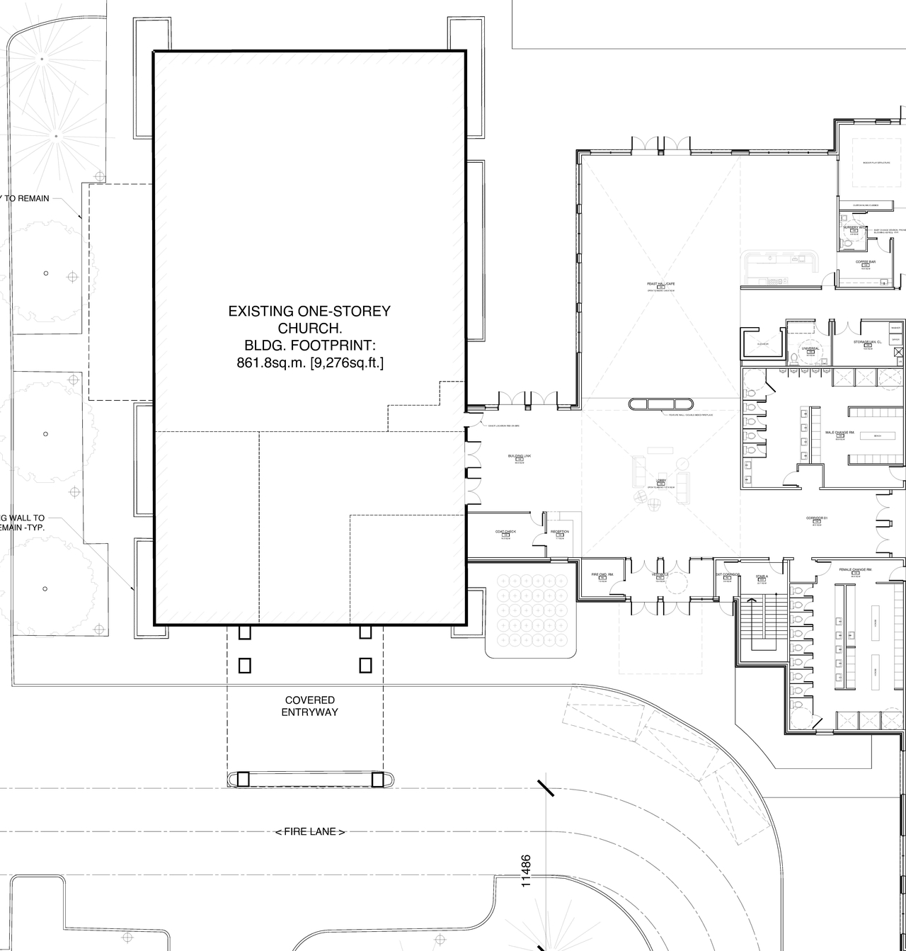
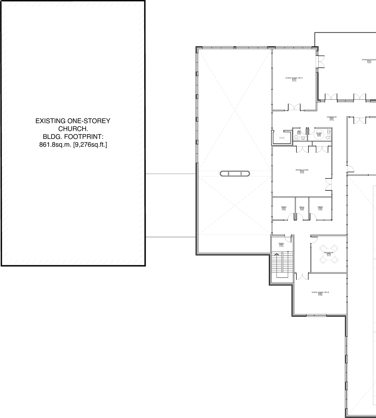
A Site Plan Control application to construct a two-storey addition with a total Gross Floor Area of 1,975 square metres. The addition proposes to expand the existing place of worship and add a dual-purpose assembly hall and community centre space. The parking lot is proposed to be expanded from 86 spaces to 188 spaces.
Status
File Pending (Application File Pending)
Building Scale (Max.)
Based on elevation drawings. Values may be approximate. See sources for exact figures.
Low-rise · 2 storeys
· 11.13 m
Location#
Select a marker to view the address.
Site Plans, Elevations and Floor Plans#
Additional Information#
| Date Initiated | 2025-03-13 |
| Ward | Ward 21 - David Brown |



