1146 Snow St.#
Last updated: 2026-03-07 · ID: D07-12-25-0028
Summary#
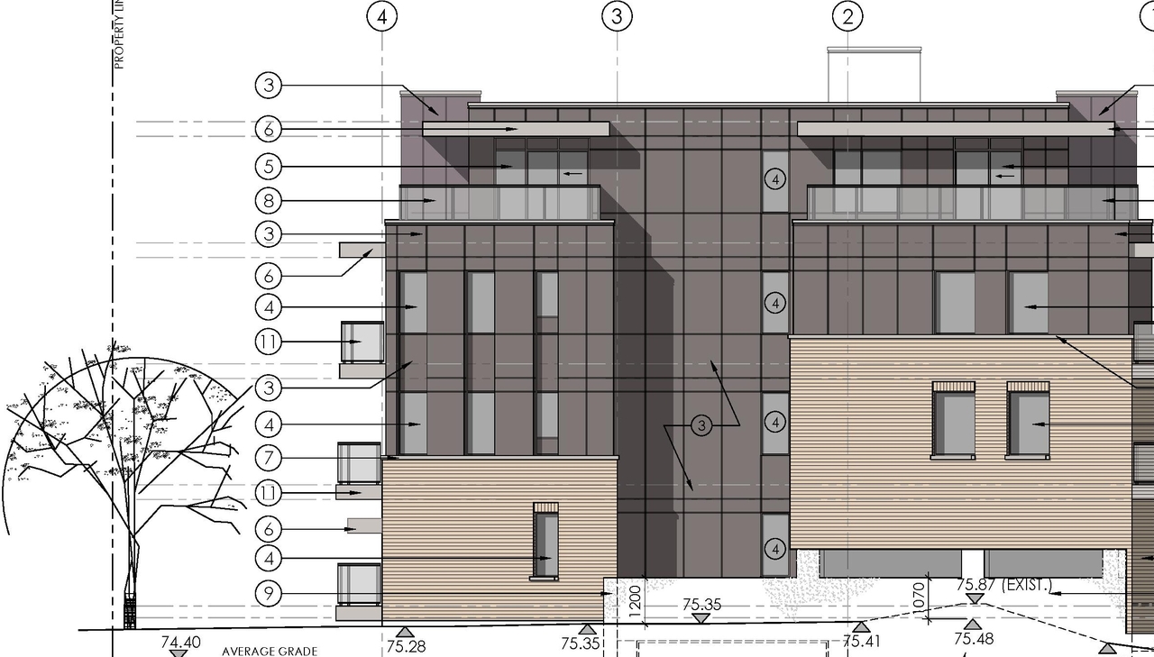
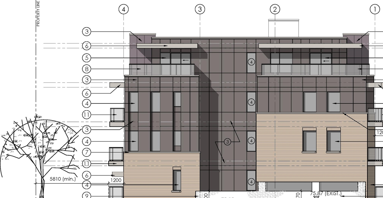
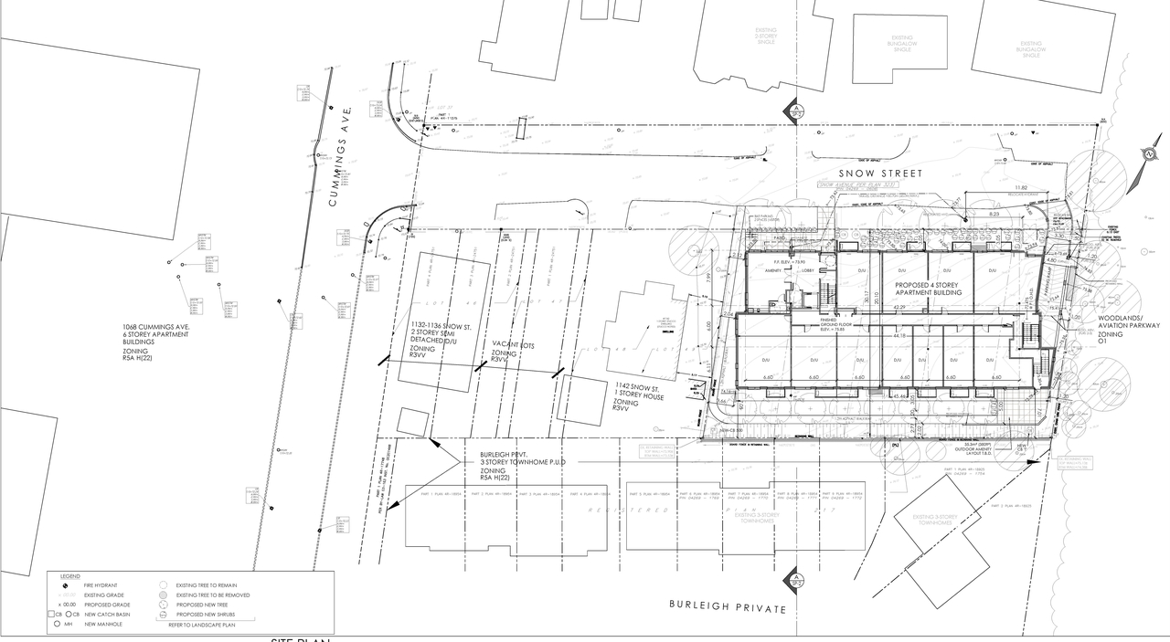
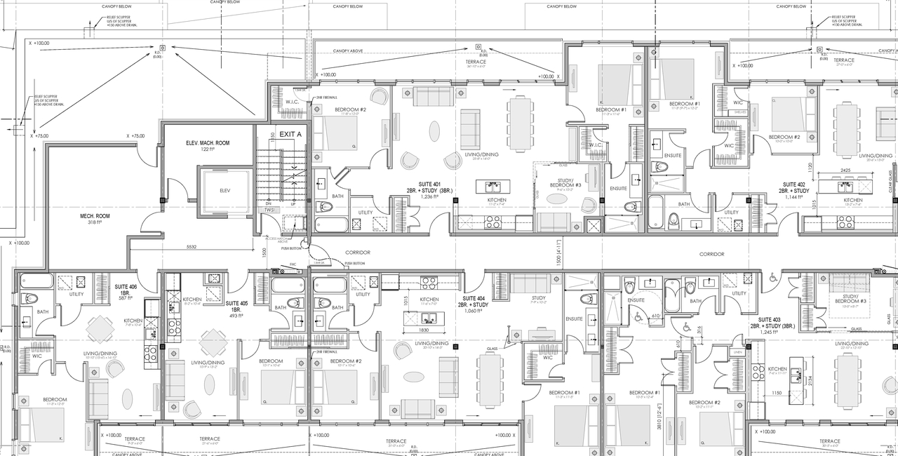
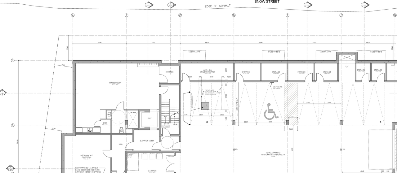
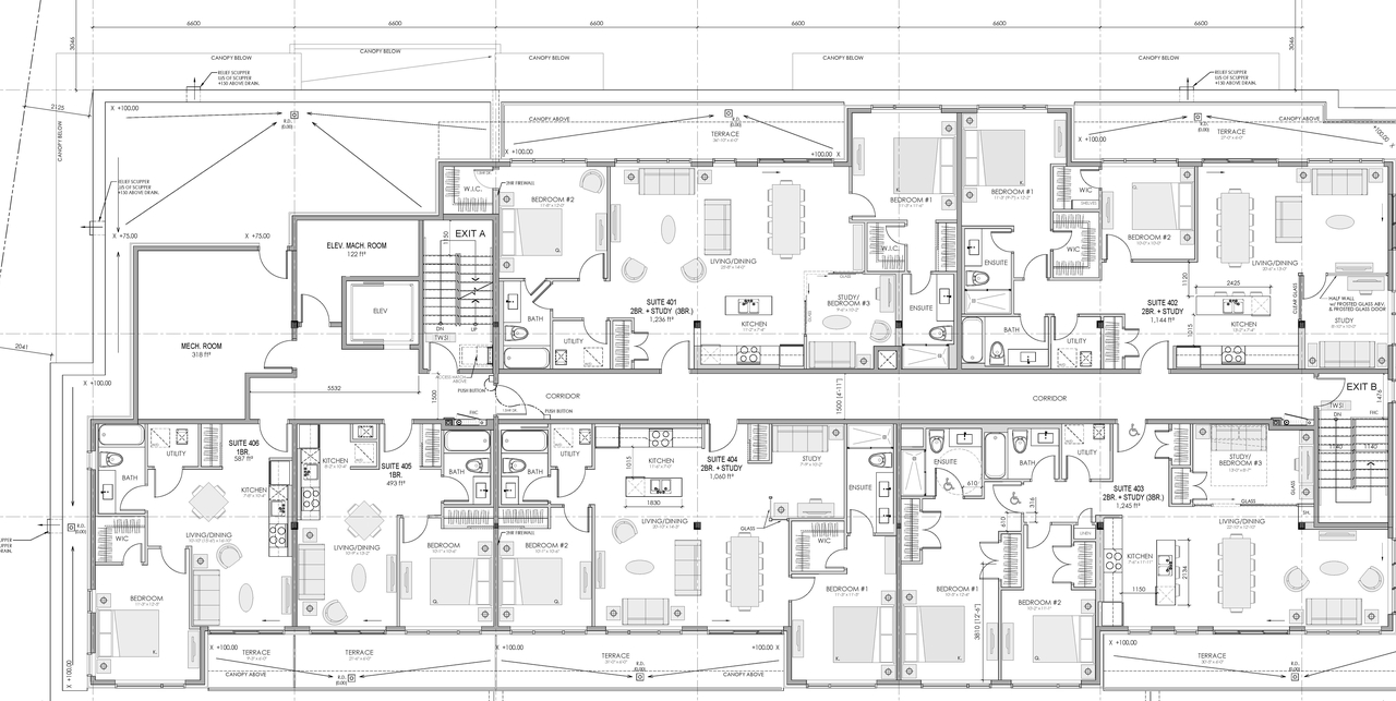
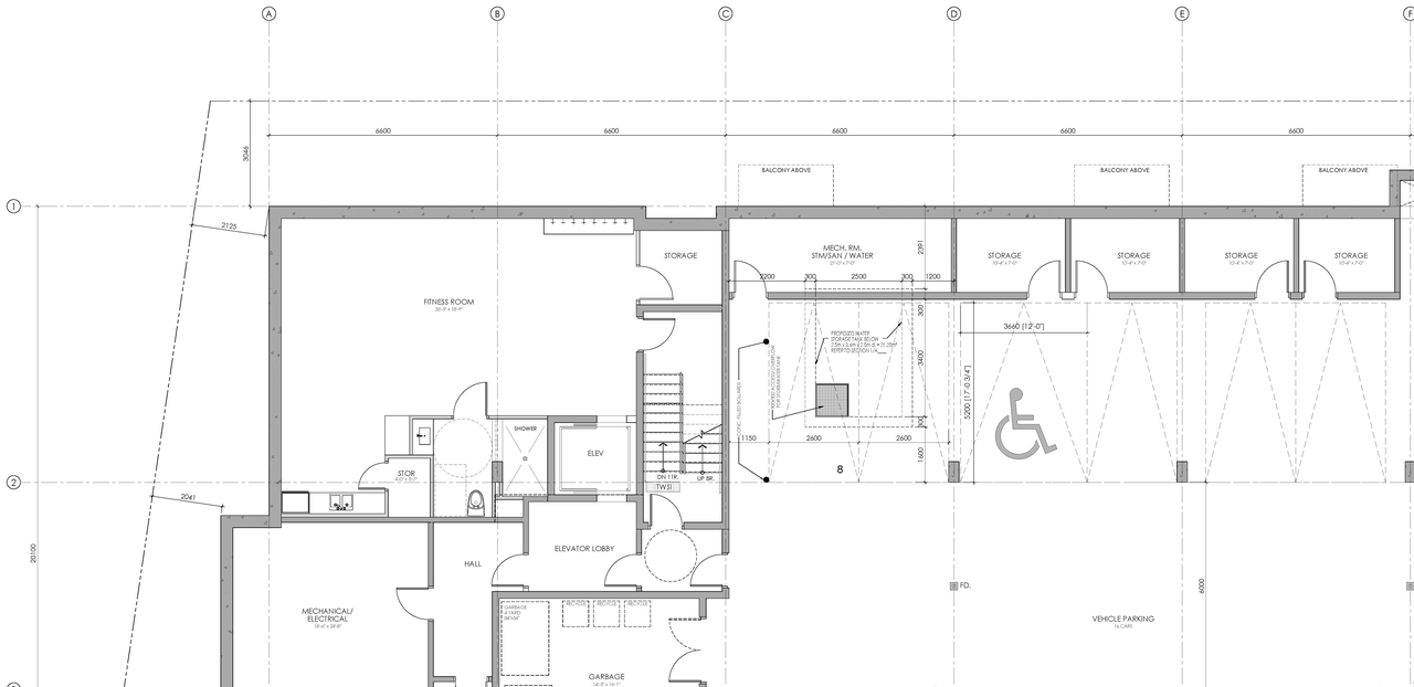
A Site Plan Control application to construct a four-storey, low rise apartment building. A total of 43 units and 19 underground vehicle parking spaces are proposed with 26 bicycle parking spaces.
Status
File Pending (Application File Pending)
Building Scale (Max.)
Based on elevation drawings. Values may be approximate. See sources for exact figures.
Mid-rise · 4 storeys
· 13 m
Data Quality Note
Height was partially estimated using visual scale. This may be approximate.
Renders#
Location#
Select a marker to view the address.
Site Plans, Elevations and Floor Plans#
Additional Information#
| Date Initiated | 2025-03-07 |
| Ward | Ward 11 - Tim Tierney |






















