379 Cooper St.#
Last updated: 2026-01-09 · ID: D07-12-25-0027
Summary#
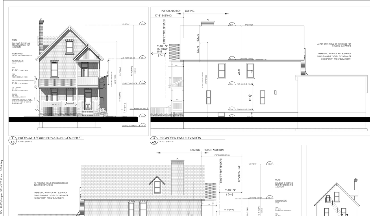
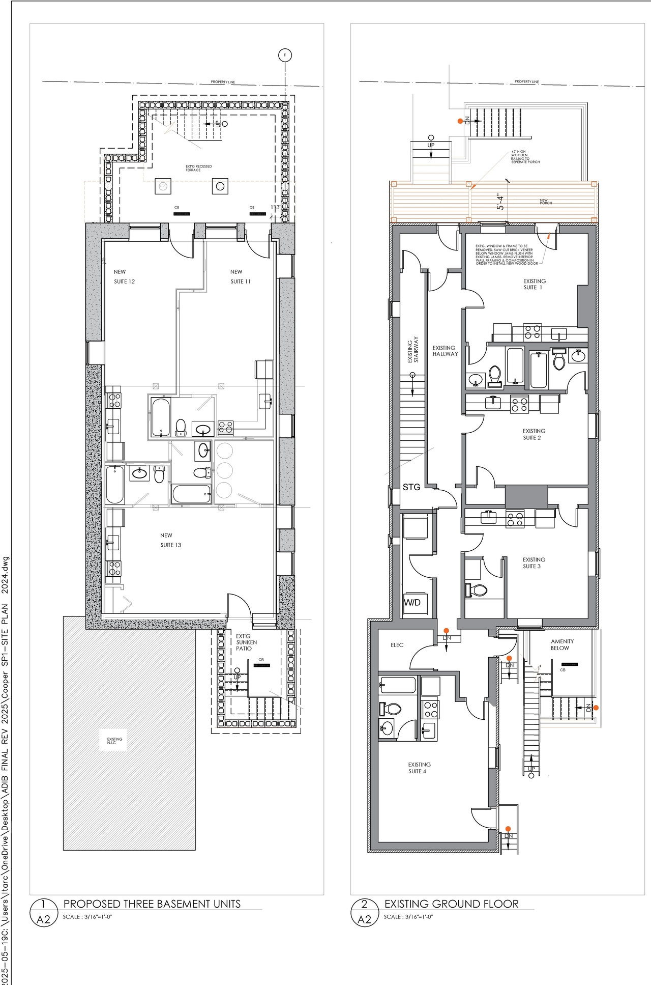
Proposed addition of 3 new dwelling units in the lower level of an existing 10-unit building. No exterior modifications proposed save for landscaping and facade upgrades. Une demande de révision de la réglementation du plan dimplantation a été présentée en vue dajouter trois logements au niveau inférieur dun immeuble résidentiel patrimonial de trois étages et abritant déjà dix logements.
Status
Inactive (Notice of Decision Sent)
Location#
Select a marker to view the address.
Site Plans, Elevations and Floor Plans#
Additional Information#
| Date Initiated | 2025-03-07 |
| Ward | Ward 14 - Ariel Troster |


