5580 Manotick Main St.#
Last updated: 2026-02-04 · ID: D07-12-25-0022
Summary#
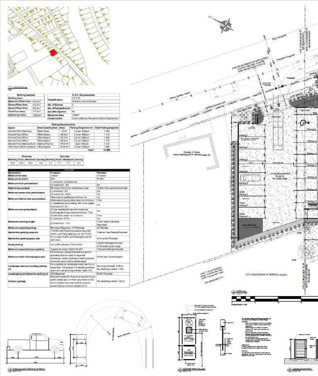
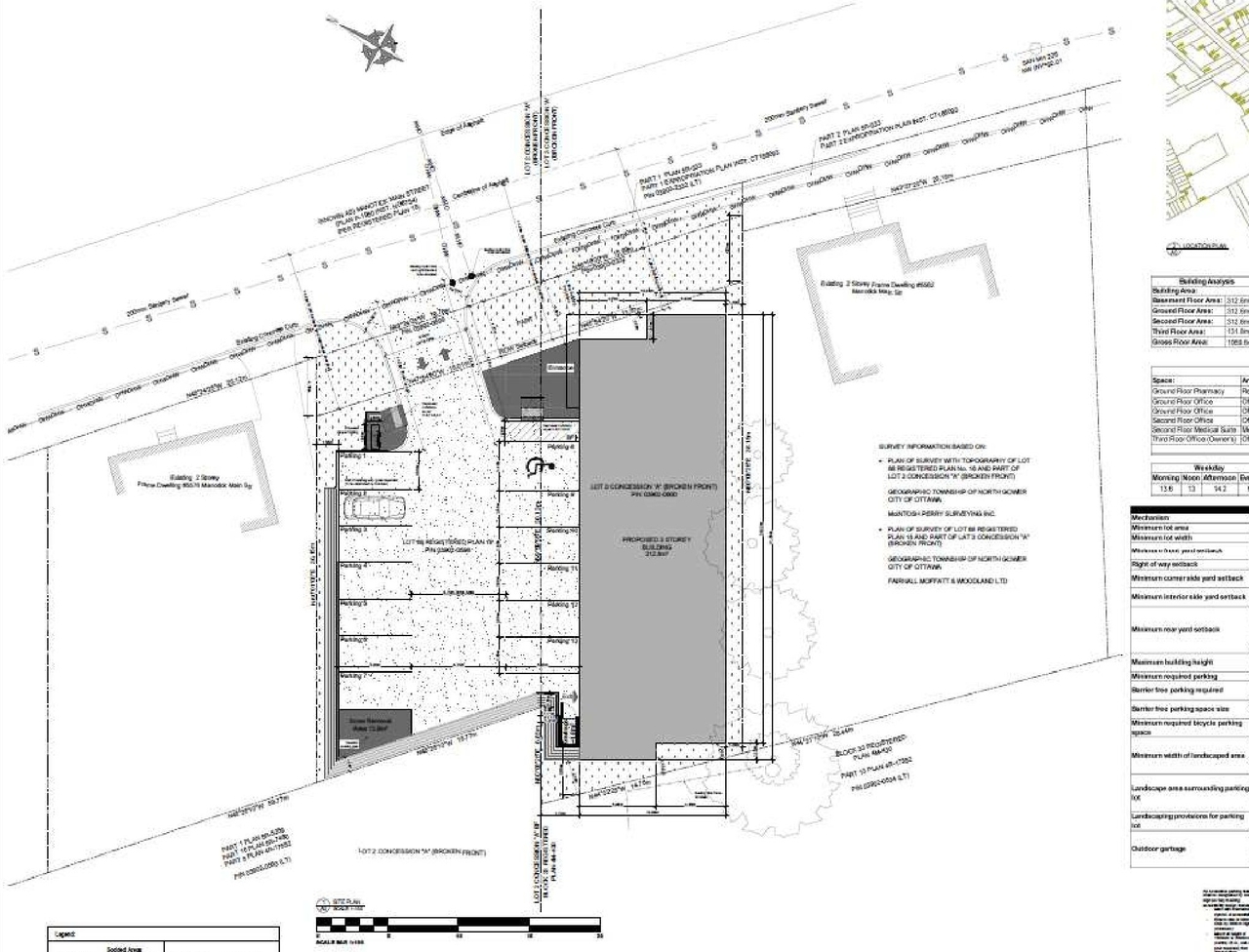
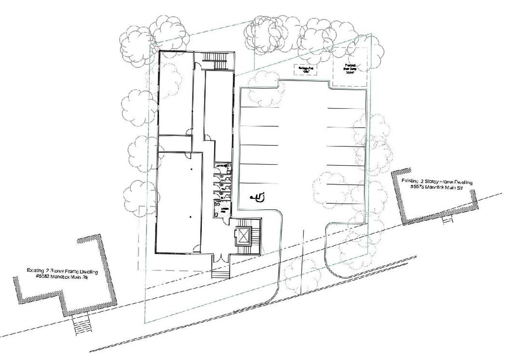
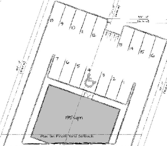
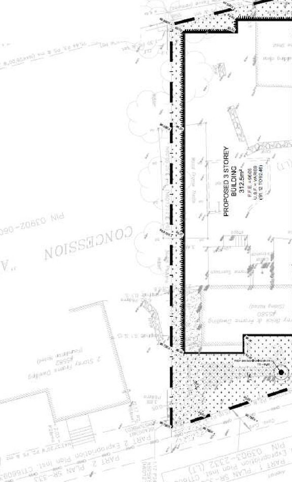
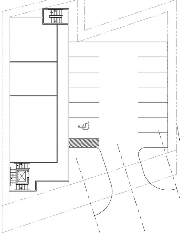
The City of Ottawa has received a site plan control application to construct a three-storey commercial pharmacy and medical office building. The building will have an approximate gross floor area of 1,070 m2 with a total of 15 vehicle parking spots.
Status
Inactive (Notice of Decision Sent)
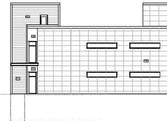
Building Scale (Max.)
Based on elevation drawings. Values may be approximate. See sources for exact figures.
Low-rise · 3 storeys
· 8.7 m
Data Quality Note
Height was partially estimated using visual scale. This may be approximate.
Renders#
Location#
Select a marker to view the address.
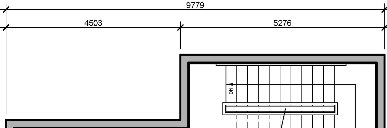
Site Plans, Elevations and Floor Plans#
Additional Information#
| Date Initiated | 2025-03-03 |
| Ward | Ward 21 - David Brown |














































