1660 Merivale Rd.#
Last updated: 2026-03-17 · ID: D07-12-25-0019
Summary#
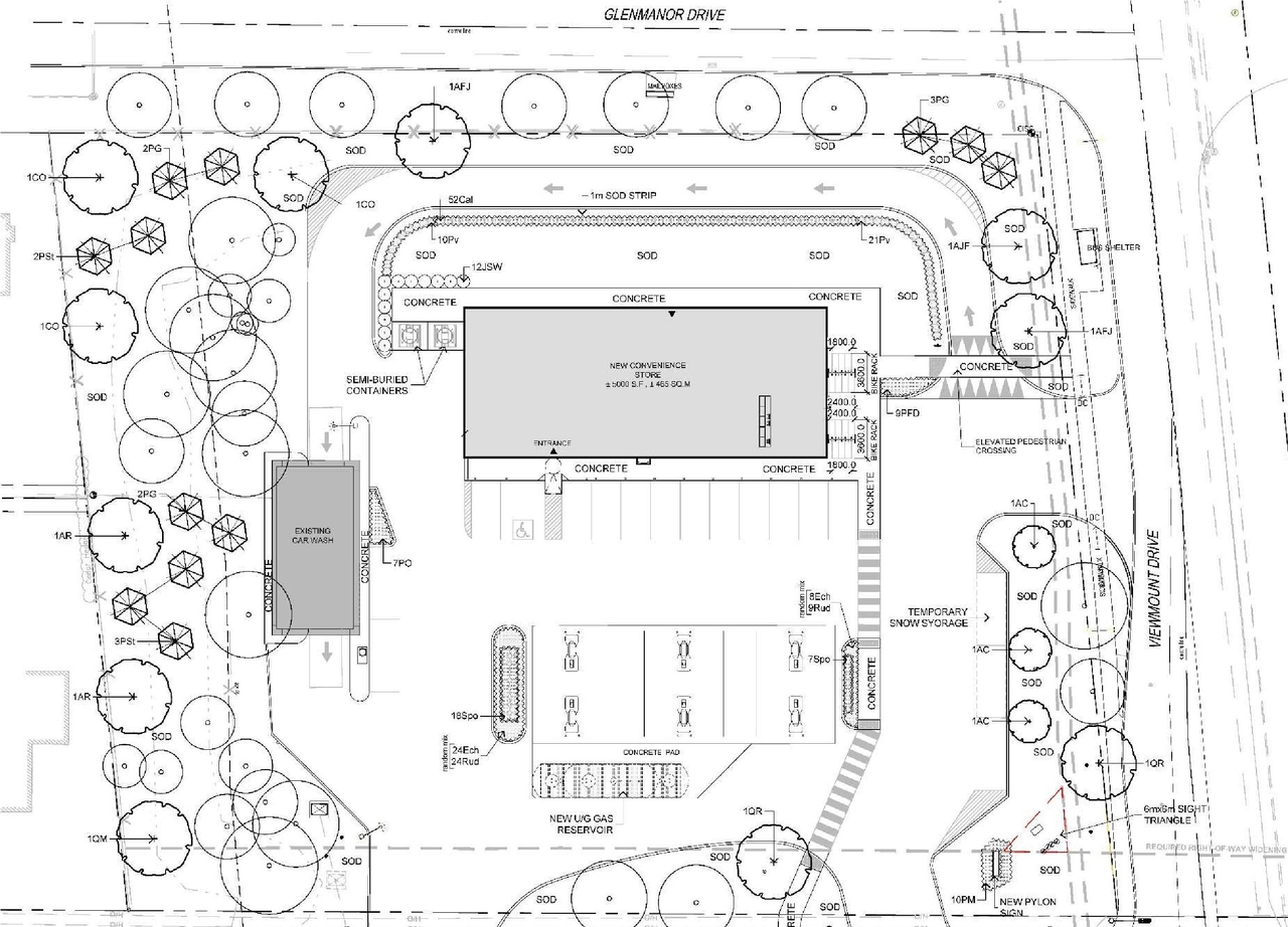
The City of Ottawa has received a Site Plan Control application for the redevelopment of an existing gas station to include a new convenience store and the relocation of gas pumps and fuel tank. A total of 17 parking spaces and 14 bicycle parking spaces is being proposed.
Status
File Pending (Application File Pending)
Building Scale (Max.)
Based on elevation drawings. Values may be approximate. See sources for exact figures.
Low-rise · 1 storey
· 24 m
Renders#
Location#
Select a marker to view the address.
Site Plans, Elevations and Floor Plans#
Additional Information#
| Date Initiated | 2025-02-24 |
| Ward | Ward 8 - Laine Johnson |





