265 Carling Ave.#
Last updated: 2026-01-09 ยท ID: D07-12-25-0015
Summary#
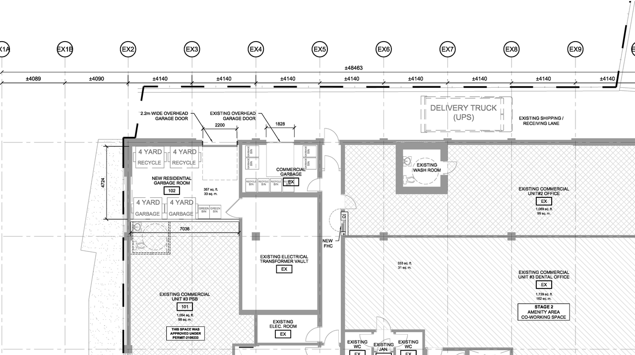
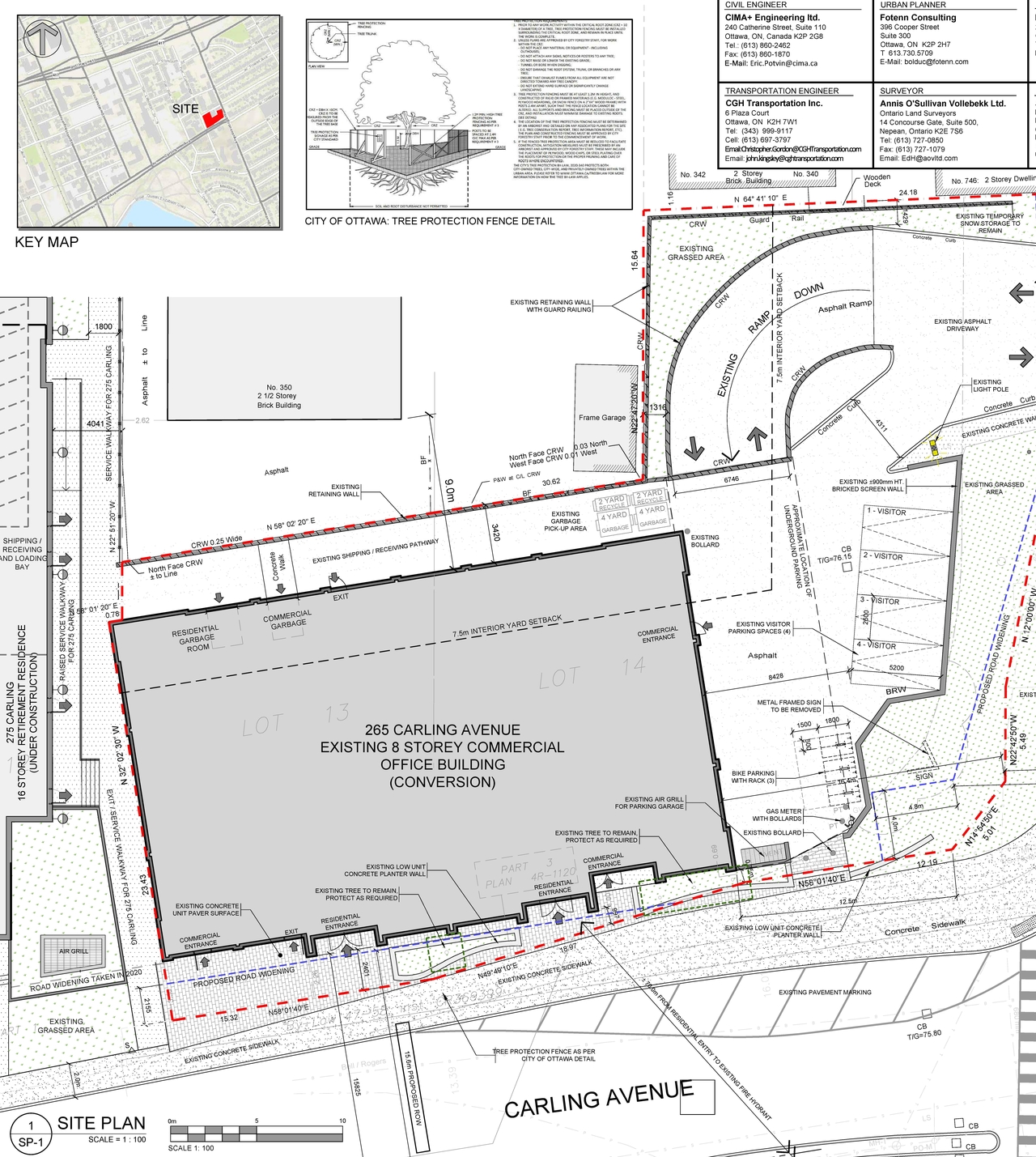
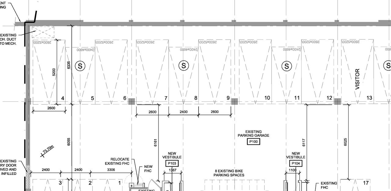
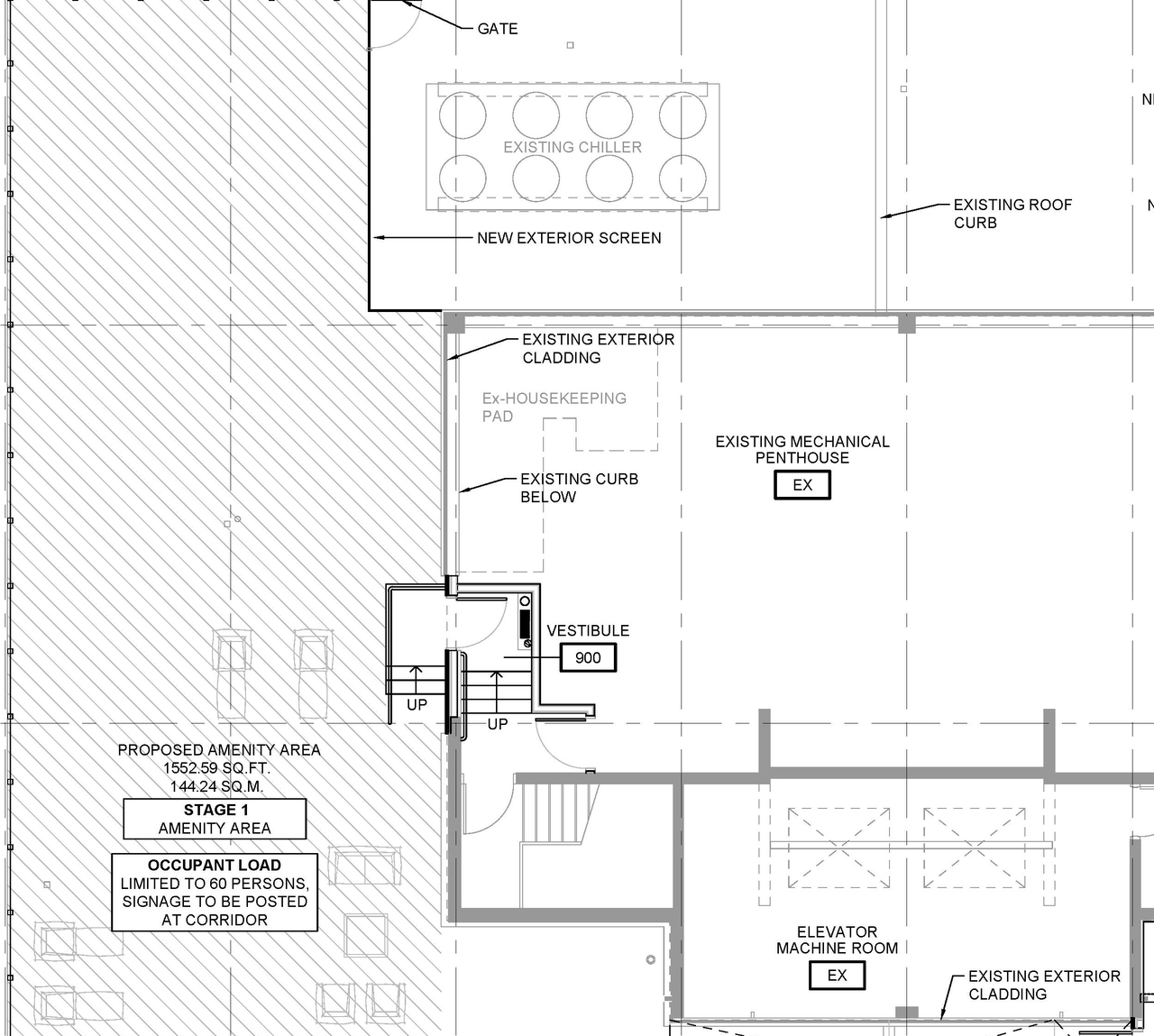
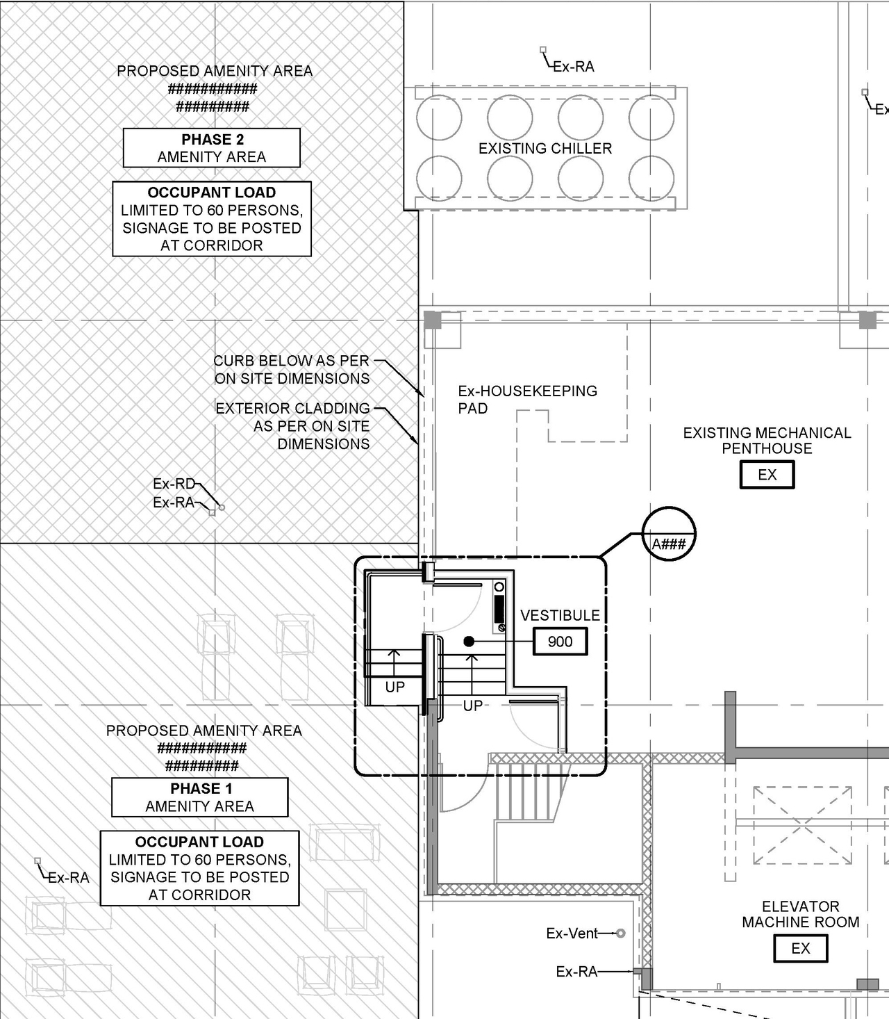
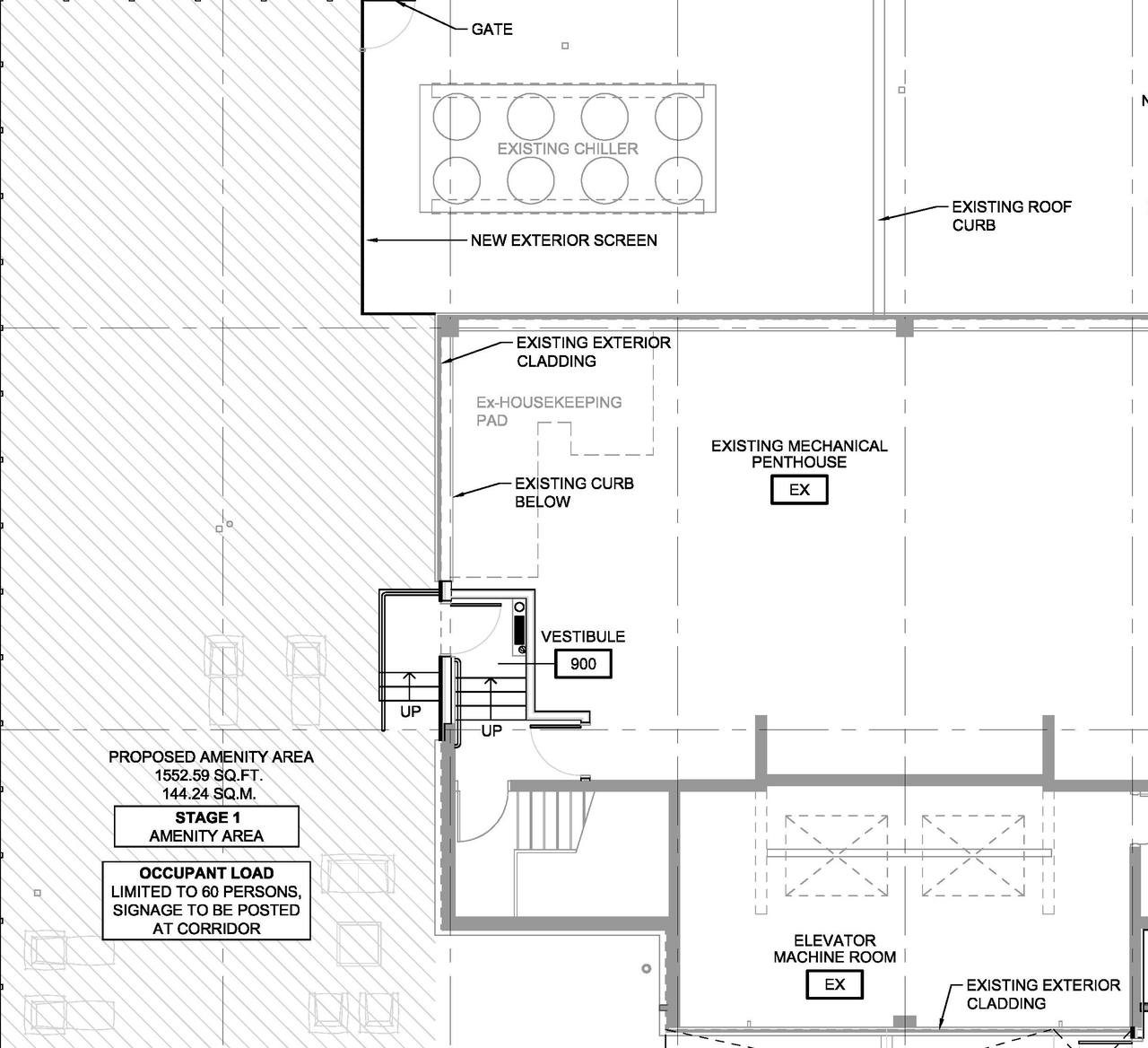
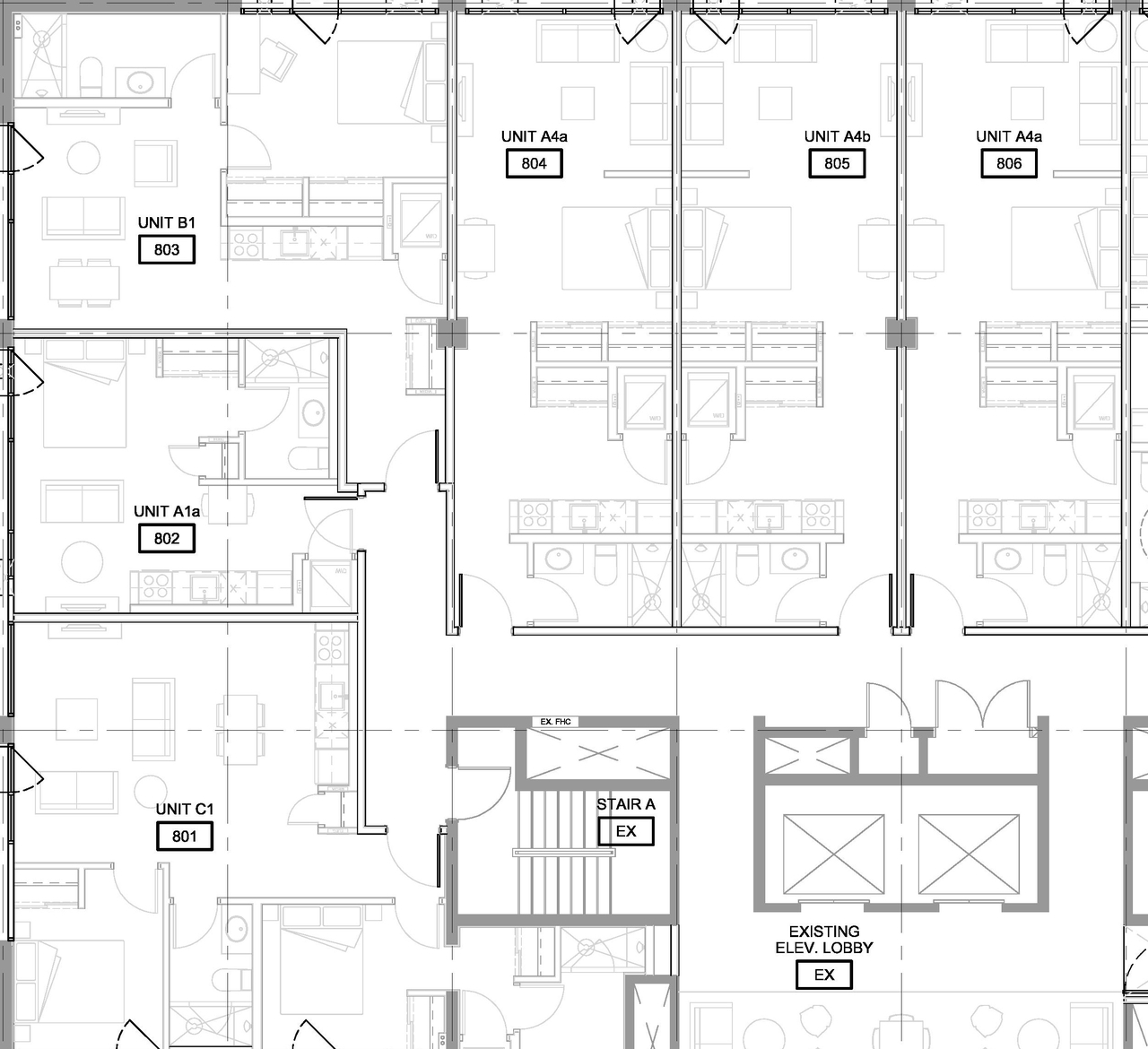
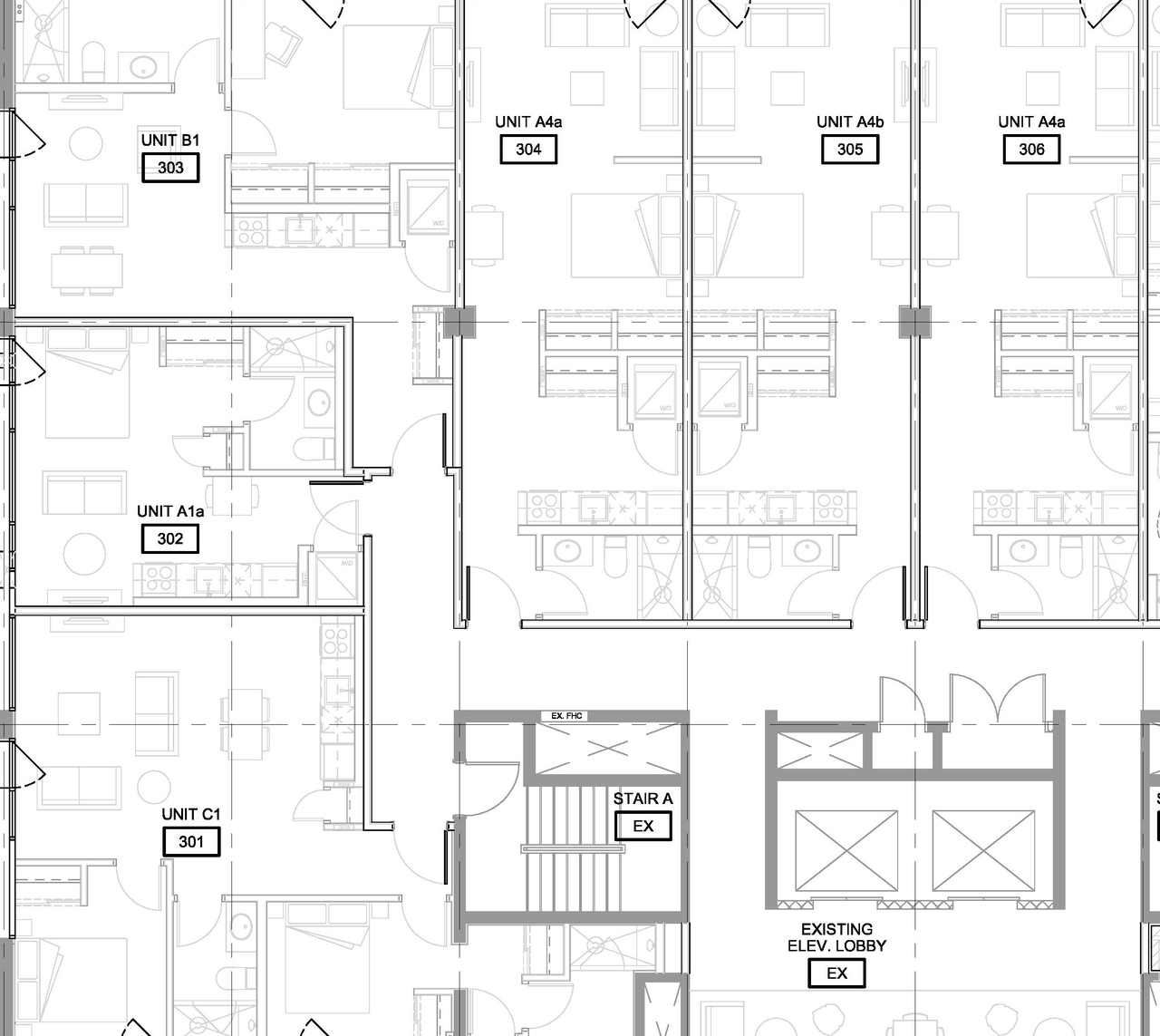
A Site Plan Control application is submitted to convert the existing 8-storey commercial use building into a mixed-use building consisting of main-floor commercial uses and residential above.A total of 70 residential units will be provided between 2nd and 8th floors. A rooftop amenity area is also proposed. The ground floor will maintain approximately 187 SQM of GFA. Total of 35 vehicle parking and 35 bicycle parking spaces will be provided.
Status
Inactive (Notice of Decision Sent)
Renders#
Location#
Select a marker to view the address.
Site Plans, Elevations and Floor Plans#
Additional Information#
| Date Initiated | 2025-02-05 |
| Ward | Ward 17 - Shawn Menard |














