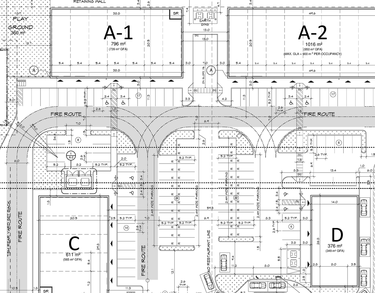
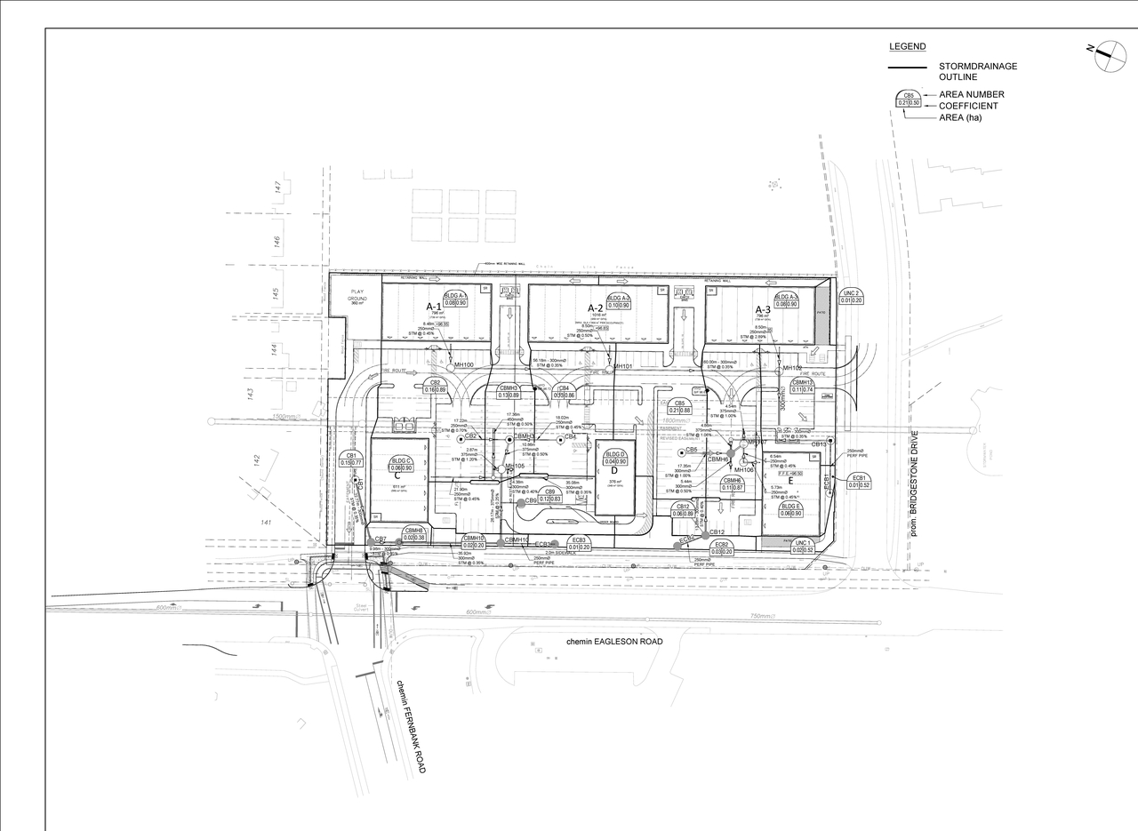
801 Eagleson Rd.#
Last updated: 2025-12-04 · ID: D07-12-25-0014
Summary#
To develop the site and construct a commercial plaza
Status
Inactive (Notice of Decision Sent)
Building Scale (Max.)
Based on elevation drawings. Values may be approximate. See sources for exact figures.
Low-rise · 1 storey
· 10.3 m
Data Quality Note
Height was partially estimated using visual scale. This may be approximate.
Renders#
Location#
Select a marker to view the address.
Site Plans, Elevations and Floor Plans#
Additional Information#
| Date Initiated | 2025-02-05 |
| Ward | Ward 23 - Allan Hubley |












