2405-2419 Mer-Bleue Rd.#
Last updated: 2026-01-13 · ID: D07-12-25-0012
Summary#
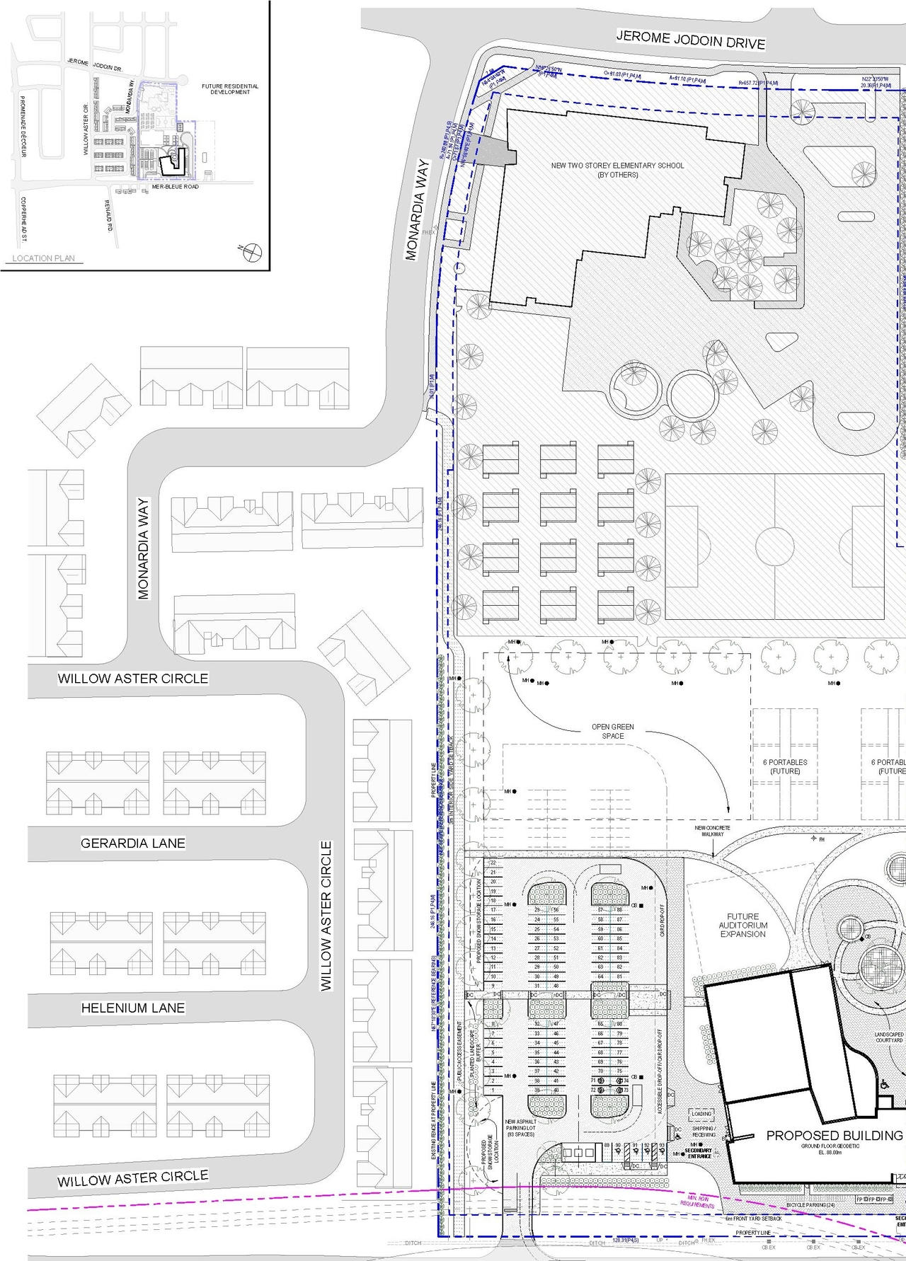
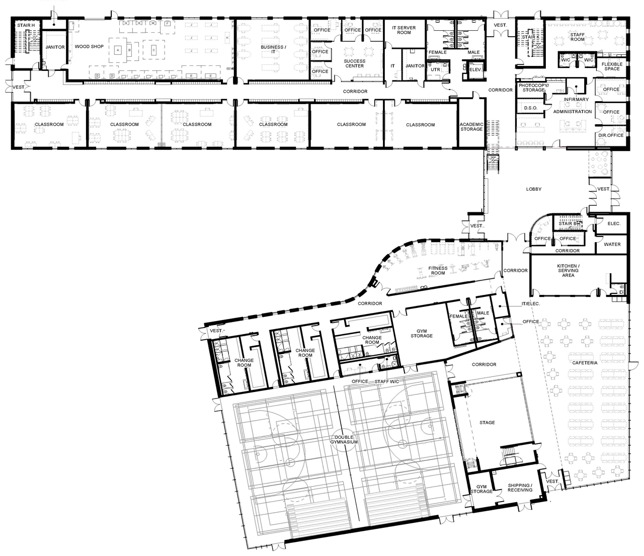
A Site Plan Control application has been received to construct a three-storey high school with approximately 7,873 sq. m of gross floor area. The proposed development will also accommodate a parking lot, a bus loop area, bicycle parking and an area for the future allocation of 12 portable classrooms.
Status
Post Approval (Receipt of Agreement from Owner Pending)
Building Scale (Max.)
Based on elevation drawings. Values may be approximate. See sources for exact figures.
Low-rise · 3 storeys
· 12.4 m
Renders#
Location#
Select a marker to view the address.
Site Plans, Elevations and Floor Plans#
Additional Information#
| Date Initiated | 2025-02-03 |
| Ward | Ward 19 - Catherine Kitts |
| All Addresses | 2405 Mer-Bleue Rd. 2419 Mer-Bleue Rd. |






