110 O’Connor St.#
Last updated: 2025-12-06 · ID: D07-12-25-0010
Summary#
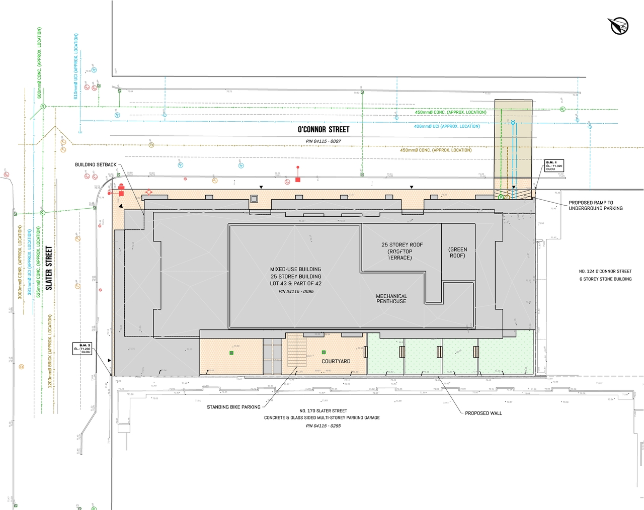
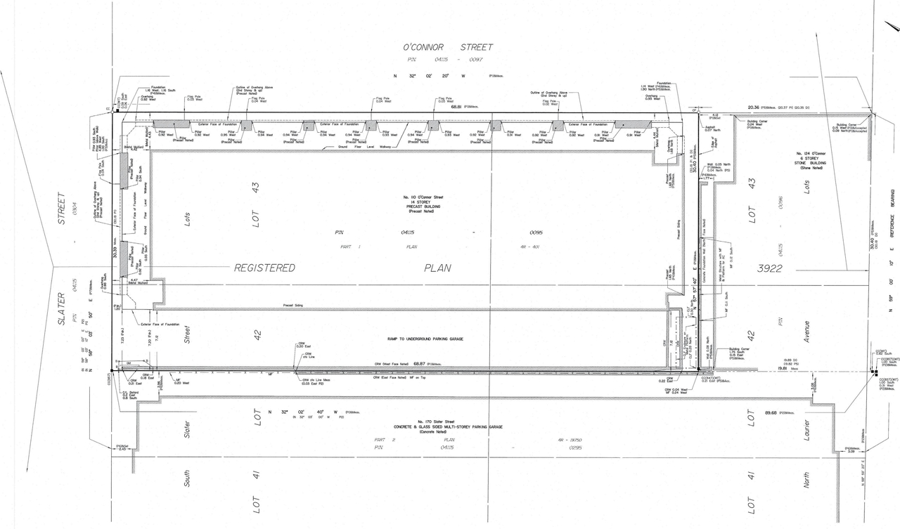
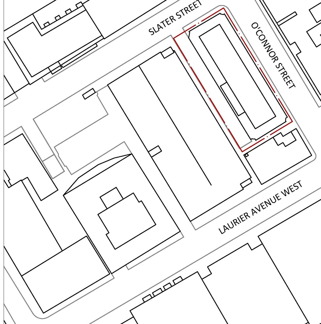
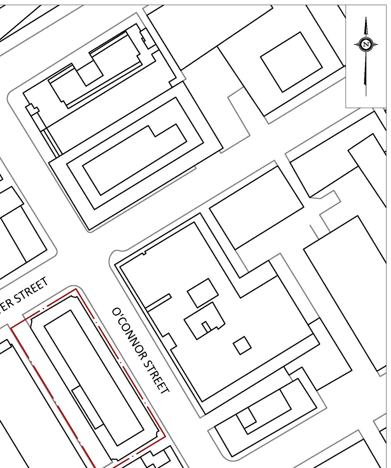
The future development is a mixed-use of 413 residential units over 25 storeys, with 454 m2 of commercial space on the ground floor. The site is bounded by O’Connor and Slater streets, as well as lots 124 O’Connor and 170 Slater. Application Numbers: PC2023-0282 ; PC2024-0305
Status
Active (On Circulation; Initial Submission Review)
Building Scale (Max.)
Based on elevation drawings. Values may be approximate. See sources for exact figures.
High-rise · 25 storeys
· 81.77 m
Renders#
Location#
Select a marker to view the address.
Site Plans, Elevations and Floor Plans#
Additional Information#
| Date Initiated | 2025-01-31 |
| Ward | Ward 14 - Ariel Troster |











































































