Ottawa Development Projects

150 Dun Skipper Dr.#

Last updated: 2025-12-24 · ID: D07-12-25-0005

Summary#

The City of Ottawa has received a Zoning By-law Amendment and Site Plan Control application to construct a Planned Unit Development consisting of two six-storey residential buildings with 237 dwelling units and a gross floor area of 17,075 square metres.

Status
Inactive (Notice of Decision Sent)

Building Scale (Max.) Based on elevation drawings. Values may be approximate. See sources for exact figures.
Mid-rise · 6 storeys · 18.18 m

Renders#

  • Rendering of building from page 20 of the file '2025-09-02 - Project Renderings - D07-12-25-0005'
  • Rendering of building from page 3 of the file '2025-09-02 - Project Renderings - D07-12-25-0005'
  • Rendering of building from page 15 of the file '2025-09-02 - Project Renderings - D07-12-25-0005'
  • Rendering of building from page 1 of the file '2025-01-22 - (Residential) Urban Design Brief - D07-12-25-0005'
  • Rendering of building from page 3 of the file '2025-05-12 - Renderings - D07-12-25-0005'
  • Rendering of building from page 2 of the file '2025-09-02 - Project Renderings - D07-12-25-0005'
  • Rendering of building from page 26 of the file '2025-01-22 - (Residential) Urban Design Brief - D07-12-25-0005'
  • Rendering of building from page 1 of the file '2025-05-12 - Building 2 Floor Plans & Elevations - D07-12-25-0005'
  • Rendering of building from page 11 of the file '2025-09-02 - Project Renderings - D07-12-25-0005'
  • Rendering of building from page 10 of the file '2025-05-12 - Renderings - D07-12-25-0005'
  • Rendering of building from page 18 of the file '2025-05-12 - Renderings - D07-12-25-0005'
  • Rendering of building from page 2 of the file '2025-05-12 - Renderings - D07-12-25-0005'
  • Rendering of building from page 25 of the file '2025-01-22 - (Residential) Urban Design Brief - D07-12-25-0005'
  • Rendering of building from page 15 of the file '2025-05-12 - Renderings - D07-12-25-0005'
  • Rendering of building from page 12 of the file '2025-05-12 - Renderings - D07-12-25-0005'
  • Rendering of building from page 11 of the file '2025-05-12 - Renderings - D07-12-25-0005'
  • Rendering of building from page 7 of the file '2025-05-12 - Renderings - D07-12-25-0005'
  • Rendering of building from page 29 of the file '2025-01-22 - (Residential) Urban Design Brief - D07-12-25-0005'
  • Rendering of building from page 9 of the file '2025-05-12 - Renderings - D07-12-25-0005'
  • Rendering of building from page 1 of the file '2025-05-12 - Building 1 Floor Plans & Elevations - D07-12-25-0005'
  • Rendering of building from page 1 of the file '2025-05-12 - Renderings - D07-12-25-0005'
  • Rendering of building from page 6 of the file '2025-05-12 - Renderings - D07-12-25-0005'
  • Rendering of building from page 13 of the file '2025-09-02 - Project Renderings - D07-12-25-0005'
  • Rendering of building from page 31 of the file '2025-01-22 - (Residential) Urban Design Brief - D07-12-25-0005'
  • Rendering of building from page 8 of the file '2025-09-02 - Project Renderings - D07-12-25-0005'
  • Rendering of building from page 4 of the file '2025-09-02 - Project Renderings - D07-12-25-0005'
  • Rendering of building from page 16 of the file '2025-05-12 - Renderings - D07-12-25-0005'
  • Rendering of building from page 4 of the file '2025-05-12 - Renderings - D07-12-25-0005'
  • Rendering of building from page 17 of the file '2025-05-12 - Renderings - D07-12-25-0005'
  • Rendering of building from page 19 of the file '2025-09-02 - Project Renderings - D07-12-25-0005'
  • Rendering of building from page 36 of the file '2025-01-22 - (Residential) Urban Design Brief - D07-12-25-0005'
  • Rendering of building from page 20 of the file '2025-09-02 - Project Renderings - D07-12-25-0005'
  • Rendering of building from page 3 of the file '2025-09-02 - Project Renderings - D07-12-25-0005'
  • Rendering of building from page 15 of the file '2025-09-02 - Project Renderings - D07-12-25-0005'
  • Rendering of building from page 1 of the file '2025-01-22 - (Residential) Urban Design Brief - D07-12-25-0005'
  • Rendering of building from page 3 of the file '2025-05-12 - Renderings - D07-12-25-0005'
  • Rendering of building from page 2 of the file '2025-09-02 - Project Renderings - D07-12-25-0005'
  • Rendering of building from page 26 of the file '2025-01-22 - (Residential) Urban Design Brief - D07-12-25-0005'
  • Rendering of building from page 1 of the file '2025-05-12 - Building 2 Floor Plans & Elevations - D07-12-25-0005'
  • Rendering of building from page 11 of the file '2025-09-02 - Project Renderings - D07-12-25-0005'
  • Rendering of building from page 10 of the file '2025-05-12 - Renderings - D07-12-25-0005'
  • Rendering of building from page 18 of the file '2025-05-12 - Renderings - D07-12-25-0005'
  • Rendering of building from page 2 of the file '2025-05-12 - Renderings - D07-12-25-0005'
  • Rendering of building from page 25 of the file '2025-01-22 - (Residential) Urban Design Brief - D07-12-25-0005'
  • Rendering of building from page 15 of the file '2025-05-12 - Renderings - D07-12-25-0005'
  • Rendering of building from page 12 of the file '2025-05-12 - Renderings - D07-12-25-0005'
  • Rendering of building from page 11 of the file '2025-05-12 - Renderings - D07-12-25-0005'
  • Rendering of building from page 7 of the file '2025-05-12 - Renderings - D07-12-25-0005'
  • Rendering of building from page 29 of the file '2025-01-22 - (Residential) Urban Design Brief - D07-12-25-0005'
  • Rendering of building from page 9 of the file '2025-05-12 - Renderings - D07-12-25-0005'
  • Rendering of building from page 1 of the file '2025-05-12 - Building 1 Floor Plans & Elevations - D07-12-25-0005'
  • Rendering of building from page 1 of the file '2025-05-12 - Renderings - D07-12-25-0005'
  • Rendering of building from page 6 of the file '2025-05-12 - Renderings - D07-12-25-0005'
  • Rendering of building from page 13 of the file '2025-09-02 - Project Renderings - D07-12-25-0005'
  • Rendering of building from page 31 of the file '2025-01-22 - (Residential) Urban Design Brief - D07-12-25-0005'
  • Rendering of building from page 8 of the file '2025-09-02 - Project Renderings - D07-12-25-0005'
  • Rendering of building from page 4 of the file '2025-09-02 - Project Renderings - D07-12-25-0005'
  • Rendering of building from page 16 of the file '2025-05-12 - Renderings - D07-12-25-0005'
  • Rendering of building from page 4 of the file '2025-05-12 - Renderings - D07-12-25-0005'
  • Rendering of building from page 17 of the file '2025-05-12 - Renderings - D07-12-25-0005'
  • Rendering of building from page 19 of the file '2025-09-02 - Project Renderings - D07-12-25-0005'
  • Rendering of building from page 36 of the file '2025-01-22 - (Residential) Urban Design Brief - D07-12-25-0005'

Location#

Select a marker to view the address.

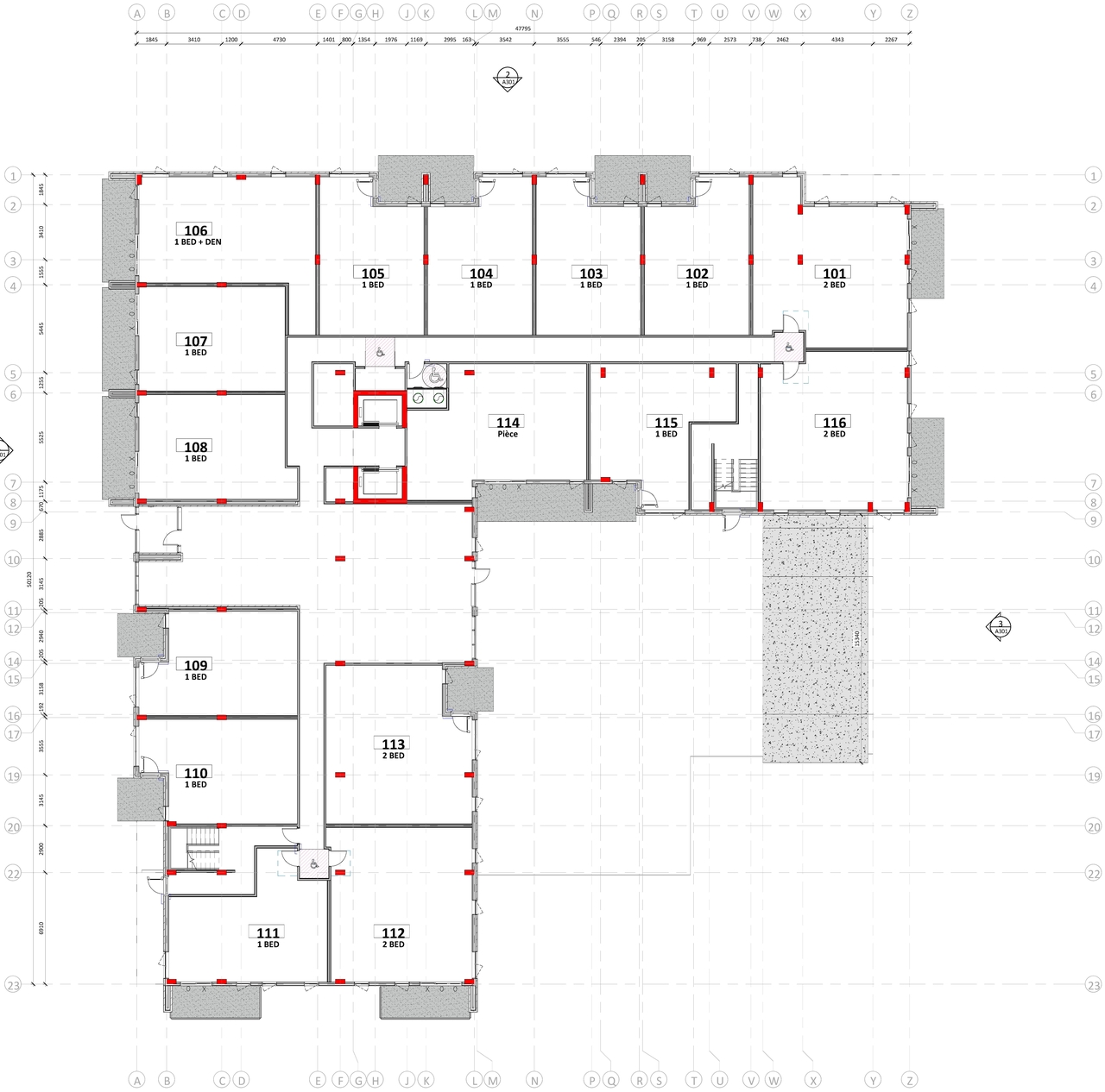
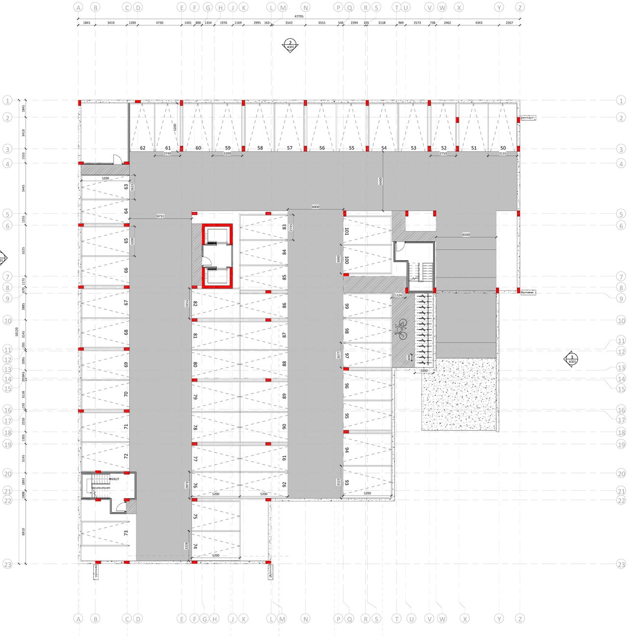
Site Plans, Elevations and Floor Plans#

  • Image from page 17 of the file '2025-01-22 - (Residential) Urban Design Brief - D07-12-25-0005'
  • Image from page 14 of the file '2025-05-12 - Building 2 Floor Plans & Elevations - D07-12-25-0005'
  • Image from page 17 of the file '2025-01-22 - (Residential) Urban Design Brief - D07-12-25-0005'
  • Image from page 15 of the file '2025-01-22 - (Residential) Urban Design Brief - D07-12-25-0005'
  • Image from page 20 of the file '2025-01-22 - (Residential) Urban Design Brief - D07-12-25-0005'
  • Image from page 20 of the file '2025-01-22 - (Residential) Urban Design Brief - D07-12-25-0005'
  • Image from page 12 of the file '2025-05-12 - Building 2 Floor Plans & Elevations - D07-12-25-0005'
  • Image from page 17 of the file '2025-01-22 - (Residential) Urban Design Brief - D07-12-25-0005'
  • Image from page 14 of the file '2025-05-12 - Building 2 Floor Plans & Elevations - D07-12-25-0005'
  • Image from page 15 of the file '2025-01-22 - (Residential) Urban Design Brief - D07-12-25-0005'
  • Image from page 15 of the file '2025-01-22 - (Residential) Urban Design Brief - D07-12-25-0005'
  • Image from page 14 of the file '2025-05-12 - Building 1 Floor Plans & Elevations - D07-12-25-0005'
  • Image from page 20 of the file '2025-01-22 - (Residential) Urban Design Brief - D07-12-25-0005'
  • Image from page 14 of the file '2025-05-12 - Building 1 Floor Plans & Elevations - D07-12-25-0005'
  • Image from page 12 of the file '2025-05-12 - Building 2 Floor Plans & Elevations - D07-12-25-0005'
  • Image from page 14 of the file '2025-05-12 - Building 2 Floor Plans & Elevations - D07-12-25-0005'
  • Image from page 20 of the file '2025-01-22 - (Residential) Urban Design Brief - D07-12-25-0005'
  • Image from page 13 of the file '2025-05-12 - Building 1 Floor Plans & Elevations - D07-12-25-0005'
  • Image from page 13 of the file '2025-05-12 - Building 1 Floor Plans & Elevations - D07-12-25-0005'
  • Image from page 16 of the file '2025-01-22 - (Residential) Urban Design Brief - D07-12-25-0005'
  • Image from page 19 of the file '2025-01-22 - (Residential) Urban Design Brief - D07-12-25-0005'
  • Image from page 12 of the file '2025-05-12 - Building 2 Floor Plans & Elevations - D07-12-25-0005'
  • Image from page 17 of the file '2025-01-22 - (Residential) Urban Design Brief - D07-12-25-0005'
  • Image from page 18 of the file '2025-01-22 - (Residential) Urban Design Brief - D07-12-25-0005'
  • Image from page 23 of the file '2025-01-22 - (Residential) Urban Design Brief - D07-12-25-0005'
  • Construction site plan for project from page 22 of the file '2025-01-22 - (Residential) Urban Design Brief - D07-12-25-0005'
  • Construction site plan for project from page 12 of the file '2025-01-22 - (Residential) Urban Design Brief - D07-12-25-0005'
  • Construction site plan for project from page 4 of the file '2025-05-12 - Building 1 Floor Plans & Elevations - D07-12-25-0005'
  • Construction site plan for project from page 9 of the file '2025-01-22 - (Residential) Urban Design Brief - D07-12-25-0005'
  • Construction site plan for project from page 5 of the file '2025-01-22 - (Residential) Urban Design Brief - D07-12-25-0005'
  • Construction site plan for project from page 5 of the file '2025-05-12 - Building 2 Floor Plans & Elevations - D07-12-25-0005'
  • Construction site plan for project from page 21 of the file '2025-01-22 - (Residential) Urban Design Brief - D07-12-25-0005'
  • Construction site plan for project from page 6 of the file '2025-05-12 - Building 2 Floor Plans & Elevations - D07-12-25-0005'
  • Construction site plan for project from page 6 of the file '2025-05-12 - Building 1 Floor Plans & Elevations - D07-12-25-0005'
  • Construction site plan for project from page 5 of the file '2025-05-12 - Building 1 Floor Plans & Elevations - D07-12-25-0005'
  • Construction site plan for project from page 14 of the file '2025-05-12 - Renderings - D07-12-25-0005'
  • Construction site plan for project from page 22 of the file '2025-01-22 - (Residential) Urban Design Brief - D07-12-25-0005'
  • Construction site plan for project from page 23 of the file '2025-01-22 - (Residential) Urban Design Brief - D07-12-25-0005'
  • Construction site plan for project from page 8 of the file '2025-05-12 - Renderings - D07-12-25-0005'
  • Construction site plan for project from page 21 of the file '2025-01-22 - (Residential) Urban Design Brief - D07-12-25-0005'
  • Construction site plan for project from page 30 of the file '2025-01-22 - (Residential) Urban Design Brief - D07-12-25-0005'
  • Construction site plan for project from page 38 of the file '2025-01-22 - (Residential) Urban Design Brief - D07-12-25-0005'
  • Construction site plan for project from page 34 of the file '2025-01-22 - (Residential) Urban Design Brief - D07-12-25-0005'
  • Construction site plan for project from page 18 of the file '2025-09-02 - Project Renderings - D07-12-25-0005'
  • Floor plan for project from page 3 of the file '2025-05-12 - Building 2 Floor Plans & Elevations - D07-12-25-0005'
  • Floor plan for project from page 11 of the file '2025-05-12 - Building 1 Floor Plans & Elevations - D07-12-25-0005'
  • Image from page 17 of the file '2025-01-22 - (Residential) Urban Design Brief - D07-12-25-0005'
  • Image from page 14 of the file '2025-05-12 - Building 2 Floor Plans & Elevations - D07-12-25-0005'
  • Image from page 17 of the file '2025-01-22 - (Residential) Urban Design Brief - D07-12-25-0005'
  • Image from page 15 of the file '2025-01-22 - (Residential) Urban Design Brief - D07-12-25-0005'
  • Image from page 20 of the file '2025-01-22 - (Residential) Urban Design Brief - D07-12-25-0005'
  • Image from page 20 of the file '2025-01-22 - (Residential) Urban Design Brief - D07-12-25-0005'
  • Image from page 12 of the file '2025-05-12 - Building 2 Floor Plans & Elevations - D07-12-25-0005'
  • Image from page 17 of the file '2025-01-22 - (Residential) Urban Design Brief - D07-12-25-0005'
  • Image from page 14 of the file '2025-05-12 - Building 2 Floor Plans & Elevations - D07-12-25-0005'
  • Image from page 15 of the file '2025-01-22 - (Residential) Urban Design Brief - D07-12-25-0005'
  • Image from page 15 of the file '2025-01-22 - (Residential) Urban Design Brief - D07-12-25-0005'
  • Image from page 14 of the file '2025-05-12 - Building 1 Floor Plans & Elevations - D07-12-25-0005'
  • Image from page 20 of the file '2025-01-22 - (Residential) Urban Design Brief - D07-12-25-0005'
  • Image from page 14 of the file '2025-05-12 - Building 1 Floor Plans & Elevations - D07-12-25-0005'
  • Image from page 12 of the file '2025-05-12 - Building 2 Floor Plans & Elevations - D07-12-25-0005'
  • Image from page 14 of the file '2025-05-12 - Building 2 Floor Plans & Elevations - D07-12-25-0005'
  • Image from page 20 of the file '2025-01-22 - (Residential) Urban Design Brief - D07-12-25-0005'
  • Image from page 13 of the file '2025-05-12 - Building 1 Floor Plans & Elevations - D07-12-25-0005'
  • Image from page 13 of the file '2025-05-12 - Building 1 Floor Plans & Elevations - D07-12-25-0005'
  • Image from page 16 of the file '2025-01-22 - (Residential) Urban Design Brief - D07-12-25-0005'
  • Image from page 19 of the file '2025-01-22 - (Residential) Urban Design Brief - D07-12-25-0005'
  • Image from page 12 of the file '2025-05-12 - Building 2 Floor Plans & Elevations - D07-12-25-0005'
  • Image from page 17 of the file '2025-01-22 - (Residential) Urban Design Brief - D07-12-25-0005'
  • Image from page 18 of the file '2025-01-22 - (Residential) Urban Design Brief - D07-12-25-0005'
  • Image from page 23 of the file '2025-01-22 - (Residential) Urban Design Brief - D07-12-25-0005'
  • Construction site plan for project from page 22 of the file '2025-01-22 - (Residential) Urban Design Brief - D07-12-25-0005'
  • Construction site plan for project from page 12 of the file '2025-01-22 - (Residential) Urban Design Brief - D07-12-25-0005'
  • Construction site plan for project from page 4 of the file '2025-05-12 - Building 1 Floor Plans & Elevations - D07-12-25-0005'
  • Construction site plan for project from page 9 of the file '2025-01-22 - (Residential) Urban Design Brief - D07-12-25-0005'
  • Construction site plan for project from page 5 of the file '2025-01-22 - (Residential) Urban Design Brief - D07-12-25-0005'
  • Construction site plan for project from page 5 of the file '2025-05-12 - Building 2 Floor Plans & Elevations - D07-12-25-0005'
  • Construction site plan for project from page 21 of the file '2025-01-22 - (Residential) Urban Design Brief - D07-12-25-0005'
  • Construction site plan for project from page 6 of the file '2025-05-12 - Building 2 Floor Plans & Elevations - D07-12-25-0005'
  • Construction site plan for project from page 6 of the file '2025-05-12 - Building 1 Floor Plans & Elevations - D07-12-25-0005'
  • Construction site plan for project from page 5 of the file '2025-05-12 - Building 1 Floor Plans & Elevations - D07-12-25-0005'
  • Construction site plan for project from page 14 of the file '2025-05-12 - Renderings - D07-12-25-0005'
  • Construction site plan for project from page 22 of the file '2025-01-22 - (Residential) Urban Design Brief - D07-12-25-0005'
  • Construction site plan for project from page 23 of the file '2025-01-22 - (Residential) Urban Design Brief - D07-12-25-0005'
  • Construction site plan for project from page 8 of the file '2025-05-12 - Renderings - D07-12-25-0005'
  • Construction site plan for project from page 21 of the file '2025-01-22 - (Residential) Urban Design Brief - D07-12-25-0005'
  • Construction site plan for project from page 30 of the file '2025-01-22 - (Residential) Urban Design Brief - D07-12-25-0005'
  • Construction site plan for project from page 38 of the file '2025-01-22 - (Residential) Urban Design Brief - D07-12-25-0005'
  • Construction site plan for project from page 34 of the file '2025-01-22 - (Residential) Urban Design Brief - D07-12-25-0005'
  • Construction site plan for project from page 18 of the file '2025-09-02 - Project Renderings - D07-12-25-0005'
  • Floor plan for project from page 3 of the file '2025-05-12 - Building 2 Floor Plans & Elevations - D07-12-25-0005'
  • Floor plan for project from page 11 of the file '2025-05-12 - Building 1 Floor Plans & Elevations - D07-12-25-0005'

Additional Information#

Date Initiated2025-01-22
WardWard 22 - Steve Desroches

Documents#

TypeDocument
Application Summary2025-06-05 - Application Summary - D07-12-25-0005
Architectural Plans2025-05-12 - Site Plan - D07-12-25-0005
Architectural Plans2025-05-12 - General Plan of Services - D07-12-25-0005
Architectural Plans2025-01-22 - Construction Management Plan - D07-12-25-0005
Architectural Plans2025-01-22 - Composite Site Plan - D07-12-25-0005
Architectural Plans2025-09-02 - Site Plan - D07-12-25-0005
Architectural Plans2025-09-02 - General Plan of Services - D07-12-25-0005
Architectural Plans2025-12-03 - Site Plan - D07-12-25-0005
Architectural Plans2025-12-03 - General Elevations - D07-12-25-0005
Architectural Plans2025-12-03 - Elevations - D07-12-25-0005
Architectural Plans2025-12-03 - Building Plans - D07-12-25-0005
Architectural Plans2025-12-03 - Building 2 Plans - D07-12-25-0005
Architectural Plans2025-12-23 - APPROVED Site Plan Approval Report - D07-12-25-0005
Architectural Plans2025-12-23 - APPROVED Site Plan - D07-12-25-0005
Architectural Plans2025-12-23 - APPROVED General Plan of Services - D07-12-25-0005
Architectural Plans2025-12-23 - APPROVED Composite Site Plan - D07-12-25-0005
Architectural Plans2025-12-23 - APPROVED Building 2 Elevations - D07-12-25-0005
Architectural Plans2025-12-23 - APPROVED Building 1 Elevations - D07-12-25-0005
Design Brief2025-01-22 - (Residential) Urban Design Brief - D07-12-25-0005
Environmental2025-06-05 - Phase I Environmental Site Assessment - D07-12-25-0005
Environmental2025-12-23 - APPROVED Phase I Environmental Site Assessment - D07-12-25-0005
Floor Plan2025-05-12 - Building 2 Floor Plans & Elevations - D07-12-25-0005
Floor Plan2025-05-12 - Building 1 Floor Plans & Elevations - D07-12-25-0005
Geotechnical Report2025-05-12 - Grading and Erosion & Sediment Control Plan - D07-12-25-0005
Geotechnical Report2025-05-12 - Geotechnical Investigation - D07-12-25-0005
Geotechnical Report2025-09-02 - Grading Erosion & Sediment Control Plan - D07-12-25-0005
Geotechnical Report2025-12-23 - APPROVED Grading and Erosion & Sediment Control Plan - D07-12-25-0005
Noise Study2025-05-12 - Stationary Noise Assessment - D07-12-25-0005
Noise Study2025-05-12 - Detailed Traffic Noise Study - D07-12-25-0005
Noise Study2025-12-23 - APPROVED Stationary Noise Assessment - D07-12-25-0005
Noise Study2025-12-23 - APPROVED Detailed Traffic Noise Study - D07-12-25-0005
Planning2025-05-12 - Zoning Confirmation Report - D07-12-25-0005
Planning2025-05-12 - Planning Rationale - D07-12-25-0005
Planning2025-07-17 - Planning Rationale - D07-12-25-0005
Planning2025-09-02 - Planning Rationale - D07-12-25-0005
Rendering2025-05-12 - Renderings - D07-12-25-0005
Rendering2025-09-02 - Project Renderings - D07-12-25-0005
Shadow Study2025-05-12 - Shadow Study - D07-12-25-0005
Shadow Study2025-12-23 - APPROVED Shadow Study - D07-12-25-0005
Site Servicing2025-05-12 - Servicing and Stormwater Management Report - D07-12-25-0005
Site Servicing2025-12-23 - APPROVED Servicing and Stormwater Management Report - D07-12-25-0005
Stormwater Management2025-05-12 - Stormwater Management Plan - D07-12-25-0005
Stormwater Management2025-09-02 - Stormwater Management Plan - D07-12-25-0005
Stormwater Management2025-12-23 - APPROVED Stormwater Management Plan - D07-12-25-0005
Surveying2025-06-05 - Plan Of Survey - D07-12-25-0005
Transportation Analysis2025-12-23 - APPROVED Transportation Impact Assessment - D07-12-25-0005
Tree Information and Conservation2025-05-12 - Landscape Plan & Tree Conservation Plan - D07-12-25-0005
Tree Information and Conservation2025-09-02 - Tree Conservation Plan - D07-12-25-0005
Tree Information and Conservation2025-12-23 - APPROVED Tree Conservation Report & Landscape Plan - D07-12-25-0005
Wind Study2025-01-22 - Wind Study - D07-12-25-0005
Wind Study2025-12-23 - APPROVED Wind Study - D07-12-25-0005
2025-06-04 - Global Stability Analysis_Proposed Retaining Wall - D07-12-25-0005.pdf
2025-05-12 -Transportation Impact Assessment - D07-12-25-0005
2025-09-02 - Building 2 - D07-12-25-0005
2025-09-02 - Building 1 - D07-12-25-0005
2025-12-23 - APPROVED Global Stability Analysis - Proposed Retaining Wall - D07-12-25-0005
2025-12-23 - APPROVED Building 2 Underground Parking U1 - D07-12-25-0005
2025-12-23 - APPROVED Building 1 Underground Parking U3 - D07-12-25-0005
2025-12-23 - APPROVED Building 1 Underground Parking U2 - D07-12-25-0005
2025-12-23 - APPROVED Building 1 Underground Parking U1 - D07-12-25-0005