214 Somerset St.#
Last updated: 2026-02-13 · ID: D07-12-25-0002
Summary#
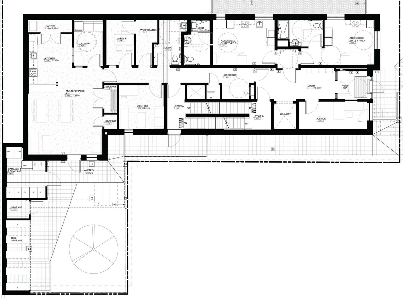
A Site Plan Control application has been received to construct a four-storey low-rise apartment building with two basement levels for 23 supportive housing units, a storage area for bicycle parking in the rear yard, and no on-site vehicular parking.
Status
Post Approval (Receipt of Agreement from Owner Pending)
Building Scale (Max.)
Based on elevation drawings. Values may be approximate. See sources for exact figures.
Mid-rise · 4 storeys
· 15 m
Renders#
Location#
Select a marker to view the address.
Site Plans, Elevations and Floor Plans#
Additional Information#
| Date Initiated | 2025-01-13 |
| Ward | Ward 12 - Stéphanie Plante |
Documents#
Related Projects#
| Project | Last Updated | Date Initiated |
|---|---|---|
214 Somerset St.
D02-02-24-0047 | 2025-01-09 | 2024-09-05 |



