Ottawa Development Projects

945-1015 Bank St.#

Last updated: 2025-11-25 · ID: D07-12-24-0178

Summary#

New north side stadium stands will be constructed in place of the existing stadium stands, part of Lansdowne 2.0 project.

Status
Post Approval (Request for Agreement Received)

Building Scale (Max.) Based on elevation drawings. Values may be approximate. See sources for exact figures.
Low-rise · 1 storey Data Quality Note Text was extracted using optical character recognition. This may introduce artifacts or misreads. · 5 m Data Quality Note Height was partially estimated using visual scale. This may be approximate. Data Quality Note Text was extracted using optical character recognition. This may introduce artifacts or misreads.

Renders#

  • Rendering of building from page 7 of the file '2025-03-06 - Urban Design Brief NNS - D07-12-24-0178'
  • Rendering of building from page 29 of the file '2025-01-10 - Urban Design Review Panel Report - D07-12-24-0178'
  • Rendering of building from page 34 of the file '2025-03-06 - Urban Design Brief NNS - D07-12-24-0178'
  • Rendering of building from page 13 of the file '2025-01-10 - Urban Design Review Panel Report - D07-12-24-0178'
  • Rendering of building from page 10 of the file '2025-03-06 - Urban Design Brief NNS - D07-12-24-0178'
  • Rendering of building from page 14 of the file '2025-01-10 - Urban Design Review Panel Report - D07-12-24-0178'
  • Rendering of building from page 15 of the file '2025-01-10 - Urban Design Review Panel Report - D07-12-24-0178'
  • Rendering of building from page 31 of the file '2025-01-10 - Urban Design Review Panel Report - D07-12-24-0178'
  • Rendering of building from page 36 of the file '2025-01-10 - Urban Design Review Panel Report - D07-12-24-0178'
  • Rendering of building from page 36 of the file '2025-01-10 - Urban Design Review Panel Report - D07-12-24-0178'
  • Rendering of building from page 1 of the file '2025-01-10 - Urban Design Review Panel Report - D07-12-24-0178'
  • Rendering of building from page 9 of the file '2025-03-06 - Urban Design Brief NNS - D07-12-24-0178'
  • Rendering of building from page 29 of the file '2025-03-06 - Urban Design Brief NNS - D07-12-24-0178'
  • Rendering of building from page 13 of the file '2025-03-06 - Urban Design Brief NNS - D07-12-24-0178'
  • Rendering of building from page 6 of the file '2025-03-06 - Urban Design Brief NNS - D07-12-24-0178'
  • Rendering of building from page 30 of the file '2025-03-06 - Urban Design Brief NNS - D07-12-24-0178'
  • Rendering of building from page 110 of the file '2025-01-10 - Urban Design Review Panel Report - D07-12-24-0178'
  • Rendering of building from page 11 of the file '2025-01-10 - Urban Design Review Panel Report - D07-12-24-0178'
  • Rendering of building from page 33 of the file '2025-01-10 - Urban Design Review Panel Report - D07-12-24-0178'
  • Rendering of building from page 1 of the file '2025-03-25 - Urban Design Review Panel Recommendations - D07-12-24-0178'
  • Rendering of building from page 8 of the file '2025-01-10 - Urban Design Review Panel Report - D07-12-24-0178'
  • Rendering of building from page 33 of the file '2025-01-10 - Urban Design Review Panel Report - D07-12-24-0178'
  • Rendering of building from page 31 of the file '2025-01-10 - Urban Design Review Panel Report - D07-12-24-0178'
  • Rendering of building from page 32 of the file '2025-03-06 - Urban Design Brief NNS - D07-12-24-0178'
  • Rendering of building from page 31 of the file '2025-03-06 - Urban Design Brief NNS - D07-12-24-0178'
  • Rendering of building from page 7 of the file '2025-03-06 - Urban Design Brief NNS - D07-12-24-0178'
  • Rendering of building from page 29 of the file '2025-01-10 - Urban Design Review Panel Report - D07-12-24-0178'
  • Rendering of building from page 34 of the file '2025-03-06 - Urban Design Brief NNS - D07-12-24-0178'
  • Rendering of building from page 13 of the file '2025-01-10 - Urban Design Review Panel Report - D07-12-24-0178'
  • Rendering of building from page 10 of the file '2025-03-06 - Urban Design Brief NNS - D07-12-24-0178'
  • Rendering of building from page 14 of the file '2025-01-10 - Urban Design Review Panel Report - D07-12-24-0178'
  • Rendering of building from page 15 of the file '2025-01-10 - Urban Design Review Panel Report - D07-12-24-0178'
  • Rendering of building from page 31 of the file '2025-01-10 - Urban Design Review Panel Report - D07-12-24-0178'
  • Rendering of building from page 36 of the file '2025-01-10 - Urban Design Review Panel Report - D07-12-24-0178'
  • Rendering of building from page 36 of the file '2025-01-10 - Urban Design Review Panel Report - D07-12-24-0178'
  • Rendering of building from page 1 of the file '2025-01-10 - Urban Design Review Panel Report - D07-12-24-0178'
  • Rendering of building from page 9 of the file '2025-03-06 - Urban Design Brief NNS - D07-12-24-0178'
  • Rendering of building from page 29 of the file '2025-03-06 - Urban Design Brief NNS - D07-12-24-0178'
  • Rendering of building from page 13 of the file '2025-03-06 - Urban Design Brief NNS - D07-12-24-0178'
  • Rendering of building from page 6 of the file '2025-03-06 - Urban Design Brief NNS - D07-12-24-0178'
  • Rendering of building from page 30 of the file '2025-03-06 - Urban Design Brief NNS - D07-12-24-0178'
  • Rendering of building from page 110 of the file '2025-01-10 - Urban Design Review Panel Report - D07-12-24-0178'
  • Rendering of building from page 11 of the file '2025-01-10 - Urban Design Review Panel Report - D07-12-24-0178'
  • Rendering of building from page 33 of the file '2025-01-10 - Urban Design Review Panel Report - D07-12-24-0178'
  • Rendering of building from page 1 of the file '2025-03-25 - Urban Design Review Panel Recommendations - D07-12-24-0178'
  • Rendering of building from page 8 of the file '2025-01-10 - Urban Design Review Panel Report - D07-12-24-0178'
  • Rendering of building from page 33 of the file '2025-01-10 - Urban Design Review Panel Report - D07-12-24-0178'
  • Rendering of building from page 31 of the file '2025-01-10 - Urban Design Review Panel Report - D07-12-24-0178'
  • Rendering of building from page 32 of the file '2025-03-06 - Urban Design Brief NNS - D07-12-24-0178'
  • Rendering of building from page 31 of the file '2025-03-06 - Urban Design Brief NNS - D07-12-24-0178'

Location#

Select a marker to view the address.

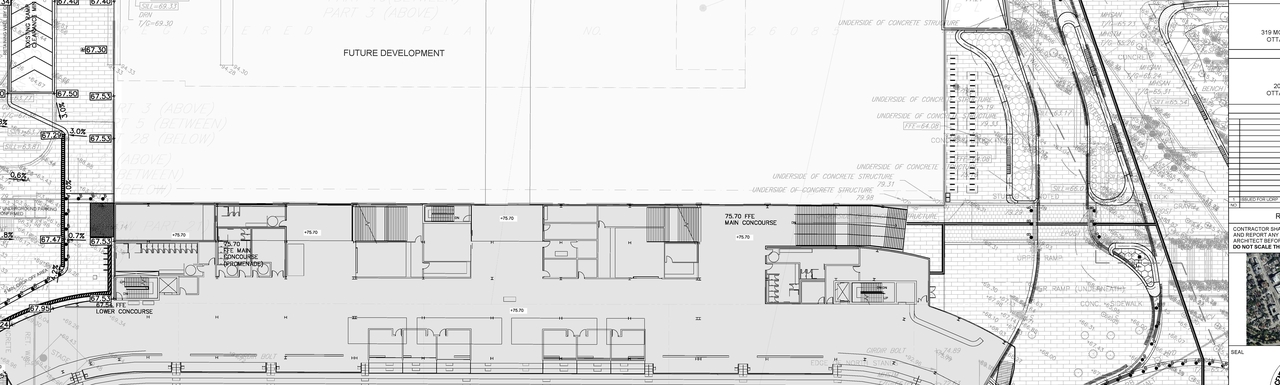
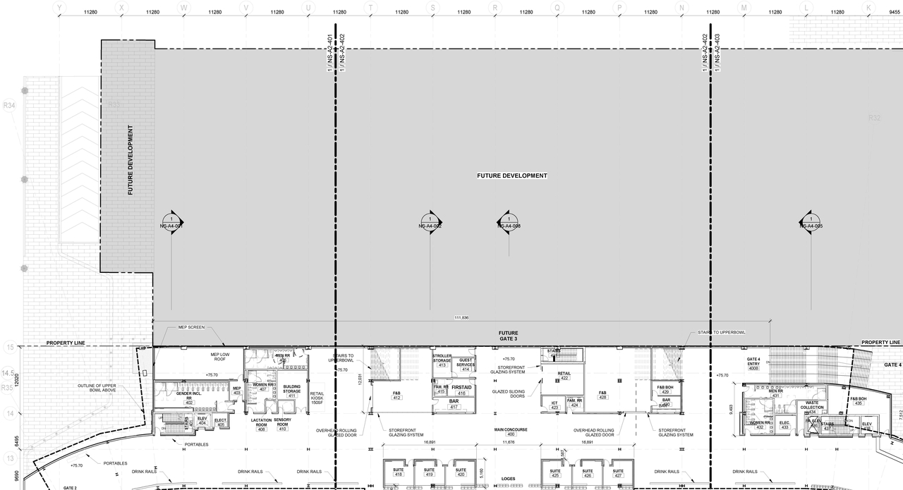
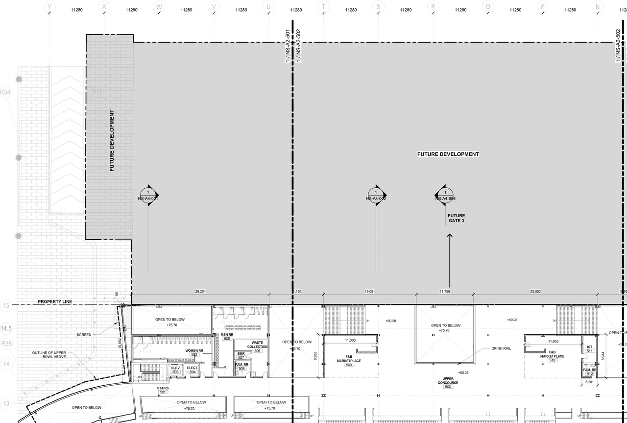
Site Plans, Elevations and Floor Plans#

  • Image from page 51 of the file '2025-01-10 - Urban Design Review Panel Report - D07-12-24-0178'
  • Image from page 51 of the file '2025-01-10 - Urban Design Review Panel Report - D07-12-24-0178'
  • Image from page 64 of the file '2025-01-10 - Urban Design Review Panel Report - D07-12-24-0178'
  • Image from page 64 of the file '2025-01-10 - Urban Design Review Panel Report - D07-12-24-0178'
  • Image from page 59 of the file '2025-01-10 - Urban Design Review Panel Report - D07-12-24-0178'
  • Construction site plan for project from page 53 of the file '2025-01-10 - Urban Design Review Panel Report - D07-12-24-0178'
  • Construction site plan for project from page 44 of the file '2025-01-10 - Urban Design Review Panel Report - D07-12-24-0178'
  • Construction site plan for project from page 55 of the file '2025-01-10 - Urban Design Review Panel Report - D07-12-24-0178'
  • Construction site plan for project from page 72 of the file '2025-01-10 - Urban Design Review Panel Report - D07-12-24-0178'
  • Construction site plan for project from page 42 of the file '2025-01-10 - Urban Design Review Panel Report - D07-12-24-0178'
  • Construction site plan for project from page 68 of the file '2025-01-10 - Urban Design Review Panel Report - D07-12-24-0178'
  • Construction site plan for project from page 73 of the file '2025-01-10 - Urban Design Review Panel Report - D07-12-24-0178'
  • Construction site plan for project from page 60 of the file '2025-01-10 - Urban Design Review Panel Report - D07-12-24-0178'
  • Construction site plan for project from page 73 of the file '2025-01-10 - Urban Design Review Panel Report - D07-12-24-0178'
  • Construction site plan for project from page 45 of the file '2025-01-10 - Urban Design Review Panel Report - D07-12-24-0178'
  • Construction site plan for project from page 52 of the file '2025-01-10 - Urban Design Review Panel Report - D07-12-24-0178'
  • Construction site plan for project from page 6 of the file '2024-12-24 - Appendix B - Overall Floor Plans - D07-12-24-0178'
  • Construction site plan for project from page 29 of the file '2025-01-10 - Urban Design Review Panel Report - D07-12-24-0178'
  • Construction site plan for project from page 1 of the file '2024-12-24 - Appendix B - Overall Floor Plans - D07-12-24-0178'
  • Construction site plan for project from page 5 of the file '2024-12-24 - Appendix B - Overall Floor Plans - D07-12-24-0178'
  • Construction site plan for project from page 17 of the file '2025-01-10 - Urban Design Review Panel Report - D07-12-24-0178'
  • Construction site plan for project from page 72 of the file '2025-01-10 - Urban Design Review Panel Report - D07-12-24-0178'
  • Construction site plan for project from page 100 of the file '2025-01-10 - Urban Design Review Panel Report - D07-12-24-0178'
  • Construction site plan for project from page 74 of the file '2025-01-10 - Urban Design Review Panel Report - D07-12-24-0178'
  • Construction site plan for project from page 23 of the file '2025-01-10 - Urban Design Review Panel Report - D07-12-24-0178'
  • Construction site plan for project from page 22 of the file '2025-01-10 - Urban Design Review Panel Report - D07-12-24-0178'
  • Construction site plan for project from page 55 of the file '2025-01-10 - Urban Design Review Panel Report - D07-12-24-0178'
  • Construction site plan for project from page 99 of the file '2025-01-10 - Urban Design Review Panel Report - D07-12-24-0178'
  • Floor plan for project from page 4 of the file '2024-12-24 - Appendix B - Overall Floor Plans - D07-12-24-0178'
  • Image from page 51 of the file '2025-01-10 - Urban Design Review Panel Report - D07-12-24-0178'
  • Image from page 51 of the file '2025-01-10 - Urban Design Review Panel Report - D07-12-24-0178'
  • Image from page 64 of the file '2025-01-10 - Urban Design Review Panel Report - D07-12-24-0178'
  • Image from page 64 of the file '2025-01-10 - Urban Design Review Panel Report - D07-12-24-0178'
  • Image from page 59 of the file '2025-01-10 - Urban Design Review Panel Report - D07-12-24-0178'
  • Construction site plan for project from page 53 of the file '2025-01-10 - Urban Design Review Panel Report - D07-12-24-0178'
  • Construction site plan for project from page 44 of the file '2025-01-10 - Urban Design Review Panel Report - D07-12-24-0178'
  • Construction site plan for project from page 55 of the file '2025-01-10 - Urban Design Review Panel Report - D07-12-24-0178'
  • Construction site plan for project from page 72 of the file '2025-01-10 - Urban Design Review Panel Report - D07-12-24-0178'
  • Construction site plan for project from page 42 of the file '2025-01-10 - Urban Design Review Panel Report - D07-12-24-0178'
  • Construction site plan for project from page 68 of the file '2025-01-10 - Urban Design Review Panel Report - D07-12-24-0178'
  • Construction site plan for project from page 73 of the file '2025-01-10 - Urban Design Review Panel Report - D07-12-24-0178'
  • Construction site plan for project from page 60 of the file '2025-01-10 - Urban Design Review Panel Report - D07-12-24-0178'
  • Construction site plan for project from page 73 of the file '2025-01-10 - Urban Design Review Panel Report - D07-12-24-0178'
  • Construction site plan for project from page 45 of the file '2025-01-10 - Urban Design Review Panel Report - D07-12-24-0178'
  • Construction site plan for project from page 52 of the file '2025-01-10 - Urban Design Review Panel Report - D07-12-24-0178'
  • Construction site plan for project from page 6 of the file '2024-12-24 - Appendix B - Overall Floor Plans - D07-12-24-0178'
  • Construction site plan for project from page 29 of the file '2025-01-10 - Urban Design Review Panel Report - D07-12-24-0178'
  • Construction site plan for project from page 1 of the file '2024-12-24 - Appendix B - Overall Floor Plans - D07-12-24-0178'
  • Construction site plan for project from page 5 of the file '2024-12-24 - Appendix B - Overall Floor Plans - D07-12-24-0178'
  • Construction site plan for project from page 17 of the file '2025-01-10 - Urban Design Review Panel Report - D07-12-24-0178'
  • Construction site plan for project from page 72 of the file '2025-01-10 - Urban Design Review Panel Report - D07-12-24-0178'
  • Construction site plan for project from page 100 of the file '2025-01-10 - Urban Design Review Panel Report - D07-12-24-0178'
  • Construction site plan for project from page 74 of the file '2025-01-10 - Urban Design Review Panel Report - D07-12-24-0178'
  • Construction site plan for project from page 23 of the file '2025-01-10 - Urban Design Review Panel Report - D07-12-24-0178'
  • Construction site plan for project from page 22 of the file '2025-01-10 - Urban Design Review Panel Report - D07-12-24-0178'
  • Construction site plan for project from page 55 of the file '2025-01-10 - Urban Design Review Panel Report - D07-12-24-0178'
  • Construction site plan for project from page 99 of the file '2025-01-10 - Urban Design Review Panel Report - D07-12-24-0178'
  • Floor plan for project from page 4 of the file '2024-12-24 - Appendix B - Overall Floor Plans - D07-12-24-0178'

Additional Information#

Date Initiated2024-12-24
WardWard 17 - Shawn Menard
All Addresses945 Bank St.
1015 Bank St.

Documents#

TypeDocument
Application Summary2025-02-21 - Application Summary - D07-12-24-0178
Architectural Plans2025-01-23 - Site Plan & Elevations - D07-12-24-0178
Architectural Plans2024-12-24 - Construction Management Plan - D07-12-24-0178
Architectural Plans2024-12-24 - Architectural Plans - D07-12-24-0178
Architectural Plans2024-12-24 - Appendix E - Site Servicing Plan - D07-12-24-0178
Architectural Plans2024-12-24 - Appendix D - Grading and Drainage Plans - D07-12-24-0178
Architectural Plans2024-12-24 - Appendix C - Landscape Plan - D07-12-24-0178
Architectural Plans2024-12-24 - Appendix B - Elevations - D07-12-24-0178
Architectural Plans2024-12-24 - Appendix A - Site Plan - D07-12-24-0178
Architectural Plans2025-05-28 - APPROVED Site Plan Approval Report - D07-12-24-0178
Architectural Plans2025-05-29 - Approved Site Plan & Overall Elevations - D07-12-24-0178
Architectural Plans2025-05-29 - Approved Post Drainage Area Plan - D07-12-24-0178
Architectural Plans2025-05-29 - Approved Notes and Details, Removal Plan, & Erosion and Sediment Control Plan - D07-
Architectural Plans2025-11-24 - REVISED Signed Site Plan Approval Report - D07-12-24-0082 & D07-12-24-0178
Architectural Plans2025-11-24 - APPROVED Risk Management Plans - D07-12-24-0082 & D07-12-24-0178
Architectural Plans2025-11-24 - APPROVED Planting Plan - D07-12-24-0082 & D07-12-24-0178
Civil Engineering Report2025-01-23 - Civil Plans - North Side Stands - D07-12-24-0178
Civil Engineering Report2025-01-23 - Civil Plans - Event Centre - D07-12-24-0178
Civil Engineering Report2024-12-24 - Civil Plans - D07-12-24-0178
Civil Engineering Report2025-11-24 - APPROVED Civil Plans - D07-12-24-0082 & D07-12-24-0178
Design Brief2025-01-10 - Urban Design Review Panel Report - D07-12-24-0178
Design Brief2024-12-24 - Urban Design Brief - D07-12-24-0178
Design Brief2025-03-06 - Urban Design Brief NNS - D07-12-24-0178
Design Brief2025-03-25 - Urban Design Review Panel Recommendations - D07-12-24-0178
Environmental2025-01-23 - Phase II ESA - North Side Stands - D07-12-24-0178
Environmental2024-12-24 - Phase Two ESA - D07-12-24-0178
Environmental2024-12-24 - Phase One ESA - D07-12-24-0178
Environmental2025-11-24 - APPROVED Phase Two ESA - NS - D07-12-24-0082 & D07-12-24-0178
Environmental2025-11-24 - APPROVED Phase One ESA - EC - D07-12-24-0082 & D07-12-24-0178
Floor Plan2024-12-24 - Appendix B - Overall Floor Plans - D07-12-24-0178
Geotechnical Report2024-12-24 - Geotechnical Investigation - D07-12-24-0178
Geotechnical Report2025-11-24 - APPROVED Geotechnical Investigation - NS - D07-12-24-0082 & D07-12-24-0178
Geotechnical Report2025-11-24 - APPROVED Geotechnical Investigation - EC - D07-12-24-0082 & D07-12-24-0178
Landscape Plan2024-12-24 - Landscape Plans - D07-12-24-0178
Landscape Plan2025-11-24 - APPROVED Landscape Layout Plan and Details - EC - D07-12-24-0082 & D07-12-24-0178
Planning2025-01-23 - Zoning Confirmation Report - D07-12-24-0178
Planning2024-12-24 - Zoning Confirmation Report - D07-12-24-0178
Shadow Study2025-01-23 - Shadow Study - D07-12-24-0178
Shadow Study2024-12-24 - Appendix F - Shadow Analysis - D07-12-24-0178
Site Servicing2025-01-23 - Servicing Report - North Side Stands - D07-12-24-0178
Site Servicing2024-12-24 - Servicing Report - D07-12-24-0178
Site Servicing2025-11-24 - APPROVED Servicing Report - NS - D07-12-24-0082 & D07-12-24-0178
Site Servicing2025-11-24 - APPROVED Servicing Report - EC - D07-12-24-0082 & D07-12-24-0178
Stormwater Management2025-01-23 - SWM Report - Event Centre - D07-12-24-0178
Stormwater Management2025-11-24 - APPROVED SWM Report - EC - D07-12-24-0082 & D07-12-24-0178
Surveying2025-01-23 - TOPO Sketch - D07-12-24-0178
Surveying2024-12-24 - TOPO Sketch - D07-12-24-0178
Transportation Analysis2024-12-24 - Transportation Impact Assessment - D07-12-24-0178
Transportation Analysis2025-11-24 - APPROVED Transportation Impact Assessment - D07-12-24-0082 & D07-12-24-0178
Tree Information and Conservation2025-01-23 - Landscape & TCR - D07-12-24-0178
Tree Information and Conservation2024-12-24 - Tree Conservation Plans - D07-12-24-0178
Tree Information and Conservation2025-11-24 - APPROVED Tree Conservation Reports EC - D07-12-24-0082 & D07-12-24-0178
Tree Information and Conservation2025-11-24 - APPROVED Landscape Plans, Details and TCR - NS - D07-12-24-0082 & D07-12-24-0178
2025-02-19 - North Side Stands Parking Layout - D07-12-24-0178
2024-12-24 - Appendix H - Heritage Impact Assessment - D07-12-24-0178
2024-12-24 - Appendix G - Wind Analysis - D07-12-24-0178