73-83 Ste-Cecile#
Last updated: 2025-08-21 · ID: D07-12-24-0177
Summary#
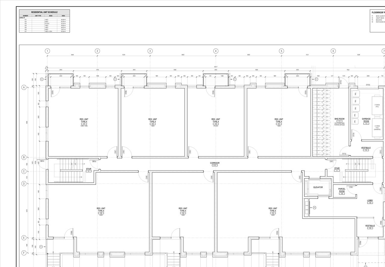
It is proposed to develop a four-storey apartment building on the subject site. The proposed building will contain a total of 41 units, with five studio units, 26 one-bedroom units, eight two-bedroom units, and two three-bedroom units.
Status
Inactive (Application Approved)
Building Scale (Max.)
Based on elevation drawings. Values may be approximate. See sources for exact figures.
Mid-rise · 6 storeys
· 13.78 m
Renders#
Location#
Select a marker to view the address.
Site Plans, Elevations and Floor Plans#
Additional Information#
| Date Initiated | 2024-12-23 |
| Ward | Ward 12 - Stéphanie Plante |
| All Addresses | 73 Ste-Cecile 79 Ste-Cecile 83 Ste-Cecile |








