1412 Stittsville Main St.#
Last updated: 2026-02-14 · ID: D07-12-24-0167
Summary#
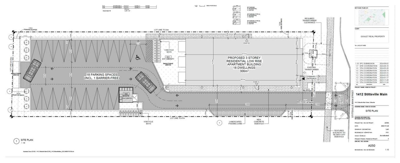
The City of Ottawa has received a Zoning By-law Amendment and Site Plan Control application to develop a three-storey apartment building with 18 units and 18 parking spaces.
Status
Post Approval (Receipt of Letter of Undertaking from Owner Pending)
Building Scale (Max.)
Based on elevation drawings. Values may be approximate. See sources for exact figures.
Low-rise · 3 storeys
· 7.98 m
Renders#
Location#
Select a marker to view the address.
Site Plans, Elevations and Floor Plans#
Additional Information#
| Date Initiated | 2024-12-12 |
| Ward | Ward 6 - Glen Gower |














