1850 Bantree St.#
Last updated: 2026-03-14 · ID: D07-12-24-0160
Summary#
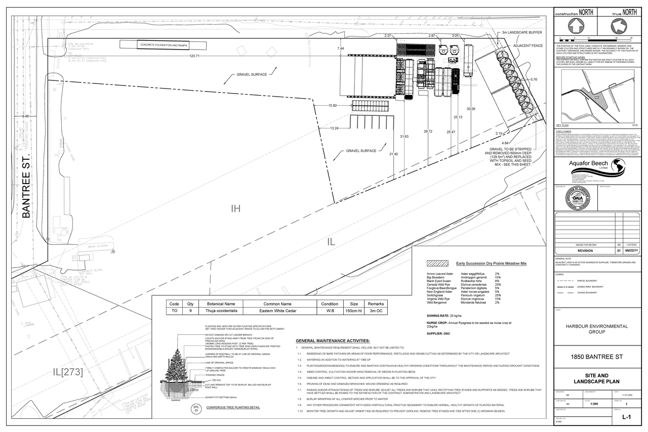
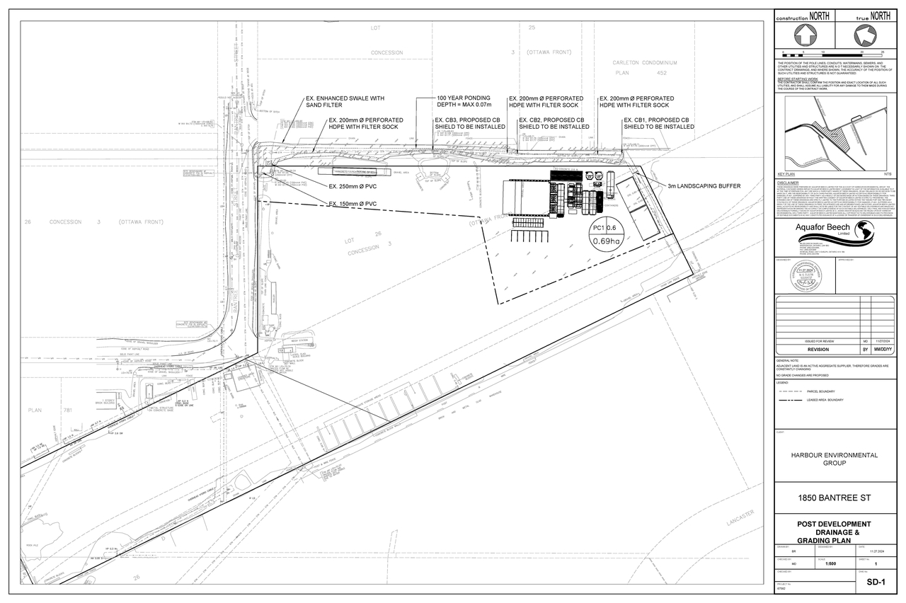
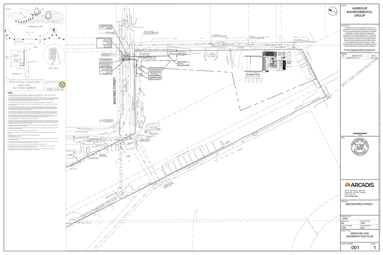
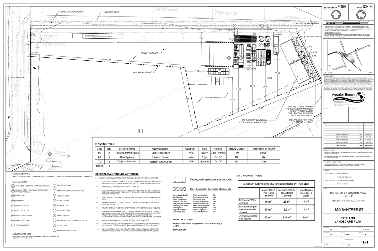
The City of Ottawa has received a Site Plan Control application for a hydrovac slurry recycling facility. The proposed development consists of the placement of temporary equipment onsite and associated engineering works such as connection to the sanitary sewer on Bantree Street.
Status
Active (Applicant Concurs)
Location#
Select a marker to view the address.
Project Updates#
Status Updated
- Status: Active (Applicant Concurs)
Status Updated
- Status: File Pending (Application File Pending)
Status Updated
- Status: Active (Additional Submission Deemed Adequate)
Added 1 image and 6 documents
- 2025-08-20 - Site and Landscape Plan - D07-12-24-0160
- 2025-08-20 - Services and Sedimentation Plan - D07-12-24-0160
- 2025-08-20 - Preliminary Traffic Management Plan - D07-12-24-0160
- 2025-08-20 - Post Development Drainage Plan - D07-12-24-0160
- 2025-08-20 - Geotechnical Memo - D07-12-24-0160
- 2025-08-20 - Design Brief - D07-12-24-0160
Status Updated
- Status: File Pending (Application File Pending)
Status Updated
- Status: Active (Initial Review Comments Sent)
Status Updated
- Status: Active (Initial Circulation Period Completed)
Added description, 3 images and 1 document
- Status: Active (On Circulation; Initial Submission Review)
- The City of Ottawa has received a Site Plan Control application for a hydrovac slurry recycling facility. The proposed development consists…
- 3 site plans
Site Plans, Elevations and Floor Plans#
Additional Information#
| Date Initiated | 2024-12-03 |
| Ward | Ward 18 - Marty Carr |



